*Kellerräume in guter Lage von Plüderhausen*
Exposé: *Kellerräume in guter Lage von Plüderhausen*
PLZ /Ort:
Kaltmiete
Gesamtfläche
Gesamtfläche
Flächen
Nutzfläche:
203,72 m²
Gesamtfläche:
203,72 m²
Preise
Kaltmiete:
609,00 €
Nebenkosten:
150,00 €
Vermittl.-Provision:
3 Kaltmieten plus Steuer
Sonstiges
Ihre Objektnr.:
919
Objekttyp:
Lager
Heizungsart:
Zentralheizung
Befeuerung:
Öl
Boden:
Estrich
Zimmer:
4
Energiepass
Art:
Bedarf
Gültig bis:
11.12.2026
Endenergiebedarf:
170
Ausstattung
Abstellraum
Objektbeschreibung
Die nächste Besichtigung für diese Räumlichkeiten findet im Januar 2026 statt.
Bitte beachten Sie, dass wir in der Zeit vom 20.Dezember 2025 bis zum 06.Januar 2026 Betriebsferien haben. In dieser Zeit werden keine E-Mails beantwortet und wir sind auch telefonisch nicht erreichbar.
Wir wünschen Ihnen eine schöne Vorweihnachtszeit, gesegnete Weihnachten und einen guten Start in das neue Jahr.
Für 2026 wünschen wir Ihnen vor allem Gesundheit.
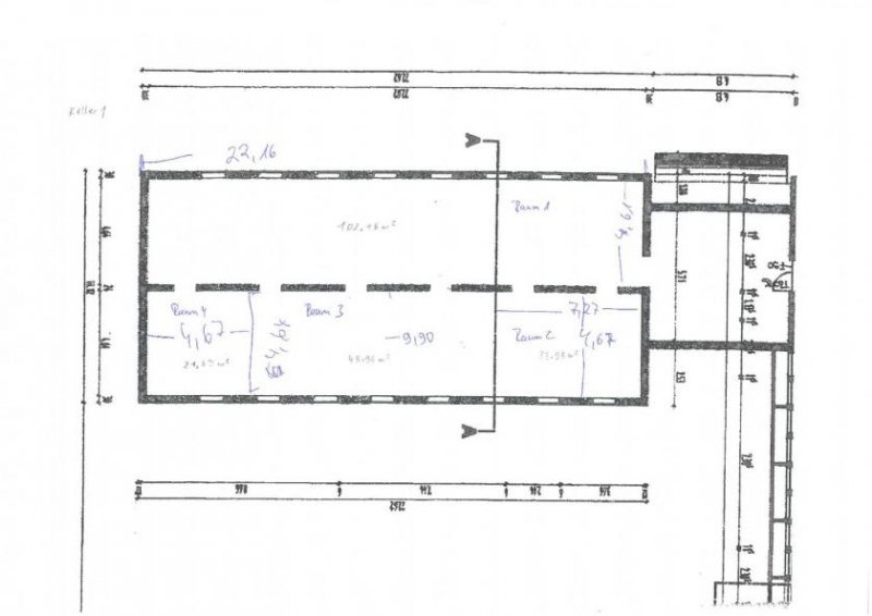
Die Räume haben insgesamt 203 m² verteilt sich auf vier Kellerräume, die Einheit ist NICHT teilbar:
- Raum 1: 21,67 m²
- Raum 2: 45,94 m²
- Raum 3: 33,95 m²
- Raum 4: 102,16 m²
Der Zugang zu den Räumen erfolgt über Stufen und normal breite Türen in den Keller. Toiletten sind vorhanden.
Gerne sendet Ihnen Bausch Immobilien ein Exposé zu. Selbstverständlich zeigen wir Ihnen auch sehr gerne die Räume.
Lage
Plüderhausen liegt östlich von Schorndorf, zählt zu den größeren Gemeinden des Rems-Murr-Kreises und gehört zur Metropolregion Stuttgart. Die Infrastruktur ist gut ausgebaut.
- Es halten die Regional-Express-Züge der Remstalbahn zwischen Stuttgart und Aalen
- Es gibt eine Anschlussstelle zur hier vierspurigen B 29 zwischen Stuttgart und Aalen
- Die Buslinie 243 pendelt zwischen Plüderhausen, Urbach und Schorndorf
Sämtliche Einkaufsmöglichkeiten, Schulzentrum, Kindergärten, Ärzte und diverse Gastronomische Betriebe erreichen Sie fußläufig.
Ausstattung
- Die Einheit ist NICHT teilbar
- 203 m² verteilt auf 4 Räume
- Raum 1: 21,67 m²
- Raum 2: 45,94 m²
- Raum 3: 33,95 m²
- Raum 4: 102,16 m²
- Beheizbar
- Toiletten vorhanden
- Zugang über Treppen und normale Türen
Sollten Sie weitere Räume benötigen, lassen Sie es mich bitte wissen.
Sonstige Angaben
Alle im Exposé enthaltenen Angaben basieren auf den Aussagen der/des Eigentümerin/Eigentümers.
Unsere Angebote sind freibleibend und in diesem Falle nur für Sie bestimmt. Eine Weitergabe an Dritte bedarf unserer Zustimmung.
Gewerbe Immobilien Plüderhausen
HomeBooster hat dieses Objekt zum mieten und kaufen unter Plüderhausen eingetragen. Die Immobiliensuche startet meistens bei Mietobjekten und Kaufimmobilien unter Baden-Württemberg.
Weitere Immobilien zum mieten und kaufen kommen von Sabine Bausch Immobilien Ansprechpartner , Gmünder Str. 65 in 73614 Schorndorf.
Synonyme zur Suche Plüderhausen Gewerbe Immobilien:
Plüderhausen Immobilien für Unternehmen, Gewerbeimmobilien mieten Plüderhausen, Industrie Immobilien Plüderhausen










