Kapitalanlage mit Einzelhandelsfläche, Gaststätte und Wohnung im OG. in Laichingen
Exposé: Kapitalanlage mit Einzelhandelsfläche, Gaststätte und Wohnung im OG. in Laichingen
PLZ /Ort:
Kaufpreis
Gesamtfläche
Flächen
Nutzfläche:
1.105,00 m²
Preise
Vermittl.-Provision:
3.57 % Käuferprovision (inkl. MwSt.)
Sonstiges
Ihre Objektnr.:
WGH0029
Zimmer:
14
Baujahr:
1986
Energiepass
Ausstattung
Objektbeschreibung
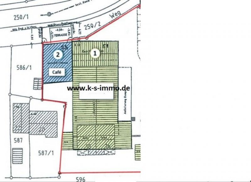
Zentralgelegen , nur wenige schritte vom Marktplatz und dem Schulzentrum befindet sich diese interessante Kapitalanlage mit Einzelhandelsfläche , Gastronomiefläche sowie mit Wohnung im Obergeschoß und ausreichend Parkplätze für Kunden und Besucher auf das Grundstück mit ca.1934 qm .
Alles komplett vermietet .
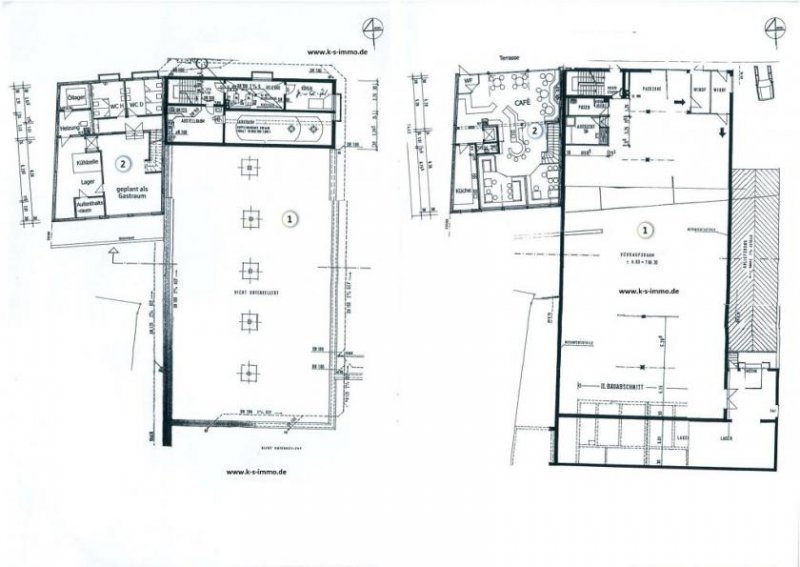
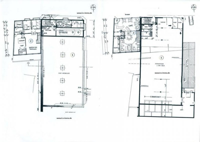
Gebäudeteil 1. (bereits Vermietet)
Laden/Einzelhandelsfläche. Gewerbefläche mit ca.709m² Gesamtnutz und Verkaufsfläche im EG mit Automatiktüre +Lagerraum , ( Verkaufsfläche Netto ca.580qm)
Büroraum und Aufenthalt/Sozialräume ,WC-s ,Herren und Damentoilette, Teeküche im OG)
Im OG: ( bereits Vermietet)
im Gebäude eine Wohnung mit ca.100/95qm.netto Wfl mit 1 Bad mit Wanne und WC .
Gebäudeteil 2..( bereits Vermietet)
1 Gaststätte : EG: Gastraum,Küche und WC ca,120qm Nfl
UG: Gastraum ,WC und Nebenräume ca.105qm Nfl
Kaufpreis: auf Anfrage., gute Parkmöglichkeiten auf eigenenen 26 Parkplätze .
Interessante Kapitalanlage mit 96.000. EUR p.A. Mieteinnahme und 6,4% Rendite zzt.
Maklergebühr:3,57% für Käufer
Übernahme: nach Absprache kurzfristig auch möglich
Energieausweiss : Energieausweis vorhanden
Energiebedarfsausweis , Heizungsart: Zentralheizung , Heizungsbefeuerung: Öl
Energieverbrauch:143 kWh/(m²*a) inkl. Warmwasser , Energieeffizienz:Klasse E
Lage
An eine Interessante Standort direkt an der Landesstraße 238 nach Feldstetten mit ca.12000 Einwohnern zwischen Stuttgart und Ulm mit Anbindung an die A8 bei der Anschlussstelle Merklingen.
An einer frequentierten Ausfallstraße in Laichingen befindet sich diese interessante Immobilie als solide Kapitalanlge.
Ausstattung
Ausstattung: Heizung und Klima (Heizung/Lüftungsanlage mit Klimaanlage 2013 erneuert)
abgehängte Rasterdecken,Raumhöhe beträgt ca. 3 m, WC ,Büroraum im OG und Personalraum, Lagerraum, ,Öl-Zentralheizung
Sonstige Angaben
Bezug/Übernahme: Kurzfristig oder nach Vereinbahrung
Parkplätze: Stellplätze vor dem Objekt ( 26 Eigene)
Gewerbe Immobilien Laichingen
Weitere Inserate zum mieten und kaufen finden sich unter Laichingen. Am Anfang suchen User zuerst auf der Seite Baden-Württemberg.
Weitere Immobilien zum mieten und kaufen kommen von K-S Immobilien Vermittlung Ansprechpartner Karoly Szabo, Heinrichgasse 6 in 89231 Neu-Ulm.
Synonyme zur Suche Laichingen Gewerbe Immobilien:
Laichingen Immobilien für Unternehmen, Gewerbeimmobilien mieten Laichingen, Industrie Immobilien Laichingen








