Investieren Sie nicht in den Vermieter, sondern ins eigene Haus!
Exposé: Investieren Sie nicht in den Vermieter, sondern ins eigene Haus!
PLZ /Ort:
Kaufpreis
Wohnfläche
Zimmer
Grundstücksfläche
Flächen
Wohnfläche:
197,00 m²
Grundstücksfläche:
400,00 m²
Preise
Kaufpreis:
293.000,00 €
Sonstiges
Ihre Objektnr.:
3504Life12v2Ahlen
Objekttyp:
Einfamilienhaus
Befeuerung:
Gas
Zustand:
projektiert
Zimmer:
6
Schlafzimmer:
6
Badezimmer:
1
Baujahr:
2019
Energiepass
Jahrgang:
ohne
Gebäudeart:
wohn
Ausstattung
Objektbeschreibung
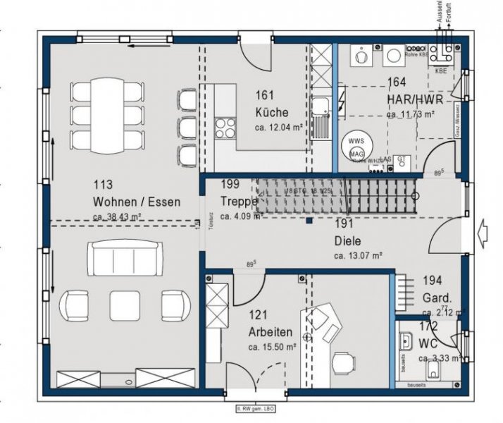
Lichtdurchfluteter Wohnkomfort bietet das Life 12 V2 mit vielen bodentiefen Fenstern in seinem offenen Wohn- Essbereich mit anschließender Küche. Schon im Eingangsbereich besticht eine große, helle Galerie mit gerader Treppe, die ins Obergeschoss führt. Hier befinden sich neben einem Elternschlafzimmer mit begehbarem Ankleidezimmer und eigenem Badezimmer, zwei Kinderzimmer sowie ein weiteres Bad.
Lage
Baulücke in Ahlen.
Gerne erstellen wir ein unverbindliches Hauskonzept, das ganz auf Ihre Bedürfnisse zugeschnitten ist.
Auf Wunsch wird unser Grundstücksservice das passende Grundstück für Sie heraussuchen. Wir erzielen exzellente Ergebnisse bei der Grundstückssuche.
Ausstattung
Ausbauhäuser mit exzellenter Ausstattung!
-Architektenleistung
-Echtholztreppe
-Effizienzwand
-Blower-Door-Test
-3-fach verglaste Fenster inklusive Rollläden
-Kontrollierte Be- und Entlüftungsanlage mit Wärmerückgewinnung
-Solaranlage mit Brauchwasser-Speicher
-Bau-Sicherheitspaket
-iPad mit Ausbauanleitung als eBook
Darüber hinaus ist natürlich die Just-in-Time-Lieferung, das Bemustern im eigenen Bemusterungszentrum mit Markenprodukten und persönlichem Ausbauberater vor Ort, Toxproof-schadstoffgeprüfte Materialien und die kostenlose Finanzierungsberatung unschlagbare Qualitätsmerkmale von allkauf. Der Qualitätsstandard von allkauf bedeutet jedoch nicht, dass Sie beim Hausbau tief in Ihren Geldbeutel greifen müssen. Im Gegenteil: Durch unsere ausgefeilten Konzepte zum Hausbau sparen Sie jede Menge Geld und können zu mietähnlichen Konditionen bauen. Sollten Sie Fragen haben, stehen wir Ihnen gerne zur Verfügung. Gerne erklären wir Ihnen auch die einzelnen Punkte unserer Ausstattung.
Sonstige Angaben
allkauf zertifiziert seit August 2015 seine Ausbauhäuser mit Ausbaupaketen nach dem System der Deutschen Gesellschaft für Nachhaltiges Bauen e.V. (DGNB) - ohne Mehrkosten für Baufamilien.
Der angegebene Preis ist ohne die Lohnleistungen für den Innenausbau. Hier entscheiden Sie welche der Innenausbauarbeiten Sie selbst in Eigenleistung durchführen. allkauf haus lässt Sie dabei nicht alleine. Ein erfahrener Ausbauberater steht Ihnen, selbstverständlich ohne Berechnung, fachkundig während Ihres Ausbaues zur Seite. Das benötigte Werkzeug für den Ausbau sowie die Architektenleistungen sind ebenfalls im Preis enthalten. Selbstverständlich bieten wir auch Dienstleistungspakete an, so dass Ihr Traumhaus nahezu bezugsfertig erstellt werden kann.
Gerne erstellen wir ein unverbindliches Hauskonzept, das ganz auf Ihre Bedürfnisse und auf Ihr Budget zugeschnitten ist. Mit der Festpreisgarantie von allkauf haus erleben Sie während des Baus keine bösen Überraschungen. Denn das Hauskonzept sieht, sofern gewünscht, die passende Finanzierung sowie die Berechnung Ihrer zukünftigen Heizkosten vor.
Wir freuen uns auf Sie!
Bitte beachten, dass die Bilder Wohnbeispiele sind und das Haus sowie die Grundrisse nach Ihren Wünschen geplant werden können. Es sind nur Anregungen und zeigen zum größten Teil die Ausstattungspakete, die im Preis bereits enthalten sind.
Anmerkung
Ausbauhaus, Preis incl. Grundstück und Ausbaupaketen ohne Hausanschluss- und Baunebenkosten.
Die von uns gemachten Informationen beruhen auf Angaben des Verkäufers bzw. der Verkäuferin. Für die Richtigkeit und Vollständigkeit der Angaben kann keine Gewähr bzw. Haftung übernommen werden. Ein Zwischenverkauf und Irrtümer sind vorbehalten.
Hinweis zu den gesetzlichen Pflichtangaben gemäß der EnEV 2014: Das hier angebotene Haus ist ein Neubauprojekt und es liegt daher noch kein Energieausweis vor. Dieser wird Ihnen spätestens im Rahmen der Erstellung des Objektes ausgehändigt.
Informationspflicht gem. Art. 13 DSGVO
https://www.allkauf-ausbauhaus.de/interessenteninformationen/
Häuser Ahlen
Weiterhin können Sie Inserate auf der Seite Ahlen finden. Die Angeben des Anbieters lauten GeWoh UG (haftungsbeschränkt) Ansprechpartner Uwe Wilhelmy, in. Die Immobiliensuche startet meistens bei Mietobjekten und Kaufimmobilien unter Nordrhein-Westfalen.
Synonyme zur Suche Ahlen Häuser:
Ahlen Häuser online, Haus mieten und kaufen Ahlen, günstige Häuser Ahlen







