Ihr Kapital- Ihre Stadtwohnung
Exposé: Ihr Kapital- Ihre Stadtwohnung
PLZ /Ort:
Kaufpreis
Wohnfläche
Zimmer
Flächen
Wohnfläche:
57,00 m²
Preise
Kaufpreis:
69.500,00 €
Vermittl.-Provision:
3,57 %
Sonstiges
Ihre Objektnr.:
502009
Heizungsart:
Zentralheizung
Befeuerung:
Gas
Zustand:
gepflegt
Zimmer:
2
Baujahr:
1893
vermietet:
1
Energiepass
Art:
Bedarf
Gültig bis:
15.0.2034
Wertklasse:
F
Ausstellungsdatum:
2023-10-19
Ausstattung
Objektbeschreibung
Diese attraktive 2-Zimmer-Wohnung bietet eine erstklassige Gelegenheit, das urbane Leben im Zentrum von Gotha zu genießen. Ideal für Singles oder Paare, die nach einem komfortablen und stilvollen Zuhause suchen
Lage
Die angebotene 2-Zimmer-Wohnung befindet sich inmitten des historischen Zentrums von Gotha, einer charmanten Stadt reich an Geschichte und Kultur. Die Lage ist ideal für alle, die das pulsierende Stadtleben genießen möchten, da sie sich in unmittelbarer Nähe zu Geschäften, Restaurants, Cafés, kulturellen Einrichtungen und öffentlichen Verkehrsmitteln befindet. Trotz der zentralen Lage bietet die Umgebung auch Ruhe und Entspannung, da sie von malerischen Straßen und Grünflächen umgeben ist.
Ausstattung
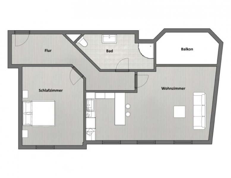
Die Wohnung erstreckt sich über eine Fläche von ca. 57 Quadratmetern und befindet sich im 1. Stockwerk eines gepflegten Mehrfamilienhauses. Sie besticht durch ihre moderne Gestaltung und ihre solide Ausstattung. Der offene Grundriss schafft eine luftige und einladende Atmosphäre, während die vielen Fenster für ausreichend natürliches Licht sorgen.
Die offene Küche bietet ausreichend Platz zum Kochen und Zubereiten von Mahlzeiten. Das Wohnzimmer ist der ideale Ort zum Entspannen und bietet genügend Platz für gemütliche Abende mit Familie und Freunden.
Sonstige Angaben
Baujahr: 1893
Befeuerung/Energieträger: Erdgas schwer
Energieausweistyp: Bedarfsausweis
Heizungsart: Gas-Heizung
Energieeffizienzklasse: F
Renditebetrachtung:
Die Wohnung ist vermietet zu einer Kaltmiete von 370 €/m.
Mithin würde man im Jahr eine Einnahme an Kaltmieten von rund 4.440 €/p.a. erzielen können.
Vom Hausgeld lt. Wirtschaftsplan 2023 in Höhe von 2.186,12 €/p.a. (zahlbar in Monatsraten zu 183 €/Monat) sind rd. 1.420,70 €/p.a. nach Betr.KV umlagefähig.
Mithin verbleiben rd. 765 €/p.a. beim Eigentümer, wovon allein 282,60 €/p.a. in die Rücklage fließen.
Nach Abzug der nicht umlagefähigen Hausgeldkosten verbliebe ein Erlös aus der Kaltmiete von rund 3.675 €/p.a..
Monatliches Hausgeld 183,00 €
Wohnungen Gotha
HomeBooster hat diese Immobilie unter Gotha gespeichert. Thüringen ist die geografische Zuordnung dieses Objektes zum mieten und kaufen.
Die Daten zu diesem Anbieter lauten: HONNEF Immobilien Ansprechpartner Peter Honnef & Rudolf Steinert GbR, Schlossberg in 99867 Gotha.
Synonyme zur Suche Gotha Wohnungen:
Gotha günstige Wohnung, Wohnungsanzeigen Gotha









