HDA-Immo.eu: Neubau, Luxus Villa in Marbella (auf Ihrem Grundstück)
Exposé: HDA-Immo.eu: Neubau, Luxus Villa in Marbella (auf Ihrem Grundstück)
Strasse:
PLZ /Ort:
Kaufpreis
Wohnfläche
Zimmer
Flächen
Wohnfläche:
225,00 m²
Nutzfläche:
315,00 m²
Preise
Kaufpreis:
598.900,00 €
Sonstiges
Ihre Objektnr.:
3717 (100/Anna)
Objekttyp:
Villa
Heizungsart:
Fussboden
Befeuerung:
Alternativ
Möblierung:
Teil
Sicherheitstechnik:
Alarmanlage
Zustand:
projektiert
Bad:
Fenster
Küche:
EBK
Zimmer:
9
Schlafzimmer:
3
Badezimmer:
3
Baujahr:
2016
Ferienobjekt:
1
Energiepass
Art:
Bedarf
Wertklasse:
A
Ausstattung
Kamin
klimatisiert
Gartennutzung
barrierefrei
Swimmingpool
Objektbeschreibung
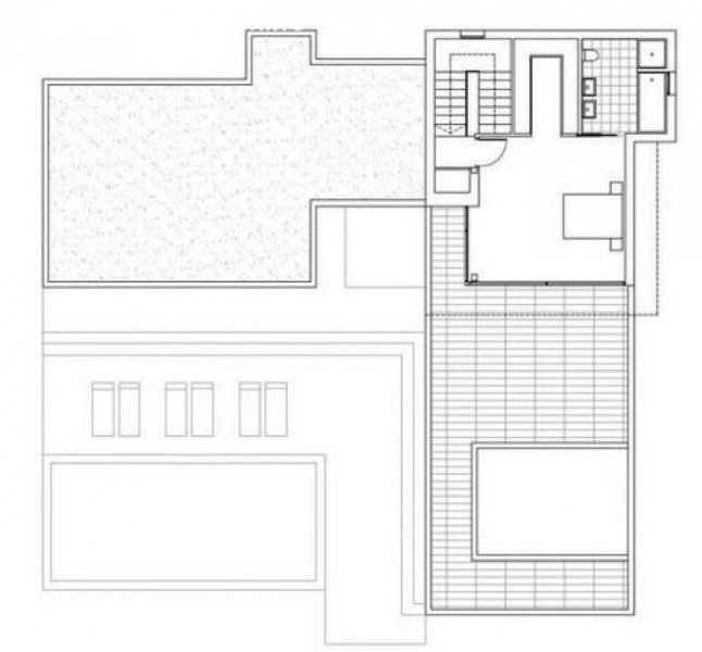
Kleine Luxus Villa im Bauhausstil auf einem Grundstück mit 1303 m² in Estepona, Urbanisation Bel Air. Die Villa verfügt über 3 Schlafzimmer (mit jeweils einem Bad en-suite), einem großen Wohn/Esszimmer mit einer offenen Küche, einem Gäste-WC. Die Terrassen sind offen bzw. teilweise Überdacht. Im Preis enthalten ist die Lieferung des Pool, einer Bewässerungsanlage für den Garten, einer Grundstückeinfriedigung mit einem elektrischen Einfahrtstor. Ein Carport oder eine Garage sind nicht im Preis enthalten.
Die Bauzeit beträgt 10 Monate nach Erteilung der Baulizenz.
Häuser
Weiterhin können Sie Inserate auf der Seite finden. Die Daten zu diesem Anbieter lauten: Holiday-Domizile Andalucia UG Ansprechpartner Karl-Heinz Klarmann, Am Oslebshauser Bahnhof 2 in 28239 Bremen. ist die geografische Zuordnung dieses Objektes zum mieten und kaufen.
Synonyme zur Suche Häuser:
Häuser online, Haus mieten und kaufen, günstige Häuser



