HDA-immo.eu: Neubau, Luxus-Villa auf 1003m² Grundstück in Elviria (Marbella-Ost)
Exposé: HDA-immo.eu: Neubau, Luxus-Villa auf 1003m² Grundstück in Elviria (Marbella-Ost)
Strasse:
PLZ /Ort:
Kaufpreis
Wohnfläche
Zimmer
Grundstücksfläche
Flächen
Wohnfläche:
200,00 m²
Nutzfläche:
290,00 m²
Grundstücksfläche:
1.000,00 m²
Preise
Kaufpreis:
980.900,00 €
Sonstiges
Ihre Objektnr.:
3702 (100/Natalia)
Objekttyp:
Villa
Heizungsart:
Fussboden
Befeuerung:
Alternativ
Möblierung:
Teil
Sicherheitstechnik:
Alarmanlage
Zustand:
projektiert
Bad:
Fenster
Küche:
EBK
Zimmer:
9
Schlafzimmer:
3
Badezimmer:
3
Baujahr:
2019
Ferienobjekt:
1
Energiepass
Art:
Bedarf
Wertklasse:
A
Ausstattung
klimatisiert
Gartennutzung
barrierefrei
Swimmingpool
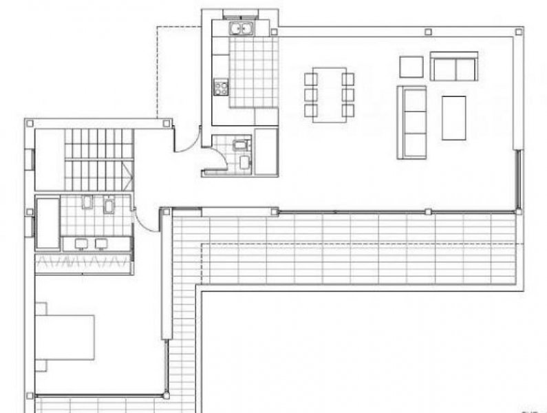
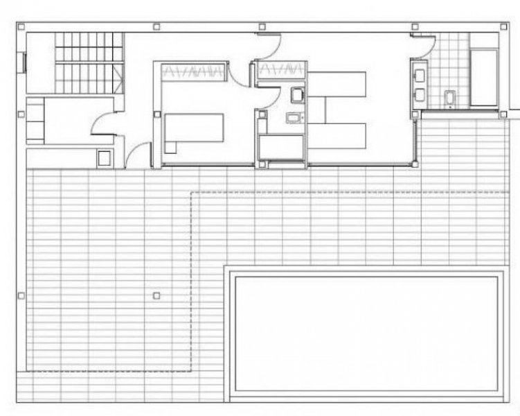
Objektbeschreibung
Neue Luxus Villa auf einem Baugrundstück in Marbella-Ost (Elviria) (oder auf einem Grundstück Ihrer Wahl!)
Nach Erteilung der Baulizenz wird diese Villa in 10 Monaten fertiggestellt. Sonderwünsche möglich (gegen Aufpreis) . Sprinkleranlage, Pool , Aussendusche , Grillplatz. Dieser Preis beinhaltet einen Gartenausbau (ohne Pflanzen), Zaunanlage, Tor, elektrisches Einfahrtstor , LED-Leuchten im Garten. Der Preis ist incl. Architekt, Baugenehmigung.
Lage
Das Grundstück befindet sich in der Nähe der Verbindungsstrasse zwischen Marbella (Elviria) und La Mairena, daher nur ein kurzer Weg zur Deutschen Schule .
Grundsätzlich bietet das Grundstück Meerblick!
Ausstattung
Häuser
Weiterhin können Sie Inserate auf der Seite finden. Die Daten zu diesem Anbieter lauten: Holiday-Domizile Andalucia UG Ansprechpartner Karl-Heinz Klarmann, Am Oslebshauser Bahnhof 2 in 28239 Bremen. ist die geografische Zuordnung dieses Objektes zum mieten und kaufen.
Synonyme zur Suche Häuser:
Häuser online, Haus mieten und kaufen, günstige Häuser







