HDA-immo.eu: Neubau, Luxus-Villa auf Ihrem Grundstück in Marbella (oder?)
Exposé: HDA-immo.eu: Neubau, Luxus-Villa auf Ihrem Grundstück in Marbella (oder?)
Strasse:
PLZ /Ort:
Kaufpreis
Wohnfläche
Zimmer
Grundstücksfläche
Flächen
Wohnfläche:
200,00 m²
Nutzfläche:
290,00 m²
Grundstücksfläche:
10,00 m²
Preise
Kaufpreis:
580.900,00 €
Sonstiges
Ihre Objektnr.:
3703 (100/Natalia)
Objekttyp:
Villa
Heizungsart:
Fussboden
Befeuerung:
Alternativ
Möblierung:
Teil
Sicherheitstechnik:
Alarmanlage
Zustand:
projektiert
Bad:
Fenster
Küche:
EBK
Zimmer:
9
Schlafzimmer:
3
Badezimmer:
3
Baujahr:
2019
Ferienobjekt:
1
Energiepass
Art:
Bedarf
Wertklasse:
A
Ausstattung
klimatisiert
Gartennutzung
barrierefrei
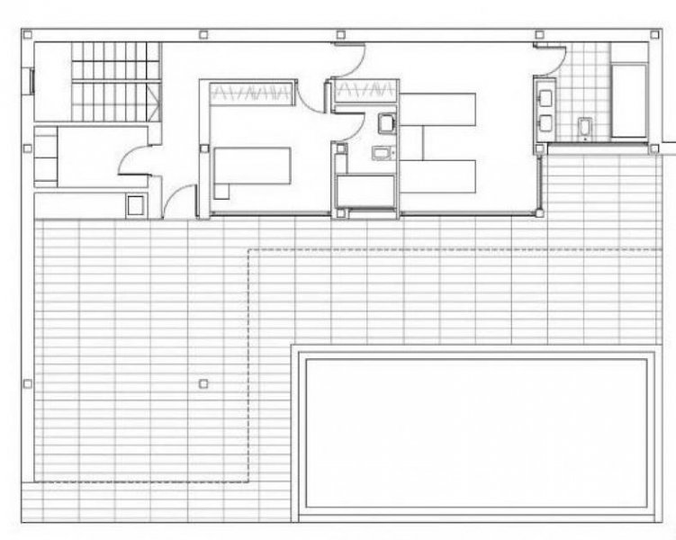
Swimmingpool
Objektbeschreibung
Neue Luxus Villa auf einem Baugrundstück in Marbella- (oder auf einem Grundstück Ihrer Wahl!)
Dieser Preis beinhaltet einen Gartenausbau (ohne Pflanzen), Zaunanlage, Tor, elektrisches Einfahrtstor , LED-Leuchten im Garten. Der Preis ist incl. Architekt, Baugenehmigung.
Ausstattung
Zum Baupreis des Hauses 395.000 EUR kommt eine 10%ige Umsatzsteuer hinzu.
Zahlung Haus 10% bei Bauauftrag, Rest nach Teilfertigstellung in Abschlägen.
Häuser
Weiterhin können Sie Inserate auf der Seite finden. Die Daten zu diesem Anbieter lauten: Holiday-Domizile Andalucia UG Ansprechpartner Karl-Heinz Klarmann, Am Oslebshauser Bahnhof 2 in 28239 Bremen. ist die geografische Zuordnung dieses Objektes zum mieten und kaufen.
Synonyme zur Suche Häuser:
Häuser online, Haus mieten und kaufen, günstige Häuser



