HDA-immo.eu: moderne Bauhausvilla Typ Ana mit 3 SZ und viel Platz (ohne Grundstück)
Exposé: HDA-immo.eu: moderne Bauhausvilla Typ Ana mit 3 SZ und viel Platz (ohne Grundstück)
PLZ /Ort:
Kaufpreis
Wohnfläche
Zimmer
Flächen
Wohnfläche:
225,00 m²
Nutzfläche:
315,00 m²
Preise
Kaufpreis:
568.700,00 €
Sonstiges
Ihre Objektnr.:
3745 (100/Ana)
Objekttyp:
Villa
Heizungsart:
Fussboden
Möblierung:
Teil
Sicherheitstechnik:
Alarmanlage
Bad:
Fenster
Küche:
EBK
Zimmer:
8
Schlafzimmer:
3
Badezimmer:
3
Baujahr:
2017
Ferienobjekt:
1
Energiepass
Art:
Bedarf
Wertklasse:
G
Ausstattung
klimatisiert
Gartennutzung
Swimmingpool
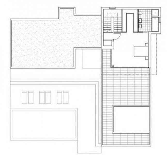
Objektbeschreibung
Luxus Villa vom Typ Ana (Massivbau/Steine/Beton) bestehend aus Etagen: 2, Schlafzimmer: 3, Badezimmer: 3 plus 1 Gäste-WC, Küche: 1 plus Grill Küche, Wohnzimmer: 1, Esszimmer: 1
Pool: 36m2, Heizung: Fußbodenheizung
Säuberung des Geländes inbegriffen bis 1000m2 Grundstück, Einzäunung des Grundstücks inbegriffen bis 1000m2 Grundstück.
Extras: Klimaanlage , Domotik System, voll ausgestattete Küche, Eingang Video-Gegensprechanlage , Alarmanlage
wir bauen diese Villa in 10 Monaten mit einem 10 Jahre Garantie Nach der Baugenehmigung. Preis ohne Grundstück incl. Umsatzsteuer.
Anpassungen der Grundrisse sind immer möglich.
Dieser Preis beinhaltet einen Garten zu einem Maximum von einem 1.000m2, Sprinkleranlage, Pool, Außendusche , Grillplatz , Eingang
Wand / Fechten, elektrisches Einfahrtstor, LED-Leuchten im Garten, Design, Architekt Kosten, Baugenehmigung und vieles mehr.
Diese Häuser wurden auf einem flachen Grundstück festgesetzt.
Häuser Konstanz
Weiterhin können Sie Inserate auf der Seite Konstanz finden. Unter Baden-Württemberg sind weitere relevante Immobilien vorhanden.
Die Angeben des Anbieters lauten Holiday-Domizile Andalucia UG Ansprechpartner Karl-Heinz Klarmann, Am Oslebshauser Bahnhof 2 in 28239 Bremen.
Synonyme zur Suche Konstanz Häuser:
Konstanz Häuser online, Haus mieten und kaufen Konstanz, günstige Häuser Konstanz



