HDA-immo.eu: eigenwillige, moderne Bauhausstil Villa mit 4 SZ (Ohne Grundstück)
Exposé: HDA-immo.eu: eigenwillige, moderne Bauhausstil Villa mit 4 SZ (Ohne Grundstück)
PLZ /Ort:
Kaufpreis
Wohnfläche
Zimmer
Flächen
Wohnfläche:
355,00 m²
Nutzfläche:
415,00 m²
Preise
Kaufpreis:
847.000,00 €
Sonstiges
Ihre Objektnr.:
3755 (100/Laissa)
Objekttyp:
Villa
Heizungsart:
Fussboden
Möblierung:
Teil
Sicherheitstechnik:
Alarmanlage
Bad:
Fenster
Küche:
EBK
Zimmer:
10
Schlafzimmer:
4
Badezimmer:
4
Baujahr:
2017
Ferienobjekt:
1
Energiepass
Art:
Bedarf
Wertklasse:
G
Ausstattung
klimatisiert
Gartennutzung
Swimmingpool
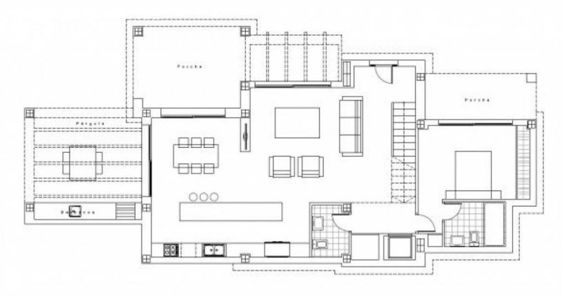
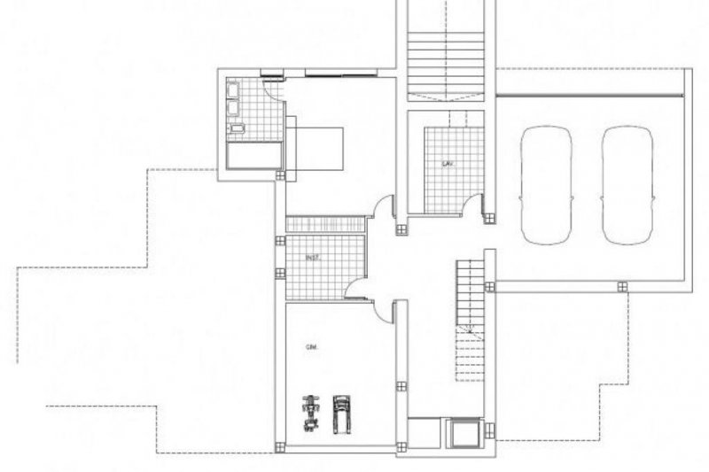
Objektbeschreibung
Moderne Bauvilla vom Typ LAISSA (Massivbau/Steine/Beton),
Villa: 355m² Wohnfläche / Nutzfläche 415m², Beschreibung:
Etagen: 3, Schlafzimmer: 4, Badezimmer: 4 plus 1 Gäste-WC
Küche: 1 plus Grill Küche, Wohnzimmer: 1, Esszimmer: 1
Pool: 45m², Parkplatz: Carport, Heizung: Fußbodenheizung.
Im Preis inbegriffen ist die säuberung und Roodung bis 1000m² Grundstück, Inbegriffen bis 1000m² Grundstück die Garteneinzäunung,
Extras: Klimaanlage , Domotik System, voll ausgestattete Küche, Eingang Video-Gegensprechanlage , Alarmanlage
Wir bauen diese Villa in 10 Monaten nach Erteilung der Bugenehmigung mit einer 10 Jahre Garantie auf Strukturmängel. Anpassungen der Grundrisse sind immer möglich.
Dieser Preis beinhaltet einen Garten zu einem Maximum von einem 1.000m², Sprinkleranlage, Pool, Außendusche , Grillplatz , Eingang, elektrisches Einfahrtstor, LED-Leuchten im Garten, Design, Architekt Kosten, Baugenehmigung und vieles mehr.
Dieser Preis wurde auf Basis eines flachen Geländes festgesetzt. Der Preis beinhaltet die gesetzliche Umsatzsteuer.
Häuser Konstanz
Weiterhin können Sie Inserate auf der Seite Konstanz finden. Unter Baden-Württemberg sind weitere relevante Immobilien vorhanden.
Die Angeben des Anbieters lauten Holiday-Domizile Andalucia UG Ansprechpartner Karl-Heinz Klarmann, Am Oslebshauser Bahnhof 2 in 28239 Bremen.
Synonyme zur Suche Konstanz Häuser:
Konstanz Häuser online, Haus mieten und kaufen Konstanz, günstige Häuser Konstanz



