HD-mallorca.de: Villa Katrina, eleganter Luxus Bauhausstil, 3SZ, Ohne Grundstück
Exposé: HD-mallorca.de: Villa Katrina, eleganter Luxus Bauhausstil, 3SZ, Ohne Grundstück
PLZ /Ort:
Kaufpreis
Wohnfläche
Zimmer
Flächen
Wohnfläche:
230,00 m²
Nutzfläche:
370,00 m²
Preise
Kaufpreis:
649.000,00 €
Sonstiges
Ihre Objektnr.:
3751 (100/Katrina)
Objekttyp:
Villa
Heizungsart:
Fussboden
Möblierung:
Teil
Sicherheitstechnik:
Alarmanlage
Zustand:
projektiert
Bad:
Fenster
Küche:
EBK
Zimmer:
9
Schlafzimmer:
3
Badezimmer:
3
Baujahr:
2017
Ferienobjekt:
1
Energiepass
Art:
Bedarf
Wertklasse:
G
Ausstattung
klimatisiert
Gartennutzung
Swimmingpool
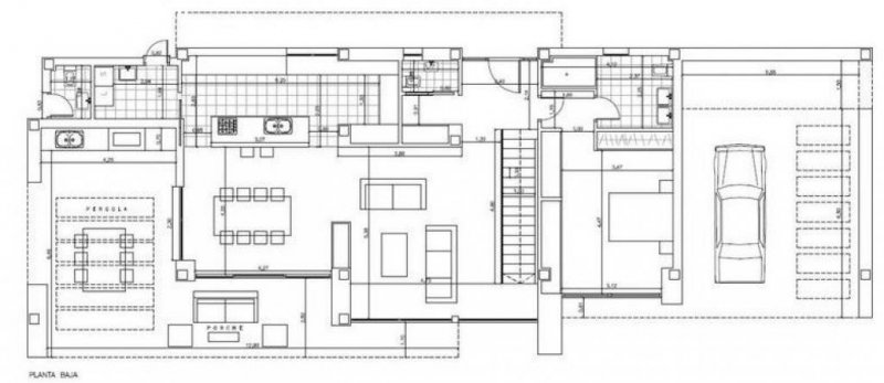
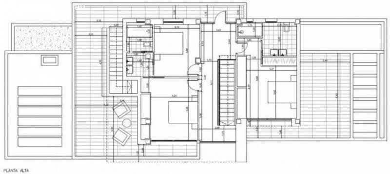
Objektbeschreibung
Luxus Villa Katharina, Massivbau/Steine/Beton, auf 2 Ebenen mit 230m2 Wohnfläche / total bedeckt Raum 370m2, Etagen: 2
Schlafzimmer: 3, Badezimmer: 3 plus 1 Gäste-WC, Küche: 1 plus Grill Küche, Wohnzimmer: 1, Esszimmer: 1, Pool: 45m2
Heizung: Fußbodenheizung
Säuberung und Planierung des Gartens Inbegriffen bis 1000m2 Grundstück; Garteneinzäunung Inbegriffen bis 1000m2 Grundstück.
Extras: Klimaanlage , Domotik System, voll ausgestattete Küche, Eingang Video-Gegensprechanlage , Alarmanlage
Wir bauen diese Villa in 10 Monaten nach Erteilung der Baugenehmigung mit eine 10 Jahre Garantie gegen Strukturmängel. Anpassungen der Grundrisse sind immer möglich.
Dieser Preis beinhaltet einen Garten zu einem Maximum von einem 1.000m2, Sprinkleranlage, Pool, Außendusche , Grillplatz , Eingang, elektrisches Einfahrtstor, LED-Leuchten im Garten, Design, Architekt Kosten, Baugenehmigung und vieles mehr.
Diese Häuser wurden auf einem flachen Grundstück berechnet. Der Preis ist incl. Umsatzsteuer.
Häuser Konstanz
Weiterhin können Sie Inserate auf der Seite Konstanz finden. Unter Baden-Württemberg sind weitere relevante Immobilien vorhanden.
Die Angeben des Anbieters lauten Holiday-Domizile Andalucia UG Ansprechpartner Karl-Heinz Klarmann, Am Oslebshauser Bahnhof 2 in 28239 Bremen.
Synonyme zur Suche Konstanz Häuser:
Konstanz Häuser online, Haus mieten und kaufen Konstanz, günstige Häuser Konstanz




