Großzügiges Baugrundstück in beliebter Lage
Exposé: Großzügiges Baugrundstück in beliebter Lage
PLZ /Ort:
Kaufpreis
Grundstücksfläche
Flächen
Gesamtfläche:
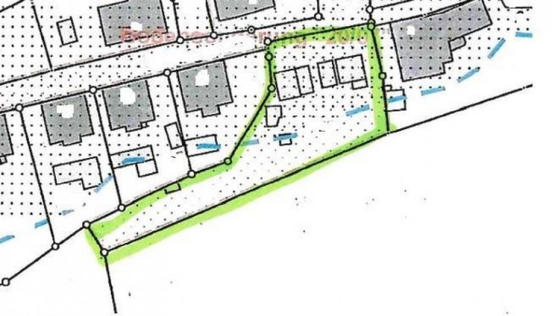
900,00 m²
Grundstücksfläche:
900,00 m²
Preise
Kaufpreis:
34.000,00 €
Vermittl.-Provision:
3.570,00€ inkl. gesetzlicher Mwst.
Sonstiges
Ihre Objektnr.:
grst.rs (1/2177)
Energiepass
Ausstattung
Objektbeschreibung
Bei unserem Angebot handelt es sich um 900,00 m² Bauland. Momentan stehen hier noch fünf Garagen die bis zum Ende des Jahres 2022 verpachtet sind. Eine positive Bauvoranfrage liegt bereits für ein Einfamilienhaus (90,00 m² Grundfläche) vor. Alle Medien (Strom, Gas, Wasser usw.) liegt in der Straße vor dem Grundstück und muss nur in das Grundstück gezogen werden.
Das Grundstück liegt im ehemaligen Überschwemmungsgebiet. Allerdings hat die Stadt Chemnitz in den letzten Jahren baulich sehr viel dafür getan, dass dies nicht mehr vorkommen sollte.
Lage
Ruhige Wohnlage in Chemnitz/Harthau mit guter Verkehrsanbindung ins Stadtzentrum. Alle Einkaufsmöglichkeiten, Schule und Sozialeinrichtungen liegen in direkter Nachbarschaft.
Sonstige Angaben
Alle Daten beziehen sich auf die uns vorliegenden Pläne, uns übergebenen Unterlagen sowie Aussagen des Eigentümers. Für die Richtigkeit dieser Angaben, Irrtümer oder Änderungen können wir keine Haftung übernehmen.
Grundstück Chemnitz
Unter Chemnitz findet man weitere relevante Immobilien zur Miete und zum Kauf. Der Link zu Immobilien zum mieten und kaufen dieses Bundeslandes findet man unter Sachsen.
Die Angeben des Anbieters lauten Ronald Stopp Immobilien Ansprechpartner Ronald Stopp, Vetterstraße 5 in 09126 Chemnitz.
Synonyme zur Suche Chemnitz Grundstück:
Chemnitz Grundstück Gemarkung, Grundstücke Chemnitz, Grundstücksangebote Chemnitz







