Großzügige 3-Zimmer-Wohnung in einem denkmalgeschützten Gebäude in Baden-Baden - Haueneberstein
Exposé: Großzügige 3-Zimmer-Wohnung in einem denkmalgeschützten Gebäude in Baden-Baden - Haueneberstein
PLZ /Ort:
Kaltmiete
Wohnfläche
Zimmer
Flächen
Wohnfläche:
89,20 m²
Kellerfläche:
12,00 m²
Preise
Kaltmiete:
800,00 €
Nebenkosten:
150,00 €
Stellplatz (Miete):
25,00 €
Sonstiges
Ihre Objektnr.:
M-BBE- 1#wSzHBS
Objekttyp:
Erdgeschoss
Heizungsart:
Etagenheizung
Befeuerung:
Gas
Stellplatz-Art:
Carport
Bad:
Fenster
Stellplätze (Anz.):
1.0
Zimmer:
3
Schlafzimmer:
1
Badezimmer:
1
Energiepass
Ausstattung
Objektbeschreibung
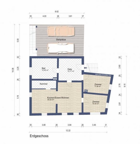
Die angebotene Immobilie befindet sich im Hochparterre eines denkmalgeschützten Altbaus. Die Wohnfläche beträgt großzügige 89,2 m² und verfügt über ein Schlafzimmer. Die Immobilie ist seniorengerecht gestaltet und eignet sich somit auch für ältere Menschen. Eine Etagenheizung sorgt für wohlige Wärme, während ein Stellplatz für das Auto vorhanden ist. Zudem gehört ein Keller mit einer Fläche von 12 m² zur Immobilie, was zusätzlichen Stauraum bietet.
Die Räumlichkeiten umfassen insgesamt drei Zimmer, darunter das Schlafzimmer. Ein Badezimmer ist ebenfalls vorhanden. Die Immobilie besticht durch ihren sanierten Zustand und den historischen Charme des Altbaus. Aufgrund der guten Raumaufteilung bieten sich vielfältige Möglichkeiten zur individuellen Gestaltung und Einrichtung.
Das Gebäude verfügt über nur eine Etage und ist somit sehr übersichtlich. Die Immobilie eignet sich ideal für Singles oder Paare, die auf der Suche nach einer charmanten Wohnung mit dem gewissen Etwas sind. Die zentrale Lage und die gute Infrastruktur machen die Immobilie zusätzlich attraktiv. Insgesamt bietet diese Immobilie ein angenehmes Wohngefühl in historischem Ambiente.
Lage
Die Immobilie befindet sich im Stadtteil Haueneberstein, einer Wohnlage in der Stadt. Haueneberstein ist bekannt für seine ruhige und familienfreundliche Atmosphäre. Die Nachbarschaft ist geprägt von Einfamilienhäusern und viel Grünflächen, die zu Spaziergängen und Erholung einladen.
Die Stadt, in der sich die Immobilie befindet, ist eine beliebte Gemeinde in Deutschland. Sie bietet eine gute Infrastruktur mit Einkaufsmöglichkeiten, Schulen und medizinischer Versorgung. Die Innenstadt ist mit öffentlichen Verkehrsmitteln gut zu erreichen und bietet zahlreiche Freizeit- und kulturelle Angebote.
Die Region, in der sich die Immobilie befindet, zeichnet sich durch ihre landschaftliche Vielfalt aus. Von malerischen Weinbergen über ausgedehnte Wälder bis hin zu idyllischen Flusslandschaften – hier kommen Naturliebhaber voll auf ihre Kosten. Die Region bietet zudem viele Möglichkeiten für Outdoor-Aktivitäten wie Wandern, Radfahren und Wassersport.
Ausstattung
Die Immobilie verfügt über ein Badezimmer mit einer Dusche, einer Badewanne und einem Fenster. Die Bodenbeläge im gesamten Bereich sind mit Laminat ausgelegt, was für eine pflegeleichte und moderne Optik sorgt. Durch das Fenster gelangt viel Tageslicht in den Raum, was eine angenehme Atmosphäre schafft. Die Badewanne bietet Komfort und Entspannungsmöglichkeit für die Bewohner. Insgesamt ist das Badezimmer funktional und gut ausgestattet, um den täglichen Bedürfnissen gerecht zu werden.
Sonstige Angaben
Wir übernehmen keinerlei Gewähr für die Aktualität, Korrektheit, Vollständigkeit oder Qualität der bereitgestellten Informationen. Alle Angaben beruhen auf Informationen des Verkäufers/Vermieters.
Haftungsansprüche, welche sich auf Schäden materieller oder ideeller Art beziehen, die durch die Nutzung oder Nichtnutzung der dargebotenen Informationen bzw. durch die Nutzung der fehlerhaften und unvollständiger Informationen verursacht wurden, sind grundsätzlich ausgeschlossen.
Etwas anderes gilt nur, wenn im Einzelfall ein nachweislich vorsätzliches oder grob fahrlässiges Verschulden vorliegt.
Alle Angebote sind freibleibend und unverbindlich. Zwischenverkauf bleibt vorbehalten.
Weitere Angebote finden Sie unter: www.spies-immobilien.com
Im Übrigen verweisen wir auf unsere AGB, diese finden Sie auf der Homepage.
Verbraucherinformationen: Online-Streitbeilegung gemäß Art. 14 Abs. 1 ODR-VO: Die Europäische Kommission stellt eine Plattform zur Online-Streitbeilegung (OS) bereit.
Zur Plattform: http://ec.europa.eu/consumers/odr/
Wohnungen Baden-Baden
Weitere Inserate zum mieten und kaufen finden sich unter Baden-Baden. Am Anfang suchen User zuerst auf der Seite Baden-Württemberg.
Die Daten zu diesem Anbieter lauten: Spies Immobilien Baden-Baden Ansprechpartner Bert Spies, Gernsbacherstr. 20 in 76530 Baden-Baden.
Synonyme zur Suche Baden-Baden Wohnungen:
Baden-Baden günstige Wohnung, Wohnungsanzeigen Baden-Baden










