Großzügig geschnittene 2 Zimmer Wohnung mit ca. 78m², EBK und Balkon in Berlin-Mitte!
Exposé: Großzügig geschnittene 2 Zimmer Wohnung mit ca. 78m², EBK und Balkon in Berlin-Mitte!
Strasse:
PLZ /Ort:
Kaltmiete
Wohnfläche
Zimmer
Flächen
Wohnfläche:
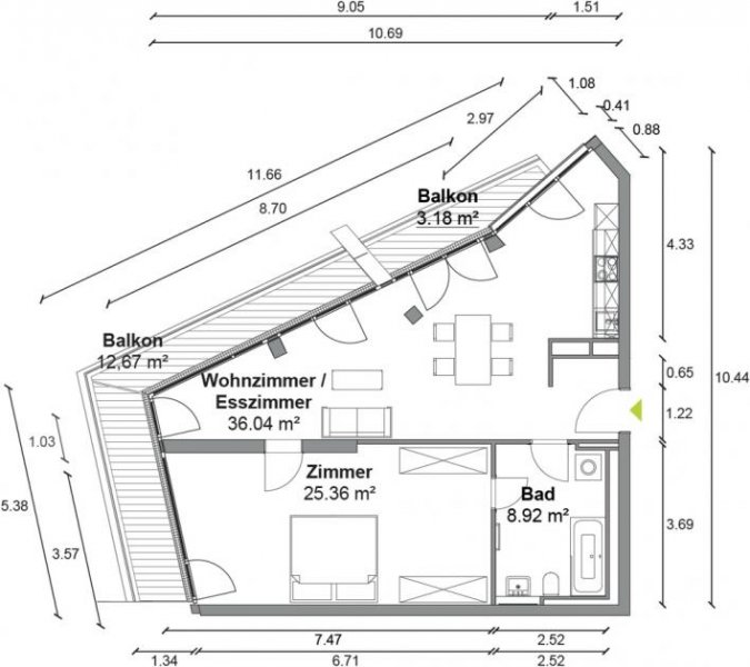
78,25 m²
Preise
Kaltmiete:
1.900,00 €
Warmmiete:
2.280,00 €
Nebenkosten:
380,00 €
Kaution:
5700
Sonstiges
Ihre Objektnr.:
CB114_3
Objekttyp:
Etage
Heizungsart:
Fussboden
Fahrstuhl:
Personen
Zimmer:
2
Badezimmer:
1
Baujahr:
2019
Energiepass
Art:
Bedarf
Gültig bis:
2029-03-24
Endenergiebedarf:
64.30
Ausstattung
Objektbeschreibung
Diese wunderschöne und großzügig geschnittene 2 Zimmer Wohnung mit ca. 78m² Wohnfläche und Balkon im 1.OG des modernen Wohnkomplexes "Charlie Living" in Berlin-Mitte sucht einen neuen Mieter. Tolle Design-Details, eine hochwertige Ausstattung und viele ergänzende Mieter-Services machen das Wohnen im "Charlie Living" zu einem echten Premium-Erlebnis.
Hochwertiges Eichenparkett mit Fußbodenheizung, großzügige Fenster und die schicke Einbauküche...
Neugierig geworden? Alle Informationen und das vollständige Exposé erhalten Sie schnell und unkompliziert auf Anfrage.
Sonstige Angaben
Wir haben Ihr Interesse geweckt?
Hier auf dieser Seite finden Sie jetzt die Möglichkeit der Kontaktaufnahme. Für weitere Informationen (Termine, Anschrift u.ä.) benötigen wir Ihre Angaben: Name, Vorname, Anschrift, E-Mail, Telefonnummer (fest/mobil).
Anfragen ohne Angabe Ihrer Rückrufnummer und Ihrer Adresse können von uns nicht bearbeitet werden!
Für alle weiteren Informationen rufen Sie uns bitte unter der Telefonnummer 0170 61 81 61 3 an. Es betreut Sie:
Ivo Berg
Die Angaben in diesem Angebot beruhen auf Angaben des Auftraggebers oder Dritten. Agas-Immobilien übernimmt keine Haftung und keine Gewähr für die Richtigkeit, Vollständigkeit und Aktualität dieser Angaben. Irrtum, Auslassungen und Zwischenverwertung vorbehalten. Die im Exposé genannten Maßangaben (einschließlich bemaßter Grundrisse) sind als Circa-Angaben zu verstehen, welche vereinzelt Abweichungen vorweisen können. Die in den Grundrissen gezeigte Möblierung ist nur als Einrichtungsvorschlag zu verstehen, das Objekt wird unmöbliert übergeben.
Nur ein geringer Anteil unserer Immobilien wird von uns im Internet präsentiert. Suchende können sich über unsere Website http://www.agas-immobilien.de/sie-suchen-wir-finden für Immobilien vormerken lassen. Sie erhalten dann Immobilienangebote, bevor diese online vermarktet werden.
Möchten Sie eine Immobilie verkaufen oder vermieten, wir informieren Sie gerne diskret und unverbindlich über Ihre Möglichkeiten.
www.agas-immobilien.de
Angaben zum Energieausweis:
Baujahr 2019
Zustand Neuwertig
Energieausweis Bedarfsausweis
Endenergiebedarf 66 kWh/(m2*a)
Energieausweis gültig bis 07.04.2029
Baujahr lt. Energieausweis 2019
wesentlicher Energieträger Fernwärme
Folge agas.berlin auf Instagram oder Facebook und sei immer zuerst informiert!
Wohnungen Berlin
Weitere Inserate zum mieten und kaufen finden sich unter Berlin. Berlin ist die geografische Zuordnung dieses Objektes zum mieten und kaufen.
Die Daten zu diesem Anbieter lauten: Agas Immobilien GmbH Ansprechpartner Matthias Wedel, Ackerstraße 9 in 10115 Berlin.
Synonyme zur Suche Berlin Wohnungen:
Berlin günstige Wohnung, Wohnungsanzeigen Berlin










