GROSSFLÄCHIG: GEWERBEGRUNDSTÜCK MIT KRANHALLE UND BEFESTIGTEM FREIGELÄNDE
Exposé: GROSSFLÄCHIG: GEWERBEGRUNDSTÜCK MIT KRANHALLE UND BEFESTIGTEM FREIGELÄNDE
PLZ /Ort:
Kaufpreis
Gesamtfläche
Gesamtfläche
Flächen
Nutzfläche:
1.728,00 m²
Gesamtfläche:
1.728,00 m²
Grundstücksfläche:
8.679,00 m²
Preise
Sonstiges
Ihre Objektnr.:
330006766
Zimmer:
2
Hallenhöhe:
8.00
Baujahr:
1982
Energiepass
Ausstattung
Kran
Objektbeschreibung
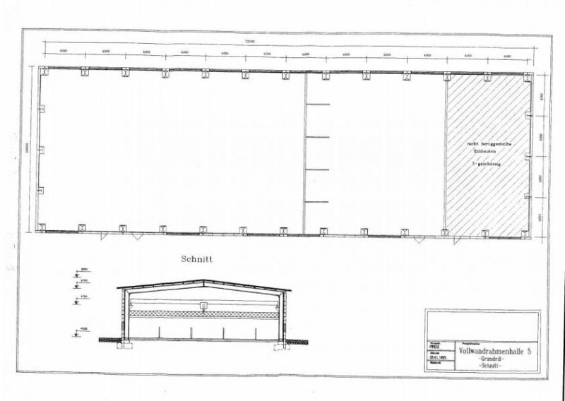
Gesichertes und befestigtes Industriegrundstück mit Kranhalle im Industriepark Stendal/Arneburg an der im Bau befindlichen Autobahn 14.
Das massive Gebäude hat an der straßenseitigen Längsseite 4 Hallentore mit ca. 4,5 x 4,5 m Durchfahrt sowie mehrere Türen.
Der separate Büro- und Sozialbereich ist extra beheizbar, die Halle zur Beheizung vorbereitet.
Ein Gleisanschluss liegt auf der gegenüber liegenden Straßenseite. Hinweis zum Energieausweis: Gem. ENEV 2014 kein Energieausweis für diese Immobilie erforderlich Übergabe/Verfügbarkeit ab: n. Vereinbarung. DEN KAUFPREIS BEKOMMEN SIE VON UNS AUF ANFRAGE. Provisionshinweis: 7,14 % des Kaufpreis vom Käufer. Dieses Angebot wird bei uns betreut von Herr Joachim Westphal, Tel. 0178/1356037.
Ausstattung
Besondere Ausstattungsmerkmale: Kran oder Kranbahn vorhanden
Sonstige Angaben
Alle INFORMATIONEN ZU DIESEM ANGEBOT, mehr Fotos sowie Pläne/Grundriss bekommen Sie über das Expose auf unserer Internetseite. Die vollständige ANSCHRIFT können Sie ebenfalls über das Kontaktfeld im Expose auf unserer Internetseite anfordern. Verwenden Sie dazu diesen Link: https://KuehneGmbH.de/330006766 .
Auf unserer Webseite können Sie sich auch über weitere Angebote informieren und Ihre Suchwünsche vormerken, bzw. einen Suchauftrag erstellen.
Wenn Sie Fragen haben, rufen Sie uns einfach an. Wir beraten Sie gerne zu Ihrer Immobiliensuche und versuchen, Ihnen zu helfen.
Übrigens, wenn Sie eine vergleichbare Immobilie selbst zu vermieten oder zu verkaufen haben, sprechen Sie mit uns. Als erfahrene Makler beraten wir Sie gerne und erläutern Ihnen unverbindlich, welchen Mehrwert wir Ihnen bieten können.
Gewerbe Immobilien Arneburg
Weiterhin können Sie Inserate auf der Seite Arneburg finden. Der Link zu Immobilien zum mieten und kaufen dieses Bundeslandes findet man unter Sachsen-Anhalt.
Weitere Immobilien zum mieten und kaufen kommen von Dipl.Ing. Kühne GmbH Ansprechpartner Wolfgang Kühne, Brandensteinweg 6 in 13595 Berlin.
Synonyme zur Suche Arneburg Gewerbe Immobilien:
Arneburg Immobilien für Unternehmen, Gewerbeimmobilien mieten Arneburg, Industrie Immobilien Arneburg





