... größer geht immer
Exposé: ... größer geht immer
PLZ /Ort:
Kaufpreis
Wohnfläche
Zimmer
Grundstücksfläche
Flächen
Wohnfläche:
218,00 m²
Grundstücksfläche:
750,00 m²
Preise
Kaufpreis:
354.099,00 €
Vermittl.-Provision:
provisionsfrei
Sonstiges
Ihre Objektnr.:
1.2 LifeStyle 29 Legden
Heizungsart:
Fussboden
Befeuerung:
Solar
Zustand:
Erstbezug
Bad:
Fenster
Stellplätze (Anz.):
2
Zimmer:
6
Schlafzimmer:
4
Badezimmer:
3
Seperate WC:
1
Baujahr:
2018
Energiepass
Art:
Bedarf
Gültig bis:
05-2025
Endenergiebedarf:
55.3
Ausstattung
Räume veränderbar
Kamin
Gartennutzung
Abstellraum
Rolladen
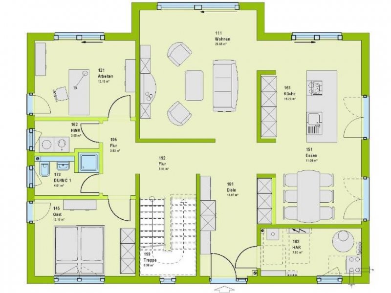
Objektbeschreibung
Ausbauhaus LifeStyle 29
von außen fix und fertig und Weiß verputzt, inkl. Haustür, Dachrinne, Dacheindeckung
Im Kaufpreis enthalten:
* Bodenplatte inkl. Abdichtung und Bodengrunduntersuchung (Keller mit Mini-Mehrpreis möglich)
* Luft-Wasser-Wärmepumpe oder Gas-Brennwertheizung mit Solaranlage
* Kontrollierte Be- und Entlüftungsanlage mit Wärme-Rückgewinnung
* Fußbodenheizung
* Fenster mit 3-fach Verglasung inkl. Rollläden
* Sanitär Zu- und Ableitungen
* Elektropaket
* Dämmungs- und Beplankungspaket
* Architektenleistung
Von Profis für Sie zum einfachen Innenausbau vorbereitet
Oder bevorzugen die fast-fertig Option?
Gerne, sprechen Sie mit uns. Dank den cleveren Ausbaupaketen von massa haus ist alles möglich.
Errichtung und Fertigstellung nach Absprache, zzgl. Innenausstattung und Baunebenkosten (Abbildung mit Sonderwünschen).
Lage
Das hier angebotene Grundstück wird durch einen unserer vielen Grundstückspartner separat vermarktet.
Der Grundstückpreis ist im angegebenen Kaufpreis enthalten.
Nicht Ihre favorisierten Lage?
Mit unserem KOSTENLOSEN Grundstücksservice für unsere Baupartner finden wir gemeinsam auch Ihr Traumgrundstück.
Ausstattung
massa haus baut sensationelle Energiesparhäuser nach der Energieeinsparverordnung (EnEV 2014) zu einem kaum vorstellbaren Preis,
ermöglicht durch das flexible massa-System, das Ihr Bau-Budget spürbar reduziert!
Denn massa haus ist Marktführer in Ausbauhäusern!
Bauen Sie mit massa-haus und Sie gehören zu den über 2.700 Baufamilien die sich Jährlich für den Markführer entscheiden.
Ich beraten Sie - und planen gerne gemeinsam mit Ihnen Ihr Traumhaus!
Rufen Sie jetzt an und überzeugen Sie sich selbst!
Mark Sowa
mobil: 0173 521 0 628
Sonstige Angaben
massa – das Original!!!
Gehen Sie beim Bauen ganz auf Nummer Sicher!
Vertrauen Sie einem erfahrenen, soliden und seriösen Partner!
Machen Sie es deshalb einfach wie über 30.000 zufriedene Baufamilien vor Ihnen!
Denn mehr Sicherheit und Vorteile als beim deutschen Ausbauhaus-Marktführer werden Sie kaum finden.
Ihre Vorteile im Überblick:
* Made in Germany
* über 35 Jahre Erfahrung
* Deutschland's Marktführer in Ausbauhäusern
* über 30.000 gebaute Häuser und zufriedene Baufamilien
* KfW Energieeffizienzhaus im Standard, EnEV 2014
* kompetente Hausberatung in 75 Musterhäusern in ganz Deutschland
* massa-Flatrate-Finanzierung und Sonderzinsprogramme
* Grundstücksservice
* und vieles mehr
Rufen Sie jetzt an und überzeugen Sie sich selbst!
Mark Sowa
mobil: 0173 521 0 628
http://www.massa-haus.de
http://blog.massa-haus.de
Hinweis zu den gesetzlichen Pflichtangaben gemäß der EnEV 2014: Das hier angebotene Haus ist ein Neubauprojekt und es liegt daher noch kein endgültiger Energieausweis vor. Dieser wird Ihnen spätestens im Rahmen der Erstellung des Objektes ausgehändigt. Der Angegebene Wert entspricht von ein vom uns gebauten massa Haus diesen Type für einem Kunden im Umfeld
Häuser Legden
Weitere Inserate zum mieten und kaufen finden sich unter Legden. Die Angeben des Anbieters lauten ergoDesign e.K. Ansprechpartner Mark Sowa, Bahnhofstraße 70 in 45731 Waltrop. Dem Bundesland Nordrhein-Westfalen ist dieser Eintrag zugeordnet.
Synonyme zur Suche Legden Häuser:
Legden Häuser online, Haus mieten und kaufen Legden, günstige Häuser Legden










