Grenznahe 4 Zi. Galerie DG mit Balkon ca. 112 m² - Wohnung 9 - Siegfriedstr. 4, 79787 Lauchringen - Neubau KFW
Exposé: Grenznahe 4 Zi. Galerie DG mit Balkon ca. 112 m² - Wohnung 9 - Siegfriedstr. 4, 79787 Lauchringen - Neubau KFW
Strasse:
PLZ /Ort:
Kaufpreis
Wohnfläche
Zimmer
Flächen
Wohnfläche:
112,00 m²
Preise
Kaufpreis:
456.000,00 €
Vermittl.-Provision:
keine Käuferprovison da Bauträger!
Sonstiges
Ihre Objektnr.:
Grenznah-NB-Siegf. 4-4 Zi. Galeriewohnung-Nr. 9
Objekttyp:
Dachgeschoss
Heizungsart:
Fussboden
Fahrstuhl:
Personen
Bad:
Fenster
Zimmer:
4
Schlafzimmer:
3
Badezimmer:
1
Baujahr:
2026
Energiepass
Art:
Bedarf
Endenergiebedarf:
47.00
Baujahr:
2026
Jahrgang:
2014
Gebäudeart:
wohn
Ausstattung
Objektbeschreibung
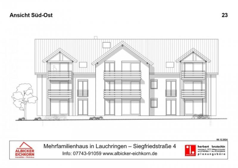
In einer ruhigen und zugleich zentralen Wohngegend von Lauchringen entsteht unser Mehrfamilienhaus "Siegfriedstraße 4". Die verkehrsgünstige Lage ermöglicht es, das Dorfzentrum in nur wenigen Gehminuten zu erreichen.
Das Gebäude beherbergt 9 Wohneinheiten, die in solider Kalksandsteinbauweise gefertigt wurden und somit den Bedürfnissen der Bewohner nach Ruhe und Erholung besonders gerecht werden. Moderne Bauelemente vereinen sich hier mit traditioneller Handwerkskunst und schaffen dadurch sowohl wohnliche als auch wertbeständige Eigentumswohnungen.
Eine zeitgemäße Heizungsanlage in Kombination mit einem hervorragenden Wärmeverbundsystem garantiert die Standards eines Effizienzhauses 40 - ein klimafreundliches Wohngebäude (KFN). Dies bedeutet für die Bewohner angenehme Wärme bei niedrigen Heizkosten. Die flexible Grundrissgestaltung sowie das helle, lichtdurchflutete Innendesign ermöglichen individuelles Wohnen in einem modernen Ambiente. Vom 2-Zimmer-Appartement bis hin zur 5-Zimmer-Wohnung können nahezu alle Wohnungsgrößen realisiert werden.
Teilen Sie uns Ihre Wünsche in Bezug auf Größe, Zuschnitt und Ausstattung Ihrer Wohnung mit - unsere Vorschläge werden Sie überzeugen!
Erleben Sie die perfekte Symbiose aus zentraler Wohnlage, solider Massivbauweise und ansprechender Architektur.
Zudem stehen Tiefgaragenplätze für 25.000 EUR, eine Außengarage für 28.000 EUR und Stellplätze für 8.000 EUR zum Erwerb bereit.
https://my.matterport.com/show/?m=AwuuD8jmoCY
Lage
Das Mehrfamilienwohnhaus liegt in der familienfreundlichen Gemeinde Lauchringen, genauer gesagt in Unterlauchringen. In wenigen Minuten erreichbar sind: ein Kinderspielplatz, ein Ärztehaus, Kita, Kindergarten, Grundschule, Hauptschule, Werkrealschule, Freibad, Tennishalle, Fitness- und Sportzentrum sowie eine Vielzahl von Einkaufsmöglichkeiten.
Die hohe Lebensqualität der Gemeinde wird durch ein umfangreiches Freizeitangebot, das von der Gemeinde, den Vereinen, dem Familienzentrum, der Ganztagesbetreuung und den Schulen sowie von der Volksbank und Sparkasse und einem beheizten Freischwimmbad bereitgestellt wird, zusätzlich unterstrichen.
Kurze Wege nach Zürich und in die übrige Schweiz sowie in den Schwarzwald machen Lauchringen zu einem idealen Ausgangspunkt für Ausflüge. In unmittelbarer Nähe finden sich zwei internationale Flughäfen (Zürich 40 km und Basel 60 km). Die Anbindung an Bus- und Bahnverbindungen ist ebenso gut ausgebaut wie die Straßenanbindung.
Ausstattung
*Aufzug
*Tiefgarage, Stellplätze (können dazu erworben werden)
*Hausmeisterdienst
*Niedrigenergiehaus gemäß KFW40
*Klimafreundlicher Neubau (KFN) 297+298
*Kalksteinbauweise mit Wärmedämmverbundsystem
*Eine Abluftanlage sorgt für den Abtransport verbrauchter Luft in den Bädern und Toiletten.
*Fußbodenheizung in Wohn-, Schlafräumen sowie in Küchen- und Badezimmern, ausgestattet mit Raumthermostaten
*Kunststofffenster mit wärmeschutzisolierender 3-fach Verglasung
Alle senkrechten Fenster innerhalb der Wohnungen sind mit außen sichtbaren Vorbaurollläden oder Jalousien
mit Elektroantrieb versehen.
*Die Hebeschiebetüren in den Wohnzimmern sind ebenfalls mit Jalousien und Elektroantrieb ausgestattet. An den Dachliegefenstern sind keine Rollläden oder Jalousien vorgesehen.
*Zugang zum Balkon über eine benutzerfreundliche Hebe-Schiebetür.
*Abstellraum im Flur vorhanden
*Alle Räume in den Wohnungen und im Treppenhaus sind mit Maschinenwandputz oder Edelputz versehen
*Der Kellerraum ist mit einer Deckenleuchte und einer Steckdose ausgestattet
*Türsprechanlage mit Haustüröffner
*Anschluss an die öffentliche Versorgung für Wasser, Strom, Telefon, Kabel und Entsorgung
Sonstige Angaben
- Klimafreundlicher Neubau (KFN 297+298)
- zinsvergünstigtes Darlehen 100.000 EUR pro Wohnung
- Energieeffizienzhaus KFW40
- Steuervorteile für Kapitalanleger: 5 % degressive Abschreibung!
- Hausmeister;
- seniorengerechtes Wohnen;
- Wasch-Trockenraum;
- Neubau;
- städtische Wasserversorgung;
Wohnungen Lauchringen
Weitere Inserate zum mieten und kaufen finden sich unter Lauchringen. Am Anfang suchen User zuerst auf der Seite Baden-Württemberg.
Die Daten zu diesem Anbieter lauten: Albicker+Eichkorn Bau GmbH Ansprechpartner Dieter Albicker, Oberwitzhalden in 79777 Ühlingen-Birkendorf.
Synonyme zur Suche Lauchringen Wohnungen:
Lauchringen günstige Wohnung, Wohnungsanzeigen Lauchringen










