Grenznah 3 Zi. EG mit Terrasse ca. 79 m² - Wohnung 2 - Siegfriedstr. 4, 79787 Lauchringen - Neubau KFW40
Exposé: Grenznah 3 Zi. EG mit Terrasse ca. 79 m² - Wohnung 2 - Siegfriedstr. 4, 79787 Lauchringen - Neubau KFW40
Strasse:
PLZ /Ort:
Kaufpreis
Wohnfläche
Zimmer
Flächen
Wohnfläche:
79,00 m²
Preise
Kaufpreis:
351.550,00 €
Vermittl.-Provision:
keine Käuferprovison da Bauträger!
Sonstiges
Ihre Objektnr.:
Grenznah-NB-Siegf.4-3 Zi. EG-Whg. 2
Objekttyp:
Erdgeschoss
Heizungsart:
Fussboden
Fahrstuhl:
Personen
Bad:
Dusche
Zimmer:
3
Schlafzimmer:
2
Badezimmer:
1
Baujahr:
2026
Energiepass
Art:
Bedarf
Endenergiebedarf:
47.00
Wertklasse:
A
Baujahr:
2026
Jahrgang:
2014
Gebäudeart:
wohn
Ausstattung
Objektbeschreibung
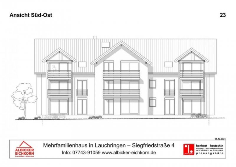
In zentraler und ruhiger Wohnlage von Lauchringen entsteht unser Mehrfamilienwohnhaus "Siegfriedstraße 4”, verkehrsgünstig gelegen, nur wenige Gehminuten vom Dorfzentrum entfernt.
Mit 9 Wohneinheiten in massiver Kalksandsteinbauweise errichtet, wird das Haus dem Ruhe- und Erholungsbedürfnis der Bewohner in besonderer Weise gerecht. Moderne Bauelemente in Verbindung mit traditioneller Handwerkskunst ergeben wohnliche und wertbeständige Eigentums-wohnungen.
Eine moderne Heizung ermöglicht zusammen mit dem hervorragenden Wärmeverbundsystem das Standard Effizienzhaus 40 - Klimafreundliches Wohngebäude (KFN). Für den Bewohner bedeutet dies wohlige Wärme bei geringen Heizkosten. Die variable Grundrissgestaltung und das helle, lichtdurchflutete Interieur ermöglicht individuelles Wohnen in zeitgemäßem Ambiente. Vom 2-Zimmer Appartement bis zur 5-Zimmer Wohnung sind fast alle Wohnungsgrößen realisierbar.
Unterbreiten Sie uns Ihre Wünsche bezüglich Größe, Zuschnitt und Ausstattung Ihrer Wohnung - unsere Vorschläge werden Sie begeistern!
Genießen Sie die Symbiose von zentraler Wohnlage mit solider Massivbauweise und ansprechender Architektur.
Es können Tiefgaragenplätze à 25.000 EUR, eine Außengarage à 28.000 EUR und Stellplätze à 8.000 EUR dazu erworben werden.
Lage
Das Mehrfamilienwohnhaus befindet sich in der familienfreundlichen Gemeinde Lauchringen-in Unterlauchringen. In wenigen Minuten erreichbar: ein Kinderspielplatz , Ärztehaus, Kita, Kindergarten, Grund-/Haupt-/Werkrealschule, Freibad, Tennishalle Fitness- und Sportzentrum und vielfältige Einkaufsmöglichkeiten.
Der hohe Wohnwert der Gemeinde wird durch ein nicht unbeachtliches Freizeitangebot durch die Gemeinde, den Vereinen, dem Familienzentrum, der Ganztagesbetreuung, den Schulen, Volksbank und Sparkasse und einem beheizten Freischwimmbad ergänzt.
Kurze Wege nach Zürich und in die übrige Schweiz sowie in den Schwarzwald macht Lauchringen zu einem idealen Ausgangspunkt für Ausflüge. In unmittelbarer Nähe gibt es gleich zwei internationale Flughäfen (Zürich 40 km und Basel 60 km), die Bus- und Bahnverbindungen sind gut ausgebaut ebenso die Anbindung über die Straßen.
Ausstattung
*Lift
*Tiefgarage, Stellplatz (können dazu erworben werden)
*Hausmeister
*Niedrigenergiehaus KFW40
*Klimafreundlicher Neubau (KFN) 297+298
*Kalksteinbauweise und Wärmedämmverbundsystem
*Eine Abluftanlage saugt die verbrauchte Luft in den Bädern + Toiletten ab.
*Fußbodenheizung in Wohn-/Schlafräumen sowie Küchen- und Bade-
zimmern mit Raumthermostaten
*Kunststofffenster wärmeschutzisoliert 3-fach verglast
Alle senkrechten Fenster innerhalb der Wohnungen erhalten von außen
sichtbare Vorbaurollläden oder Jalousien mit Elektroantrieb.
Bei den Hebeschiebetüren in den Wohnzimmern Jalousien mit Elektroantrieb. An den Dachliegefenstern werden keine Rollläden oder Jalousien angebracht.
*Zugang zur Terrasse über eine leicht zu bedienende Hebe-Schiebetür.
*Abstellraum im Flur
*Alle Räume in den Wohnungen und im Treppenhaus mit Maschinen-
wandputz mit Abrieb oder Edelputz
*Kellerraum mit Deckenleuchte und Steckdose
*Türsprechanlage mit Haustüröffner
*Anschluss an das öffentliche Wasser-, Strom-, Telefon-, Kabel- und
Entsorgungsnetz
Sonstige Angaben
- Klimafreundlicher Neubau (KFN 297+298)
- zinsvergünstigtes Darlehen 100.000 EUR pro Wohnung
- Energieeffizienzhaus KFW40
- Steuervorteile für Kapitalanleger: 5 % degressive Abschreibung!
- Hausmeister;
- seniorengerechtes Wohnen;
- Wasch-Trockenraum;
- Neubau;
- städtische Wasserversorgung;
Wohnungen Lauchringen
Weitere Inserate zum mieten und kaufen finden sich unter Lauchringen. Am Anfang suchen User zuerst auf der Seite Baden-Württemberg.
Die Daten zu diesem Anbieter lauten: Albicker+Eichkorn Bau GmbH Ansprechpartner Dieter Albicker, Oberwitzhalden in 79777 Ühlingen-Birkendorf.
Synonyme zur Suche Lauchringen Wohnungen:
Lauchringen günstige Wohnung, Wohnungsanzeigen Lauchringen










