GEWERBEIMMOBILIE M. POTENTIAL U. PERFEKTER INFRASTRUKTUR INKL. HALLE/BÜRO ETC. IM BELIEBTEN ROSSWEIN
Exposé: GEWERBEIMMOBILIE M. POTENTIAL U. PERFEKTER INFRASTRUKTUR INKL. HALLE/BÜRO ETC. IM BELIEBTEN ROSSWEIN
Strasse:
PLZ /Ort:
Kaufpreis
Gesamtfläche
Gesamtfläche
Flächen
Gesamtfläche:
860,00 m²
Grundstücksfläche:
6.750,00 m²
Preise
Kaufpreis:
226.500,00 €
Kaufpreis / qm:
263,37 €
Vermittl.-Provision:
2,97 % inkl. gesetzl. Mehrwertsteuer, fällig bei Abschluss des notariellen Kaufvertrages
Sonstiges
Ihre Objektnr.:
1329
Objekttyp:
Halle
Heizungsart:
Zentralheizung
Befeuerung:
Solar
Boden:
Fliesen
Zustand:
gepflegt
Baujahr:
1900
Energiepass
Art:
Bedarf
Gültig bis:
2028-01-11
Endenergiebedarf:
164.90
Ausstattung
Kabel/Sat/TV
DV-Verkabelung
Rampe
Kran
Abstellraum
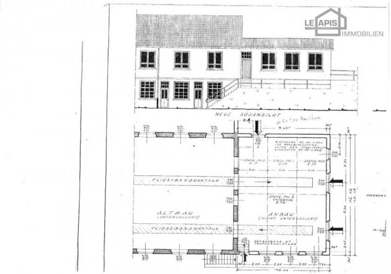
Objektbeschreibung
Entdecken Sie eine einzigartige Gelegenheit zum Erwerb einer vielseitigen Produktionsimmobilie mit Potential in der charmanten Ortschaft Roßwein, im Ortsteil Gleisberg. Dieses massiv gebaute Anwesen aus dem Jahr 1900 vereint historische Architektur mit moderner Funktionalität und bietet damit optimale Voraussetzungen für Ihre Geschäftsentwicklung.
Auf einer großzügigen Grundstücksfläche von ca. 6.750 m² erstreckt sich dieses gepflegte Objekt über zwei Etagen und bietet eine normale Ausstattungsqualität, die Ihren betrieblichen Anforderungen gerecht wird. Die Bodenbeläge aus Fliesen und Beton sorgen für Langlebigkeit und einfache Wartung, ideal für eine Produktionsumgebung.
Breite, stabile Stahltore und befestigte Wege bilden den Zugang zum Grundstück. Vom hinteren, mit dem LKW befahrbaren, Hof gelangen Sie in das Erdgeschoss. Das obere Stockwerk ist ebenerdig über eine zweite Zufahrt zu erreichen. Des Weiteren ist das Grundstück ist vollständig umfriedet.
Es sind isolierte, 1996 erneuerte Fenster, eine Ölheizung von 1992 sowie das 2010 sanierte Dach (feuerverzinktes, isoliertes Blechdach) vorhanden.
Nutzen Sie die Chance, in eine Immobilie mit Potential zu investieren, die mit ihrem funktionalen Design und ihrer strategischen Lage überzeugt.
Zögern Sie nicht, diese Möglichkeit zu ergreifen und einen Standort zu schaffen, der perfekt zu Ihren geschäftlichen Zielen passt. Kontaktieren Sie uns für weitere Informationen und um einen Besichtigungstermin zu vereinbaren.
Lage
Die angebotene Immobilie befindet sich in der charmanten Stadt Roßwein im Ortsteil Gleisberg, gelegen in der malerischen Umgebung von Sachsen, Deutschland. Die Lage zeichnet sich durch ihre hervorragende Verkehrsanbindung aus, die sowohl eine logistische Effizienz für Produktionsaktivitäten als auch eine angenehme Anreise für Mitarbeiter garantiert. Die nahegelegene Autobahn ist lediglich 2,61 km entfernt und bietet eine schnelle Verbindung zu umliegenden Städten und Regionen, was die Immobilie zu einem attraktiven Standort für Unternehmen macht, die auf Transport und Logistik angewiesen sind.
Für Familien und Angestellte, die in der Nähe arbeiten oder wohnen möchten, sind Bildungseinrichtungen leicht erreichbar. Ein Kindergarten befindet sich in nur 1,29 km Entfernung, während die Grundschule 2,32 km und das Gymnasium 5,04 km entfernt liegen und somit eine komfortable Erreichbarkeit für Familien bieten. Außerdem gibt es Einkaufsmöglichkeiten in einem Umkreis von 9,05 km, die eine bequeme Versorgung mit Alltagsbedarf sicherstellen.
Insgesamt bietet die Immobilie nicht nur eine ideale Lage für Produktionszwecke, sondern sorgt auch für eine ausgewogene Balance zwischen Beruf und Alltag, dank ihrer Nähe zu wichtigen Verkehrsknotenpunkten und Einrichtungen des täglichen Lebens.
Ausstattung
- Gewerbeimmobilie inkl. Grundstück u. Nebengebäude mit Potential
- Massivbauweise
- Dach neu 2010 best. aus pulverbeschichtetem, verzinktem Stahlblech mit Teilisolierung (Sandwichplatten)
- Effiziente Zentralheizung
- Kabelanschluss für Sat-TV vorhanden
- Laut Internetauskunft von Vodafone ist DSL bis 400 MBit/s verfügbar
- Starkstromanschluss 380 Volt
- Befeuerung durch Öl, Elektro, Solar und Strom (Photovoltaikanlage - siehe sonstige Angaben!)
- EG: 6 Räume (2 davon teilweise renoviert bzw. derzeit nicht bewohnbar), offene Wohnküche, Bad u. WC (derzeit Wohn-/ Geschäftsbereich noch ausbaubar)
- 1.OG: ein großer Raum mit angrenzendem Büro, Garage u. WC (für Produktion o. a. geeignet)
- Dachboden nutzbar bzw. ausbaubar
- das Nebengebäude vor dem Hauptgebäude auf der rechten Seite, welches zur Unterbringung diverser Utensiliebn dient, ist teilweise mit Asbest verkleidet und sollte bei einem evtl. Abriss entsprechend beahndelt und die Asbestteile separat entsorgt werden.
In der Umgebung sind auch Siedlungshäuser vorhanden (Mischgebiet). Nach Auskunft des entsprechenden Amtes, gibt es in dieser Lage keinen Bebauungsplan, so dass es nach Bauvoranfrage evtl. möglich ist, ein Haus auf diesem Grundstück zu errichten.
Anschreiben Landratsamt v. 31.03.25:
Das Flurstück 261/1 der Gemarkung Gleisberg liegt zwar innerhalb eines wirksamen Flächennutzungsplanes,
jedoch nicht im Geltungsbereich eines rechtskräftigen Bebauungsplanes der Stadt Roßwein. Das
Flurstück 261/1 der Gemarkung Gleisberg ist jedoch nach Einsicht in das beim Landkreis verfügbaren
elektronischen Luftbildkatasterprogramms und unter Berücksichtigung der für das Gemeindegebiet typischen
siedlungsstrukturellen Gegebenheiten im Bereich zwischen der Gemeindestraße „Zum Bahnhof“
und der östlichen Gebäudekannte des Bestandsgebäudes im planungsrechtlichen Innenbereich gemäß §
34 Baugesetzbuch (BauGB) belegen.
Der planungsrechtliche Innenbereich ist zwar gemäß § 34 Abs. 1 BauGB grundsätzlich bebaubar, jedoch
stellt sich hier die besondere Situation der Ausweisung als Grünfläche im Flächennutzungsplan und die
nähe zu den Gleisanlagen dar. Diese Umstände könnten eine Wohnbebauung beeinträchtigten. Der
Neubau eines bspw. EFH wäre – wenn überhaupt - nur im Korridor zw. der östlichen Gebäudekante
des Bestandsgebäudes und der weiter östlich angrenzenden Gemeindestraße denkbar.
Die grundsätzliche Bebaubarkeit unterliegt dabei außerdem dem Einfügungserfordernis nach § 34 Abs. 1
BauGB bezogen auf die überbaubaren Grundstücksflächen, dem Maß der baulichen Nutzung, der Bauweise
und dem Rücksichtnahmegebot (§ 15 BauNVO).
Mögliche Baubeschränkungen können jedoch auch durch geltendes Ortsrecht bestehen. Daher sollten
Sie ggf. Erkundigungen bei der Stadtverwaltung Roßwein einholen
Sonstige Angaben
Es liegt ein Energiebedarfsausweis vor.
Dieser ist gültig bis 11.1.2028.
Endenergiebedarf beträgt 164.90 kwh/(m²*a).
Wesentlicher Energieträger der Heizung ist Öl.
Das Baujahr des Objekts lt. Energieausweis ist 1900.
Die Energieeffizienzklasse ist F.
Die Photovoltaikanlage erbringt ca. 40700 kWh jährlich (Kreditvertrag dafür läuft noch bis 2031 und ist im Kaufpreis (226.500,-€) mit berücksichtigt bzw. sollte mit übernommen werden (Der mtl. Einspeisepreis über Mitgas aktuell so hoch, dass die Rate für den noch laufenden Kredit damit getilgt wird.)
Sollte die Photovoltaikanlage seitens des Käufers nicht mit übernommen werden, muss der Käufer den Strompreis an den bisherigen Eigentümer zahlen bzw. fungiert dieser dann als Stromversorger. Der Kaufpreis für die Immobilie inkl. Nebengebäude würde dann nur 175.000,-€ betragen.
Alle Angaben in diesem Exposé wurden nach bestem Wissen und Gewissen des Eigentümers gemacht. Die Firma LE APIS Immobilien kann keine Gewährleistung für die Richtigkeit und Vollständigkeit der Angaben übernehmen. Fotos, Texte und Grafiken unterliegen dem Copyright der Firma LE APIS Immobilien.
****************************
Sie haben auch (ein) Haus oder eine Eigentumswohnung in dieser Gegend zu verkaufen?
Besuchen Sie unsere Tippgeberseite auf www.le-apis-immobilien.de
Genau für Ihre Immobilie könnten wir den passenden Käufer haben!
Fragen Sie doch einfach mal nach unter: 034298-54907-0 oder senden Sie uns eine E-Mail an info@le-apis-immobilien.de
****************************
Gewerbe Immobilien Roßwein
Dieses vorliegende Exposé gehört zur Listeseite Roßwein. Sachsen ist die geografische Zuordnung dieses Objektes zum mieten und kaufen.
Weitere Immobilien zum mieten und kaufen kommen von LE APIS Immobilien Ansprechpartner Peggy Günther, Friedrich-Engels-Straße 22 B in 04425 Taucha.
Synonyme zur Suche Roßwein Gewerbe Immobilien:
Roßwein Immobilien für Unternehmen, Gewerbeimmobilien mieten Roßwein, Industrie Immobilien Roßwein










