Gesucht - Gefunden
Exposé: Gesucht - Gefunden
PLZ /Ort:
Kaltmiete
Wohnfläche
Zimmer
Flächen
Wohnfläche:
51,02 m²
Preise
Kaltmiete:
340,00 €
Warmmiete:
510,00 €
Nebenkosten:
170,00 €
Kaution:
1020.00
Sonstiges
Ihre Objektnr.:
368580
Heizungsart:
Zentralheizung
Befeuerung:
Gas
Stellplatz-Art:
Freiplatz
Stellplätze (Anz.):
1
Zimmer:
2
Baujahr:
1994
Energiepass
Art:
Verbrauch
Gültig bis:
30.11.2028
E-Verbrauchskennw.:
139
Ausstellungsdatum:
2018-12-02
Ausstattung
Objektbeschreibung
Liebevoll saniertes Mehrfamilien-Fachwerkhaus.
Lage
Nur wenige Minuten vom Stadtzentrum entfernt, steht das Fachwerkhaus in der Remstädter Straße.
Auf dem Lageplan erkennen Sie, dass die Remstädter Straße in Richtung Gotha-Nord liegt. In unmittelbarer Nähe befinden sich die Haltestellen des öffentlichen Nahverkehrs.
Ausstattung
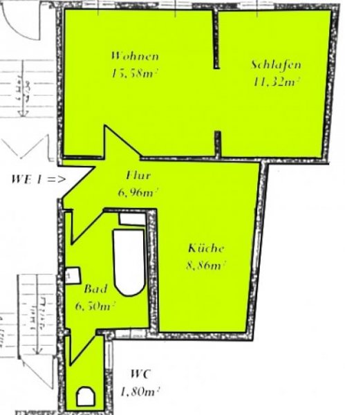
Das Bad ist gefliest und mit Badewanne, die Toilette ist mit einer extra Tür vom Badezimmer getrennt. Bad und Küche sind mit Fenster ausgestattet. Die Wohnung ist mit Parkettboden ausglegt. Eine offene Küche ermöglicht, den Flurbereich effektiv zu nutzen. Ein Kellerraum ist ebenfalls vorhanden.
Sonstige Angaben
Befeuerung/Energieträger: Erdgas leicht
Heizungsart: Zentralheizung
Energieausweistyp: Verbrauchsausweis
Energiekennwert: 139 kWh/(m²*a)
Baujahr: 1994
Wohnungen Gotha
HomeBooster hat diese Immobilie unter Gotha gespeichert. Thüringen ist die geografische Zuordnung dieses Objektes zum mieten und kaufen.
Die Daten zu diesem Anbieter lauten: HONNEF Immobilien Ansprechpartner Peter Honnef & Rudolf Steinert GbR, Schlossberg in 99867 Gotha.
Synonyme zur Suche Gotha Wohnungen:
Gotha günstige Wohnung, Wohnungsanzeigen Gotha







