Geschäftshaus im Zentrum von Oelsnitz/V., ca. 3.800 m² Nutzfläche, san-bed. TG, 77 Stpl., Aufzug
Exposé: Geschäftshaus im Zentrum von Oelsnitz/V., ca. 3.800 m² Nutzfläche, san-bed. TG, 77 Stpl., Aufzug
PLZ /Ort:
Kaufpreis
Gesamtfläche
Flächen
Grundstücksfläche:
2.571,00 m²
vermietbare Fläche:
3.859,00 m²
Preise
Kaufpreis:
750.000,00 €
Vermittl.-Provision:
3,57 % des Kaufpreises inkl. gesetzlicher MwSt.
Sonstiges
Ihre Objektnr.:
OelGr26
Objekttyp:
Geschaeftshaus
Heizungsart:
Zentralheizung
Fahrstuhl:
Personen
Befeuerung:
Gas
Baujahr:
1994
vermietet:
1
Energiepass
Art:
Verbrauch
EP inkl. Warmwasser:
ja
Stromwert:
123.00
Wärmewert:
100.00
Baujahr:
1994
Jahrgang:
2014
Gebäudeart:
nichtwohn
Ausstattung
Objektbeschreibung
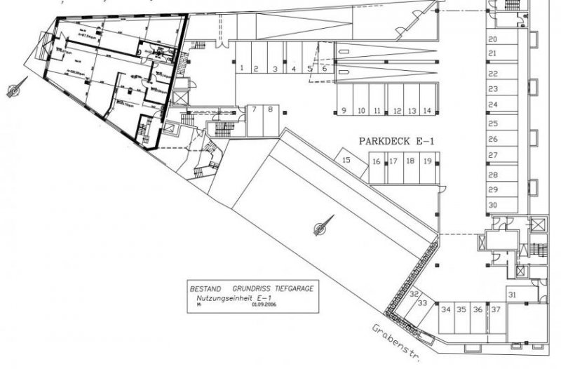
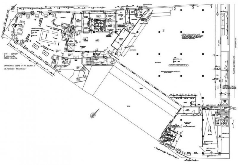
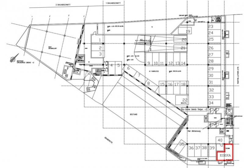
Das Geschäftshaus wurde 1994 in 2 Bauabschnitten errichtet. Das Bauteil I ist unterkellert. Dort befindet sich auf 2 Ebenen verteilt eine Tiefgarage mit insgesamt 77 Stellplätzen. Es gibt 7 Gewerbeeinheiten mit einer Nutzfläche von ca. 2.759 m². Eine Einheit im Erdgeschoss (ca. 1.557 m²) ist an einen EDEKA-Markt vermietet. Die restlichen Flächen sind leerstehend und befinden sich teilweise im Rohbauzustand. In den Technikräumen im Kellerbereich gab es Feuchtigkeitsschäden, die jedoch mittels Trocknungsgeräten behoben wurden.
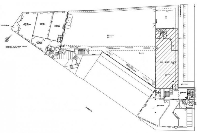
Das Bauteil II ist nicht unterkellert. Insgesamt befinden sich dort 6 Gewerbeeinheiten, die leer stehen, jedoch im Gegensatz zum Bauteil I ausgebaut sind. Die Nutzfläche beträgt ca. 1.100 m². Im Obergeschoss befand sich auf einer Fläche von ca. 280 m² ein Tanzcafé. Auf dem Bauteil I befindet sich ein großflächiges Flachdach, welches teilweise zur Dachterrasse umfunktioniert werden könnte.
Die Immobilie ist an die öffentliche Kanalisation angeschlossen und wird mit einer zentralen Gasheizung betrieben. 2021 wurde ein Glasfaserkabelanschluss ins Haus verlegt.
Die noch auszubauenden Leerflächen eröffnen eine Vielzahl an Nutzungsmöglichkeiten für die Immobilie, wie beispielsweise als Betreutes Wohnen, Tagespflege oder als Schulungsräume.
Ursprünglich beabsichtigte der Verkäufer einen Verkauf der Immobilie für 1.150.000 EUR.
An der Immobilie sind nach Angaben des Verkäufers folgende Mängel bekannt geworden:
- Die Tiefgarage ist sanierungsbedürftig wegen Salzeintrages. Eine Korrosion an der Stahlbewehrung der Ebenen und Stützen wird nicht ausgeschlossen.
In den Jahren 1919 und 1920 erfolgte auf der Basis eines Gutachtens eine sondierende Sanierung eines 6 m langen Tiefgaragenabschnittes inkl. eines Stützenfußes einer Betonstütze.
Eine weitere Sanierung der gesamten Tiefgarage wurde von den Eigentümern bisher nicht in Angriff genommen.
- Für die Tiefgarage gibt es ein System mit Wandhydranten. Dieses genügt neueren brandschutztechnischer Vorgaben nicht mehr. Auch wegen des technischen Zustandes muss das System außer Dienst gestellt werden. Alternativ ist die Installation einer äquivalenten Anzahl von Handfeuerlöschern geplant. Diese Veränderung wurde von den zuständigen Behörden der Stadt Oelsnitz und des Vogtlandkreises geprüft und genehmigt. Über eine Realisierung des Vorhabens ist uns nichts bekannt.
- Zur turnusmäßigen Prüfung der elektrischen Kraft- und Lichtanlagen ist uns bekannt, das eine erneute Prüfung nach Auskunft der zuständigen Versicherung in 07/2025 erfolgen soll.
Protokolle der bisherigen Prüfungen liegen uns nicht vor.
Lage
Die Große Kreisstadt Oelsnitz/Vogtl. liegt im Westen des sächsischen Vogtlandkreises. Die Stadt mit ca. 10.000 Einwohnern befindet sich südlich von Plauen und ist Mitglied der Verwaltungsgemeinschaft Oelsnitz/Vogtl. Am Rande des Stadtzentrums fließt die Weiße Elster. Chemnitz befindet sich circa 80 km nordöstlich von Oelsnitz, Zwickau circa 50 km in der gleichen Richtung. Die Stadt ist verkehrsgünstig direkt an der B92 mit Anbindung an die A72 gelegen.
Es gibt im Ort 3 Gewerbegebiete. Ansässig sind vorrangig mittelständische Unternehmen, Handwerksbetriebe und Dienstleistungsunternehmen. Größter Arbeitgeber ist die Firma Meiser Vogtland OHG, die in Oelsnitz 2020 eine der modernsten Verzinkungsanlagen Europas in Betrieb genommen hat.
Die Gewerbeimmobilie befindet sich unweit vom Stadtzentrum. Geschäfte des täglichen Bedarfs, Banken sowie Einrichtungen der medizinischen Versorgung sind fußläufig erreichbar.
Sonstige Angaben
Bitte nutzen Sie das Kontaktformular, um uns Ihre Fragen bzw. Ihren Besichtigungswunsch mitzuteilen. Wir nehmen schnellstmöglich den Kontakt zu Ihnen auf bzw. senden Ihnen gern ergänzende Unterlagen entsprechend Ihrer Anfrage zu.
Alle Angaben beruhen auf Aussagen der Eigentümer bzw. basieren auf den uns bis dato vorliegenden Unterlagen und erfolgen ohne Gewähr. Irrtum und zwischenzeitlicher Verkauf bleiben vorbehalten. Fotos, Grundrisse und Exposé © 2025, Immobilienbüro Kühn
Gewerbe Immobilien Oelsnitz/Vogtland
Die Verlinkung dieses Exposé's ist unter Oelsnitz/Vogtland inseriert. Sachsen ist die geografische Zuordnung dieses Objektes zum mieten und kaufen.
Weitere Immobilien zum mieten und kaufen kommen von Immobilienbüro Kühn GmbH & Co. KG Ansprechpartner Wolfgang Kühn, Jahnstraße 17 in 08058 Zwickau.
Synonyme zur Suche Oelsnitz/Vogtland Gewerbe Immobilien:
Oelsnitz/Vogtland Immobilien für Unternehmen, Gewerbeimmobilien mieten Oelsnitz/Vogtland, Industrie Immobilien Oelsnitz/Vogtland










