GERA: 3 - Zimmer Mietwohnung mit Personenaufzug in attraktivem Wohnobjekt in Gera-Debschwitz !
Exposé: GERA: 3 - Zimmer Mietwohnung mit Personenaufzug in attraktivem Wohnobjekt in Gera-Debschwitz !
PLZ /Ort:
Kaltmiete
Wohnfläche
Zimmer
Flächen
Wohnfläche:
79,00 m²
Preise
Kaltmiete:
712,00 €
Warmmiete:
712,00 €
Nebenkosten:
174,00 €
Sonstiges
Ihre Objektnr.:
462670#3452
Objekttyp:
Dachgeschoss
Heizungsart:
Fernheizung
Zimmer:
3
Schlafzimmer:
2
Baujahr:
1996
Energiepass
Gültig bis:
21.07.2029
E-Verbrauchskennw.:
51,2
Ausstattung
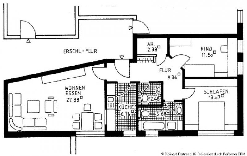
Objektbeschreibung
Die moderne 3-Raum-Wohnung ist bequem über einen Personenaufzug erreichbar. Das Objekt verfügt über eine interessante Architektur, Einkaufsmöglichkeiten und gepflegte Grünflächen im Außenbereich, sowie eine Tiefgarage.
Immo Paradise 6f38db15 8a0af31e 462670#3452
Lage
In unmittelbarer Umgebung befinden sich Schulen, Ärzte, Kindergärten, Einkaufsmöglichkeiten und auch der Geraer Tierpark. Öffentliche Verkehrsmittel sind zu Fuß sehr gut erreichbar.
Ausstattung
- Die sehr schöne Wohnung befindet sich im 2. Obergeschoss des Gebäudes.
- Besonders das geräumige Wohnzimmer bietet viel Platz.
- Das Gesamtbild wird abgerundet durch eine Gäste-Toilette sowie einen zusätzlichen kleinen Abstellraum innerhalb der Wohnung.
- Küche, Bad und Gästetoilette sind gefliest.
- Ein größerer Abstellraum auf der Wohnungsetage außerhalb der Wohnung ist vorhanden.
Sonstige Angaben
Heizungsart: Fernwärme
Energieausweistyp: Verbrauchsausweis
Energiekennwert: 51,2 kWh/(m²*a)
Energie mit Warmwasser: Nein
Baujahr: 1996
-
- Ihr Fahrzeug kann bequem auf dem zu dieser Wohnung gehörenden Tiefgaragenstellplatz (Miete 40,00 € monatlich) abgestellt werden.
- Ein Bezug der Wohnung ist ab Frühjahr 2024 möglich.
-
Weitere Objekte von uns finden Sie hier: https://immo-paradise.eu/properties/?vup=3452
Jens Fritsche
+493658001188, +493658001188
Döring & Partner oHG
Wohnungen Gera
HomeBooster hat diese Immobilie unter Gera gespeichert. Thüringen ist die geografische Zuordnung dieses Objektes zum mieten und kaufen.
Die Daten zu diesem Anbieter lauten: Immoparadies EOOD Ansprechpartner Ihr Team, Priseltsi, Hadji Dimitar Street 4A in Varna / Priseltsi.
Synonyme zur Suche Gera Wohnungen:
Gera günstige Wohnung, Wohnungsanzeigen Gera



