Generationen-tauglich: Neubau, 2 EBK, PV & Speicher, Garage, Doppelcarport, 2 Kamine, Zisterne, Möbliert
Exposé: Generationen-tauglich: Neubau, 2 EBK, PV & Speicher, Garage, Doppelcarport, 2 Kamine, Zisterne, Möbliert
PLZ /Ort:
Kaufpreis
Wohnfläche
Zimmer
Grundstücksfläche
Flächen
Wohnfläche:
150,00 m²
Grundstücksfläche:
1.967,00 m²
Preise
Kaufpreis:
325.000,00 €
Vermittl.-Provision:
3%
Sonstiges
Ihre Objektnr.:
5782#KRCoH
Objekttyp:
Doppelhaushaelfte
Heizungsart:
Zentralheizung
Befeuerung:
Gas
Stellplatz-Art:
Duplex
Bad:
Fenster
Küche:
EBK
Garagen (Anz.):
1
Zimmer:
5
Badezimmer:
2
Baujahr:
2024
vermietet:
1
denkmalgeschuetzt:
1
Ferienobjekt:
1
Energiepass
Art:
Bedarf
Gültig bis:
03.11.2035
Endenergiebedarf:
103.7
EP inkl. Warmwasser:
ja
Ausstattung
Kamin
Sauna
Swimmingpool
Objektbeschreibung
Aus Diskretionsgründen handelt es sich bei dem öffentlichen Exposé in den Portalen um eine Kurzversion. Die ausführliche Version mit allen Unterlagen, Bildern, Grundrissen und einer 360°-Objektbesichtigung erhalten Sie nach einer qualifizierten Anfrage über das jeweilige Kontaktformular per E-Mail.
Diese umfassend kernsanierte Doppelhaushälfte (Baujahr/Fertigstellung 2024) verbindet viel Platz mit einer sehr angenehmen Wohnatmosphäre. Schon der erste Eindruck überzeugt: klare Architektur, großformatige Fensterflächen und ein freier Blick in den großen, sonnigen Garten.
Im Erdgeschoss empfängt Sie ein offener Wohn-/Essbereich mit Kaminofen – perfekt für gemütliche Abende. Die zeitlose Einbauküche ist direkt angeschlossen; im Erdgeschoss sorgt eine Fußbodenheizung für angenehme Wärme. Ein Schlafzimmer und ein komfortables Duschbad machen das Wohnen auf einer Ebene möglich. Von hier gelangen Sie auf die neu angelegte Terrasse – ideal für den ersten Kaffee in der Sonne oder den Tagesausklang im Grünen.
Über die elegante Treppe geht es ins ausgebaute Dachgeschoss: heller Wohnraum mit bodentiefen Fenstern (französischer Balkon; Geländer bereits produziert und in Kürze montiert), sichtbaren Holzbalken, zweitem Kaminofen und einer zweiten, modernen Einbauküche. Rückzugsräume und ein Duschbad ergänzen das Geschoss. Dank der cleveren Grundrissstruktur lässt sich das Haus bei Bedarf in zwei getrennten Bereichen nutzen – eine mögliche Einliegerwohnung* für Angehörige, Homeoffice oder Gäste.
Die Haustechnik ist auf der Höhe der Zeit: Photovoltaikanlage mit Batteriespeicher zur Eigenstromnutzung, elektrische Rollläden, Regenwasserzisterne sowie eine insgesamt solide, junge Bauausführung. Die Möbel sollen verbleiben – Sie können also schnell und komfortabel starten.
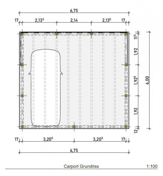
Auch draußen stimmt das Paket: Süd-/West-orientierter Garten mit viel Rasenfläche, Garage, Doppelcarport sowie ein großer Holz- und Geräteschuppen. Im hinteren Grundstücksbereich gibt es eine praktische Stellplatzfläche mit Wasser-/Strom-/Abwasser-Anschluss – perfekt z. B. für ein oder zwei Wohnmobile.
Kurz: ein sehr gepflegtes, sofort nutzbares Zuhause mit flexiblen Nutzungsmöglichkeiten – ideal für große Familien, Mehrgenerationen, „Wohnen & Arbeiten“ oder einfach für Menschen, die viel Raum und einen großen Garten schätzen.
Lage
Die Immobilie liegt im Ortsteil Fahrenhaupt der Stadt Marlow (Landkreis Vorpommern‑Rügen) – ruhig, grün und dennoch gut angebunden zwischen Rostock und Stralsund.
Alltägliche Versorgung ist im Stadtgebiet Marlow verfügbar (u. a. Netto‑Markt, Apotheke, Hausärzte, Grund‑ und Regionale Schule, städtische Kita). Der Vogelpark Marlow liegt ebenfalls in der Stadt und ist schnell erreicht.
Die Recknitz‑Niederung mit weiten Auen‑ und Moorlandschaften beginnt praktisch vor der Tür – ein Paradies für Naturfreunde, Paddler und Radler.
Distanzen (Richtwerte):
Marlow → Ostsee (z. B. Ribnitzer Bodden)** ca. 26 km
Marlow → Rostock ca. 38 km
Marlow → Stralsund ca. 45 km
Marlow → Ribnitz‑Damgarten ca. 15 km
Autobahn A20 (z. B. AS Sanitz/Tribsees) in gut erreichbarer Distanz; die Küstenorte auf dem Fischland‑Darß‑Zingst sind bequem per Auto erreichbar.
Freizeit & Umfeld: Küste und Bodden, Vogelpark Marlow, Recknitz‑Tal, Wassersport, Radwege, Reiten; ruhige Nachbarschaft mit überwiegend gepflegter Einfamilienhaus‑/DHH‑Struktur.
Ausstattung
+ Photovoltaikanlage mit Batteriespeicher
+ 2 Kaminöfen (Wohnbereiche)
+ Fußbodenheizung im Erdgeschoss
+ Elektrische Rollläden an Fenstern und Terrassentüren
+ Regenwasser‑Zisterne (Gartenbewässerung etc.)
+ Garage + großer Doppel‑Carport
+ Großer Holzschuppen (Holzlager / Geräte)
+ Strom/Wasser/Abwasser‑Anschluss auch im hinteren Grundstücksbereich – ideal für Wohnmobile
+ Terrasse
+ möbliert
Sonstige Angaben
Verfügbarkeit/Verkaufszeitpunkt in Abstimmung. Alle Angaben ohne Gewähr; sie beruhen auf Verkäufer‑ und Behördenunterlagen und werden im Zuge der Vermarktung fortlaufend aktualisiert.
Wenn du und deine Familie gerne Freunde von diesem Haus werden möchtet, dann schreibt uns doch bitte bald. Bitte vergewissert Euch doch auch zuvor, ob die Bank erlaubt, das liebe Haus in Besitz zu nehmen.
*** Wir freuen uns schon sehr auf Euch***
Eine solide Finanzierung ist der Schlüssel für eine entspannte und sichere Immobilienentscheidung. Deshalb empfehlen wir, bereits frühzeitig mit einem erfahrenen Finanzierungspartner zusammenzuarbeiten. Dieser Service ist für Sie vollkommen kostenlos. Sie müssen sich nicht selbst durch zahllose Angebote kämpfen – und können dabei gleichzeitig unnötige Schufa-Anfrage-Einträge vermeiden.
Gern unterstützen wir Sie hier mit unserem Finanzierungspartner:
Herr Robert Schmidt:
📞 Mobil: 0173 6497154
✉️ E-Mail: robertschmidt@buechel24.de
Häuser Marlow
Unter Marlow findet man weitere relevante Immobilien zur Miete und zum Kauf. Die Angeben des Anbieters lauten Lisa Büchel - Immobilien Ansprechpartner Lisa Büchel, Oldendorfer Straße, 3 in 18147 Rostock. Der Link zu Immobilien zum mieten und kaufen dieses Bundeslandes findet man unter Mecklenburg-Vorpommern.
Synonyme zur Suche Marlow Häuser:
Marlow Häuser online, Haus mieten und kaufen Marlow, günstige Häuser Marlow










