Finca mit Altgenehmigung - modernes Neubauprojekt zwischen Manacor & Porto Cristo
Exposé: Finca mit Altgenehmigung - modernes Neubauprojekt zwischen Manacor & Porto Cristo
PLZ /Ort:
Kaufpreis
Wohnfläche
Zimmer
Grundstücksfläche
Flächen
Wohnfläche:
433,20 m²
Nutzfläche:
573,90 m²
Grundstücksfläche:
18.350,00 m²
Preise
Kaufpreis:
350.000,00 €
Sonstiges
Ihre Objektnr.:
CD-6956CA
Garagen (Anz.):
1
Zimmer:
5
Energiepass
Ausstattung
Objektbeschreibung
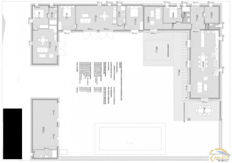
Diese außergewöhnliche Finca in begehrter Lage zwischen Manacor und Porto Cristo bietet eine seltene Gelegenheit: ein bewilligtes Bauprojekt auf einem großzügigen Grundstück mit bestehender Altgenehmigung - eine echte Rarität auf Mallorca. Diese Genehmigung erlaubt eine Bauweise, die unter der heutigen Gesetzgebung kaum mehr realisierbar wäre.
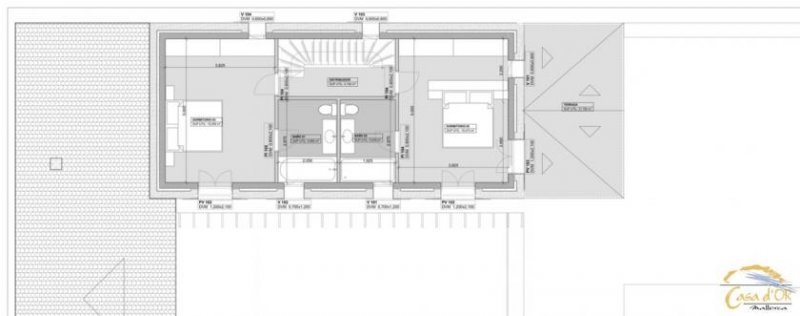
Geplant ist eine moderne, lichtdurchflutete Finca mit ca. 400 m² Wohnfläche, die Architektur, Natur und Lebensqualität auf höchstem Niveau vereint. Der Entwurf sieht fünf Schlafzimmer vor, inklusive eines großzügigen Masterbereichs sowie eines separaten Gästetrakts - ideal für Familien, Freunde oder eine hochwertige Ferienvermietung.
Das Herzstück des Hauses bildet ein offener Wohn- und Essbereich mit Designerküche und direktem Zugang zu den weitläufigen Außenbereichen. Große Fensterflächen sorgen für fließende Übergänge zwischen innen und außen. Ein eleganter Poolbereich mit Sonnenterrassen ergänzt das Ensemble perfekt.
Im Untergeschoss sind Technikräume sowie zusätzliche Nutzflächen vorgesehen. Dank der bestehenden Genehmigung lassen sich individuelle Ausstattungswünsche realisieren - z. B. eine Photovoltaikanlage, Zisterne oder Garage.
Ob als stilvolle Privatresidenz, generationsübergreifendes Feriendomizil oder renditestarkes Investment - dieses Projekt vereint Vision, Sicherheit und Exklusivität.
Lage
Die Finca befindet sich in einer der beliebtesten Regionen der mallorquinischen Ostküste, eingebettet in sanfte Hügellandschaften, Felder und mediterrane Vegetation. Sie liegt nur 2 Kilometer von Porto Cristo und etwa 10 Fahrminuten von Manacor entfernt.
Porto Cristo, mit seinem charmanten Hafen, feinem Sandstrand, der Uferpromenade und den berühmten Drachenhöhlen, bietet mediterranes Lebensgefühl pur. Manacor - die zweitgrößte Stadt Mallorcas - begeistert mit ganzjähriger Infrastruktur, Ärzten, Supermärkten, Restaurants sowie dem international bekannten Rafa Nadal Sportzentrum.
Die nächste Schnellstraße (Ma-15) erreichst du in wenigen Minuten - von dort bist du in nur 45-50 Minuten am Flughafen Palma und in etwa 55 Minuten im Stadtzentrum von Palma.
Ein Standort, der Ruhe und Rückzug bietet - und gleichzeitig optimal angebunden ist.
Häuser
Weiterhin können Sie Inserate auf der Seite finden. Die Daten zu diesem Anbieter lauten: Casa d´OR, C.B. Ansprechpartner Chris Laurence West, Apartado de correos 385 in 07680 Porto Cristo. ist die geografische Zuordnung dieses Objektes zum mieten und kaufen.
Synonyme zur Suche Häuser:
Häuser online, Haus mieten und kaufen, günstige Häuser








