Feine 1,5 Zi. Maisonettewohnung, Dachterrasse, Einbauküche, Parkett, Duschbad!
Exposé: Feine 1,5 Zi. Maisonettewohnung, Dachterrasse, Einbauküche, Parkett, Duschbad!
Strasse:
PLZ /Ort:
Kaltmiete
Wohnfläche
Zimmer
Flächen
Wohnfläche:
48,20 m²
Preise
Kaltmiete:
655,00 €
Warmmiete:
735,00 €
Nebenkosten:
80,00 €
Kaution:
1637.50
Sonstiges
Ihre Objektnr.:
137575
Boden:
Kunststoff
Zustand:
Teil- / Vollsaniert
Küche:
Offene Küche
Zimmer:
2
Energiepass
Ausstattung
Objektbeschreibung
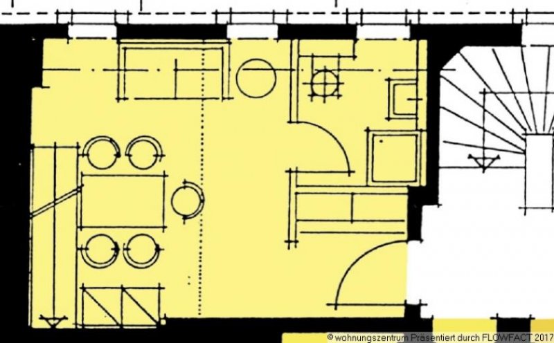
Hochwertige Maisonettewohnung in einem liebevoll sanierten Altbauobjekt mitten im Herzen der Neustadt in der Kamenzer Straße 3. Die Wohnung verfügt im unteren Bereich über eine offene Küche einen Wohn- oder Essbereich sowie das Duschbad. Über eine Treppe erreicht man den oberen offenen Raum, an den sich die Dachterrasse anschließt. In der Wohnung ist Parkett verlegt. Die Wohnung verfügt über eine Einbauküche, bestehend aus diversen Schränken, Kühlschrank ohne Frostfach, Herdplatten und Spülbecken. Für ihre Wäsche können sie die im Keller befindlichen Münzwaschmaschinen benutzen. Die Mindestmietzeit beträgt 24 Monate. Ist Ihr Interesse geweckt? Dann melden Sie sich schnell bei uns, gern besichtigen wir die Wohnung mit ihnen.
Lage
Der Ortsteil:
Einkaufsmöglichkeiten rund um den Albertplatz oder entlang der Alaunstraße befinden sich in unmittelbarer Umgebung, aber auch kleine individuelle Geschäfte kennzeichnen den Charakter des Ortsteils genau so wie auch zahlreiche Kunstgalerien und Werkstätten. Besonders beliebt ist das Szenenviertel durch seine zahlreichen, verschiedenen Restaurants, Bars und Kneipen, die Jung und Alt anziehen und begeistern. Weit bekannt ist außerdem die Pfunds Molkerei, welche zu den bekanntesten touristischen Sehenswürdigkeiten Dresdens zählt. Ihr historischer Laden entstand 1891 und wurde innen mit künstlerisch, im Stil der Neorenaissance gestalteten Fliesen von Villeroy & Boch ausgestattet. Die BRN ist das Stadtteilfest der Äußeren Neustadt, organisiert von allen interessierten Bürgern der Bunten Republik. Seit 1990 wird sie traditionell am zweiten Juni Wochenende ausgerufen und hat sich von einer politischen Republik gegen Spekulation, Mietwucher, Zerstörung und Vertreibung der Bewohner zum Nachbarschafts-, Kunst- & Kulturfest entwickelt.
Infrastruktur:
Die Straßenbahnlinie 13 führt ideal durch das Innere der Äußeren Neustadt. Der Alberplatz, nicht weit entfernt, ist der Knotenpunkt der anderen Straßenbahnlinien 3, 6, 7, 8 und 11. Optimal ist die unmittelbare Nähe zum Neustädter Bahnhof. Auch der Flughafen ist in ca. 15 min. zu erreichen.
Architektur/Bebauung:
Zum Ende des 19. Jahrhunderts erlebte das Viertel einen regelrechten Boom. Viele der heute charakteristischen Häuser sind in dieser Zeit entstanden. Deshalb gehört die Äußere Neustadt mit seinen Mehrfamilienhäusern heute auch zu den größten Stadtgebieten mit geschlossener "Gründerzeitbebauung" in Deutschland. Aber ach vereinzelte Häuser im Jugendstil sind zu finden.
Wissenswertes:
Die Äußere Neustadt ist auch bekannt als Antonstadt, benannt nach dem sächsischen König Anton. Im Mittelalter hieß das Gebiet "der Sand". Im 30-jährigen Krieg fiel das angebaute Land wüst, und der Treibsand der Heide verwehte Felder und Straßen. Im Jahre 1744 gab der Landesherr das Gebiet zur Bebauung frei. Es wurde in Parzellen aufgeteilt und die meisten heute noch existierenden Straßen angelegt. Im Zuge der Königsbrücker und Bautzner Straße entstanden etliche Gasthöfe und Gärten. Sie entwickelten sich zu beliebten Vergnügungsorten der Dresdner. Auch heute gilt die Äußere Neustadt als Szeneviertel.
Ausstattung
Bitte Anmerkung zu den geringen Nebenkosten beachten! Für Heizung und Warmwasser
schließt der Mieter einen direkten Vertrag mit dem Versorger ab.
Sonstige Angaben
Die im Exposé angegebene sehr geringe Nebenkostenvorauszahlung beinhaltet nur die kalten Nebenkosten. Für Heizung und Warmwasser schließt der Mieter einen direkten Vertrag mit dem Versorger ab.
Wohnungen Dresden
Das Immobilieninserat gehört zur Kategorie Dresden. Der Link zu Immobilien zum mieten und kaufen dieses Bundeslandes findet man unter Sachsen.
Die Daten zu diesem Anbieter lauten: wohnungszentrum dresden Ansprechpartner André Runge, Prellerstraße in 01309 Dresden.
Synonyme zur Suche Dresden Wohnungen:
Dresden günstige Wohnung, Wohnungsanzeigen Dresden










