Erste eigene Wohnung?
Exposé: Erste eigene Wohnung?
Strasse:
PLZ /Ort:
Kaltmiete
Wohnfläche
Zimmer
Flächen
Wohnfläche:
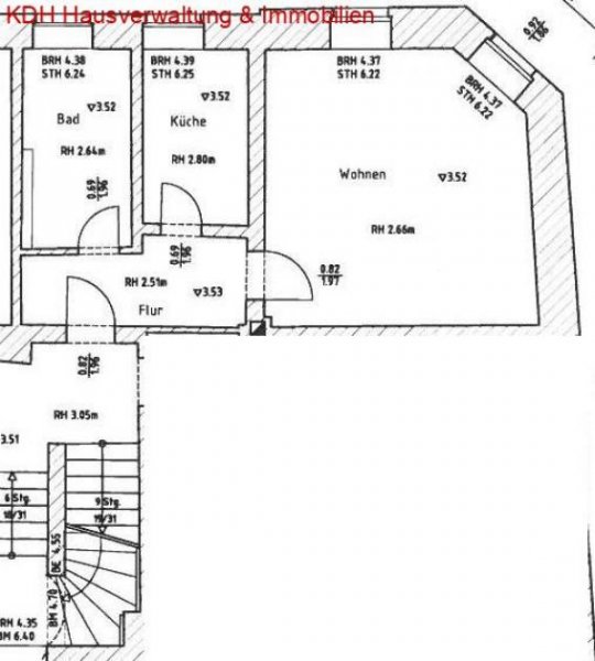
37,09 m²
Preise
Kaltmiete:
245,00 €
Warmmiete:
355,00 €
Nebenkosten:
50,00 €
Heizkosten:
60,00 €
Sonstiges
Ihre Objektnr.:
151-007
Objekttyp:
Etage
Heizungsart:
Zentralheizung
Befeuerung:
Gas
Boden:
Teppich
Zustand:
gepflegt
Bad:
Fenster
Zimmer:
1
Badezimmer:
1
Ferienobjekt:
1
Energiepass
Art:
Verbrauch
E-Verbrauchskennw.:
170.00
EP inkl. Warmwasser:
ja
Wertklasse:
F
Baujahr:
1900
Jahrgang:
2014
Gebäudeart:
wohn
Ausstattung
Objektbeschreibung
Das Mehrfamilienhaus befindet sich direkt gegenüber vom bekannten Uhrenmuseum von Glashütte. Ihre Wohnung ist dennoch ruhig gelegen.
Ein kleiner Innenhof sowie ein Fahrradraum steht Ihnen zur Nutzung frei.
Lage
Ihre künftige Wohnung liegt im Stadtkern von Glashütte.
Überzeugend sind die Verkehrsanbindungen nach Dresden und Heidenau durch gut ausgebaute Straßen, regelmäßig fahrende Linienbusse und die Müglitztalbahn.
Ausstattung
- 1 helles Wohnzimmer
- 1 Flur
- 1 Bad / WC mit Fenster
- 1 Küche mit Fenster
Sonstige Angaben
Besuchen Sie doch auch unsere Internetseite und schauen Sie sich weitere attraktive Wohnungsangebote an. Gern besprechen wir Einzelheiten mit Ihnen bei einer Besichtigung.
Wohnungen Glashütte (Landkreis Sächsische Schweiz-Osterzgebirge)
HomeBooster hat diese Immobilie unter Glashütte (Landkreis Sächsische Schweiz-Osterzgebirge) gespeichert.
Synonyme zur Suche Glashütte (Landkreis Sächsische Schweiz-Osterzgebirge) Wohnungen:
Glashütte (Landkreis Sächsische Schweiz-Osterzgebirge) günstige Wohnung, Wohnungsanzeigen Glashütte (Landkreis Sächsische Schweiz-Osterzgebirge)









