ERSTBEZUG! Stilvolle 3-Zimmer-Maisonettewohnung mit Garten in Wedding
Exposé: ERSTBEZUG! Stilvolle 3-Zimmer-Maisonettewohnung mit Garten in Wedding
Strasse:
PLZ /Ort:
Kaltmiete
Wohnfläche
Zimmer
Flächen
Wohnfläche:
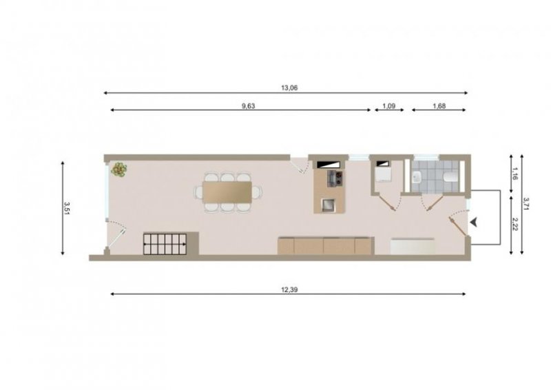
82,00 m²
Preise
Kaltmiete:
1.920,00 €
Warmmiete:
2.080,00 €
Nebenkosten:
160,00 €
Kaution:
3840
Sonstiges
Ihre Objektnr.:
MB358
Objekttyp:
Maisonette
Heizungsart:
Fussboden
Befeuerung:
Erdwärme
Zustand:
Erstbezug
Zimmer:
2
Badezimmer:
1
Seperate WC:
1
Baujahr:
2026
Energiepass
Ausstattung
Objektbeschreibung
Mitten im lebendigen Wedding und doch wunderbar ruhig gelegen, erwartet Sie im Gartenhaus der Schulstraße 34 eine außergewöhnliche Maisonettewohnung mit ca. 82 m² Wohnfläche – ein echtes Refugium für alle, die urbanes Leben und privaten Rückzugsort harmonisch verbinden möchten.
Bereits beim Eintreten spürt man die Großzügigkeit dieser besonderen Wohnung. Der offen gestaltete Wohn- und Essbereich mit Galerie schafft ein luftiges Raumgefühl und wird durch große Fensterflächen hervorragend belichtet. Hochwertige Eichendielen, stilvolle Holzfenster sowie eine angenehme Fußbodenheizung sorgen für ein behagliches Wohnambiente auf beiden Ebenen.
Ein echtes Highlight ist der direkte Zugang zur Terrasse und in den kleinen, liebevoll geplanten Garten mit Sondernutzungsrecht – Ihre persönliche grüne Oase mitten in der Stadt. Hier genießen Sie künftig entspannte Sommerabende oder den ersten Kaffee des Tages im Freien.
Die hochwertig ausgestattete Einbauküche fügt sich harmonisch in das offene Wohnkonzept ein und bietet viel Raum für kulinarische Kreativität. Das großzügige Hauptbad überzeugt mit Badewanne und großer Dusche – modern, komfortabel und stilvoll gestaltet. Ergänzt wird das Raumangebot durch ein separates Gästebad sowie einen praktischen Hauswirtschaftsraum. Ein großer Kellerraum bietet zusätzlichen Stauraum.
Technisch ist die Wohnung zukunftsorientiert aufgestellt: Geothermie und Solarenergie gewährleisten nicht nur nachhaltiges Wohnen, sondern auch spürbar geringe Nebenkosten. An heißen Sommertagen sorgt die Geothermie für angenehme Kühlung. Raffstores bieten zusätzlichen Schutz vor Sonne und garantieren ruhigen Schlaf. Schnelles Internet ist selbstverständlich verfügbar.
Die Außenanlagen befinden sich derzeit in den letzten Zügen der Fertigstellung und werden in Kürze finalisiert, sodass sich das Gesamtbild der Anlage in den kommenden Wochen vollständig abrunden wird. Ein Einzug ist im April möglich.
Lage
Die Schulstraße befindet sich im Herzen von Berlin-Wedding, einem Stadtteil, der in den letzten Jahren eine bemerkenswerte Entwicklung durchlaufen hat. Wedding steht heute für Authentizität, kulturelle Vielfalt und eine lebendige Kiezstruktur – kombiniert mit wachsender Nachfrage und nachhaltiger Aufwertung.
In fußläufiger Umgebung finden sich zahlreiche Einkaufsmöglichkeiten für den täglichen Bedarf, Supermärkte, Bäckereien, Wochenmärkte sowie vielfältige Gastronomieangebote von traditionell bis modern. Kleine Cafés, internationale Restaurants und kreative Konzepte prägen das Straßenbild. Schulen, Kitas, Ärzte und Dienstleister sind ebenfalls bequem erreichbar – ideal für Paare, Familien oder Berufstätige.
Hervorragende Verkehrsanbindung
Die Anbindung ist ausgezeichnet und macht die Lage besonders attraktiv:
• U-Bahnlinie U6 (u. a. Bahnhof Seestraße) mit direkter Verbindung Richtung Friedrichstraße und Mitte
• U9 (nahe Leopoldplatz) mit schneller Anbindung an Zoologischer Garten und City West
• Mehrere Buslinien entlang der Müllerstraße und Seestraße
• Gute Erreichbarkeit des Berliner Hauptbahnhofs sowie des Flughafens BER
• Schnelle Anbindung an den innerstädtischen Ring und die Stadtautobahn A100
Die Berliner Innenstadt ist in kurzer Zeit erreichbar – sowohl mit dem öffentlichen Nahverkehr als auch mit dem Fahrrad oder Auto.
Grün & Freizeit
Trotz urbaner Lage kommt auch die Erholung nicht zu kurz. Der nahegelegene Volkspark Rehberge bietet weitläufige Grünflächen, Spazierwege, Sportmöglichkeiten und sogar ein Freibad. Der Schillerpark – als UNESCO-Welterbe Teil der Berliner Moderne – lädt ebenfalls zum Verweilen ein.
Diese Kombination aus urbaner Infrastruktur, hervorragender Verkehrsanbindung und grünen Rückzugsorten macht die Schulstraße 34 zu einer Lage mit nachhaltiger Perspektive.
Ausstattung
• Maisonettewohnung im ruhigen Gartenhaus
• Ca. 82 m² Wohnfläche
• Direkter Gartenzugang mit Terrasse
• Privater Garten
• Offener Wohn- und Essbereich mit Galerie
• Große Fensterflächen, sehr gute Belichtung
• Hochwertige Eichendielen
• Holzfenster
• Fußbodenheizung in allen Räumen
• Geothermie & Solarenergie (geringe Nebenkosten)
• Kühlfunktion durch Geothermie im Sommer
• Sonnen- und Sichtschutz
• Hochwertige Einbauküche
• Großzügiges Hauptbad mit Badewanne & großer Dusche
• Separates Gästebad
• Hauswirtschaftsraum
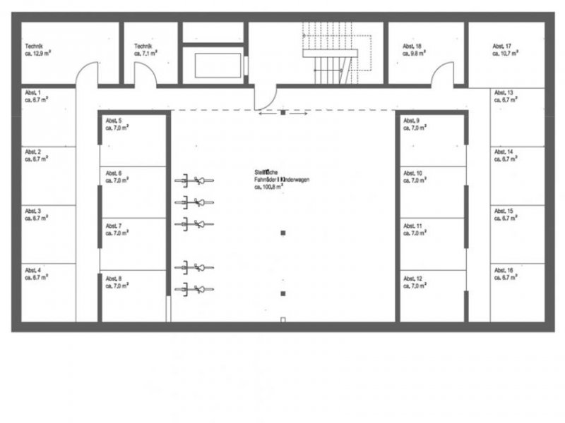
• Großer Kellerraum
Sonstige Angaben
Wir haben Ihr Interesse geweckt?
Hier auf dieser Seite finden Sie jetzt die Möglichkeit der Kontaktaufnahme. Für weitere
Informationen (Termine, Anschrift u.ä.) benötigen wir Ihre Angaben: Name, Vorname, Anschrift,
E-Mail, Telefonnummer (fest/mobil).
Unvollständige Anfragen können wir nicht bearbeiten.
Für alle weiteren Informationen rufen Sie uns bitte unter der Telefonnummer 0172 234 22 12 an.
Es berät Sie: Romy Bollmann
Folgende Unterlagen werden für eine Bewerbung benötigt:
- Einkommensnachweise der letzten drei Monate
- Personalausweis (in Kopie)
- Mietschuldenfreiheitsbescheinigung vom aktuellen Vermieter
- Schufa-Auskunft (www.meineschufa.de)
- im Falle einer Bürgschaft benötigen wir die gleichen Unterlagen des Bürgen (ohne WBS) und eine
Bürgschaftserklärung
Die Angaben in diesem Angebot beruhen auf Angaben des Auftraggebers oder Dritten.
Agas-Immobilien übernimmt keine Haftung und keine Gewähr für die Richtigkeit, Vollständigkeit
und Aktualität dieser Angaben. Irrtum, Auslassungen und Zwischenverwertung vorbehalten.
Nur ein geringer Anteil unserer Immobilien wird von uns im Internet präsentiert. Suchende
können sich über unsere Website http://www.agas-immobilien.de/sie-suchen-wir-finden für
Immobilien vormerken lassen. Sie erhalten dann Immobilienangebote, bevor diese online
vermarktet werden.
Folge agas.berlin auf Instagram oder Facebook und sei immer zuerst informiert!
Möchten Sie auch eine Immobilie verkaufen oder vermieten, wir informieren Sie gerne diskret und unverbindlich über Ihre Möglichkeiten. Auf http://www.agas-immobilien.de finden Sie diverse Referenzen und Kundenstimmen von erfolgreichen Vermittlungen.
Wohnungen Berlin
Weitere Inserate zum mieten und kaufen finden sich unter Berlin. Berlin ist die geografische Zuordnung dieses Objektes zum mieten und kaufen.
Die Daten zu diesem Anbieter lauten: Agas Immobilien GmbH Ansprechpartner Matthias Wedel, Ackerstraße 9 in 10115 Berlin.
Synonyme zur Suche Berlin Wohnungen:
Berlin günstige Wohnung, Wohnungsanzeigen Berlin









