Erstbezug in Calpe / Costa Blanca: Luxus-Villa mit herrlichem Panorama-Meerblick
Exposé: Erstbezug in Calpe / Costa Blanca: Luxus-Villa mit herrlichem Panorama-Meerblick
PLZ /Ort:
Kaufpreis
Wohnfläche
Zimmer
Grundstücksfläche
Flächen
Nutzfläche:
670,00 m²
Gesamtfläche:
670,00 m²
Grundstücksfläche:
1.000,00 m²
Preise
Kaufpreis:
1.950.000,00 €
Vermittl.-Provision:
provisionsfrei
Sonstiges
Ihre Objektnr.:
342115
Objekttyp:
Villa
Heizungsart:
Fussboden
Fahrstuhl:
Personen
Befeuerung:
Solar
Boden:
Fliesen
Sicherheitstechnik:
Alarmanlage
Zustand:
Erstbezug
Ausblick:
See
Bad:
Fenster
Küche:
Offene Küche
Zimmer:
8
Schlafzimmer:
6
Badezimmer:
4
Baujahr:
2020
nur Nichtraucher:
1
Energiepass
Ausstattung
klimatisiert
Gartennutzung
Swimmingpool
Wasch/Trockenraum
Objektbeschreibung
Neubau, Luxusvilla in Calpe, in der Urbanisation Maryvilla - mit Panoramablick auf das Meer und den Peñon de Ifach (Symbol der Costa Blanca). Absolut ruhige Lage.
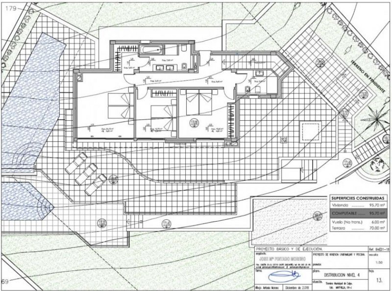
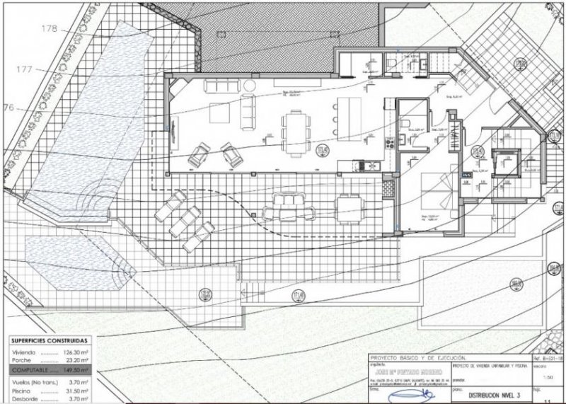
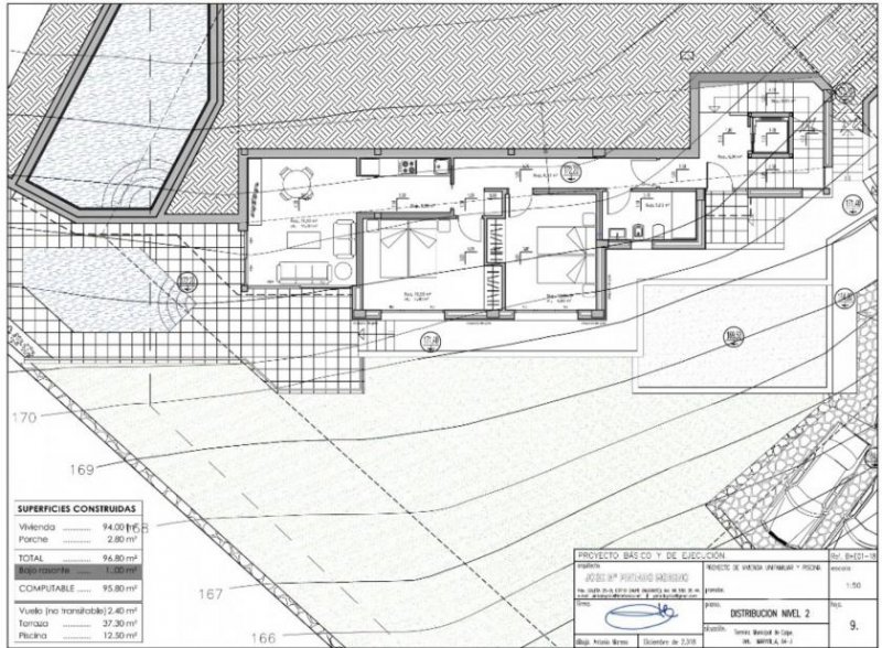
Grundstück von 1.000 m2 mit einer bebauten Fläche von 670 m2, aufgeteilt auf verschiedene Ebenen (verbunden mit Aufzug und Treppe):
Auf der Straßenebene gibt es ausreichend Parkplätze für mehrere Fahrzeuge und eine Doppelgarage (40 m2). Auf der untereren Etage befindet sich ein Lagerraum (10 m2) und ein Technikraum (8 m2).
Im Erdgeschoss gibt es eine separate Wohnung bestehend aus 2 Schlafzimmern (13 m2 + 13 m2), 1 Badezimmer (6 m2), Küche und Wohnzimmer von 15 m2 mit Zugang zu einer Terrasse von 40 m2 und Pool für die Gäste 12 m2.
Im Erdgeschoss gibt es eine breite Eingangshalle, 1 Schlafzimmer von 12 m2 mit eigenem Bad, 1 Gäste WC, schöner Wohn-Essbereich / Küche (55 m2 ) mit eingebautem Grillbereich, überdachte Terrasse 25 m2, verbunden mit einer großen Terrasse (70 m2 ), an der sich der Hauptpool mit Infinity Effekt befindet.
Einzigartiges modernes Design, Verarbeitung und Materialien von höchster Qualität und einwandfreie Ausführung der Arbeiten.
Ausgestattet mit Fußbodenheizung mit Thermostaten in jedem Raum, Klimaanlage (Air Zone System), Keramikfußböden + Marmor, eigener Aufzug, Hausautomation und Alarmanlage.
Das Haus befindet sich noch im Bau. Fertigstellung voraussichtlich in 6 Monaten.
Besichtigungen (und Reservierung) sind jederzeit möglich.
Häuser
Weiterhin können Sie Inserate auf der Seite finden. Die Daten zu diesem Anbieter lauten: Grunwald Immobilien Ansprechpartner Marc Grunwald, Lange Str. 172a in 44581 Castrop-Rauxel. ist die geografische Zuordnung dieses Objektes zum mieten und kaufen.
Synonyme zur Suche Häuser:
Häuser online, Haus mieten und kaufen, günstige Häuser










