Erfolgsmodel Generationen-Wohnen - zusammen im Zweifamilienhaus
Exposé: Erfolgsmodel Generationen-Wohnen - zusammen im Zweifamilienhaus
PLZ /Ort:
Kaufpreis
Wohnfläche
Zimmer
Grundstücksfläche
Flächen
Wohnfläche:
238,00 m²
Grundstücksfläche:
500,00 m²
Preise
Kaufpreis:
486.900,00 €
Sonstiges
Ihre Objektnr.:
18012025-11
Zimmer:
8
Energiepass
Jahrgang:
ohne
Gebäudeart:
wohn
Ausstattung
Objektbeschreibung
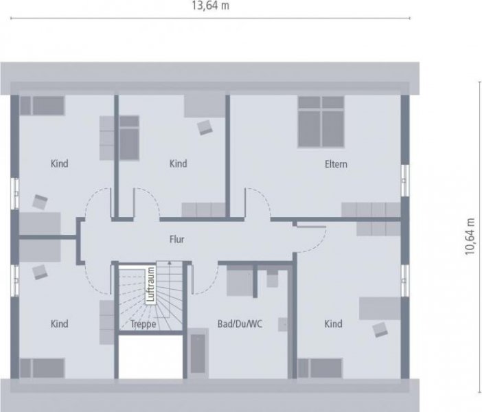
Unter dem Satteldach steckt reichlich Potential. Auf zwei Etagen finden Großfamilien viel Raum zur Entfaltung. Im Erdgeschoss trumpft der große Wohnbereich mit offener Küche auf. Kochen, essen, leben - hier trifft man sich und verbringt gemeinsame Stunden. Die vollflächige obere Etage bietet mit fünf Zimmern und großem Familien-Duschbad maximalen Freiraum und individuelle Rückzugsmöglichkeiten. Besonderes Extra: Die schicke Einliegerwohnung im Erdgeschoss offeriert vielfältige Nutzung: Zusätzliches Einkommen durch Vermietung, Platz für ein Au-pair oder Eltern, die im Alter gerne am Familienleben teilhaben und bei der Kinderbetreuung helfen. Gemeinsam macht stark.
Lage
Dieses Grundstück befindet sich in Kottweiler-Schwanden. Fußläufig erreichbar gibt es eine Bibliothek. Weiter entfernt gibt es zudem mehrere Einkaufsmöglichkeiten, Schulen und Kindergärten.
Ausstattung
Gemeinsam lassen wir Ihren Traum wahr werden: mit einem Zuhause, das keine Wünsche offen lässt, einen hohen Wohnkomfort und Werterhalt garantiert.
+ Architektenleistung:
Gemeinsam mit unseren hochqualifizierten Architekten planen Sie als künftige Eigenheimbesitzer ihr neues Zuhause Stück für Stück.
+ Bodengutachten:
Absolute Sicherheit über die Bodenbeschaffenheit Ihres Grundstücks gibt Ihnen das im Festpreis enthaltene Bodengutachten.
+ Bodenplatte:
Massiver Stahlbeton bildet das stabile Fundament für Ihr neues Heim. Optional auch mit Nutz- oder Wohnkeller!
+ 2,80 m Raumhöhe:
Mehr Raum zum Leben! Wir bieten Ihnen eine Raumhöhe der ganz besonderen Art.
+ Geschäumte Aluminiumrollläden
Geschäumte Aluminiumrollläden im ganzen Haus.
+ Zertifizierte Nachhaltigkeit:
Alle malervorbereiteten und einzugsfertigen OKAL Häuser erhalten serienmäßig das Nachhaltigkeitszertifikat der DGNB in Gold/Platin
+ Frischluftwärmetechnik:
Heizen war gestern! Die Zukunft heißt OKAL Frischluft Wärmetechnik. Sparsam, ökologisch und obendrein ein gesundes Raumklima durch geregelte Frischluftzufuhr
+ Sockeldämmung:
Dämmung an der Außenseite zur Vermeidung Wärmebrücken an erdberührten Bauteilen
+ Ausbaustufe technikfertig
In der Ausbaustufe "technikfertig" übernehmen wir die komplette Installation der Technik für Sie. Das umfasst die Heizungsanlage, die komplette Elektroinstallation mit Zähleranlage sowie alle Sanitär- und Rohinstallationen. Den finalen Ausbau erbringen Sie dann in Eigenleistung. Hierzu gehören beispielsweise Fliesen an Wänden und Böden, Innentüren inklusive Türzargen, Innenfensterbänke, alle sanitären Anlagen, Malerarbeiten sowie Fußbodenverlegung.
Sonstige Angaben
Wir verwirklichen Wohnträume der Premiumklasse - und dabei begleiten wir Sie nicht nur bei der Wahl der für Sie perfekten Immobilie, sondern übernehmen gerne auf Wunsch den kompletten Innenausbau, bis hin zur Endreinigung.
+ 95 Jahre Erfahrung
+ IHK zertifizierte Verkäufer
+ Architektenleistung zur Bauantragserstellung inklusive
+ Alles in einem Vertrag (mit Keller / Bodenplatte)
+ DGNB Zertifizierung/Nachhaltigkeit
+ 22 Monate Festpreisgarantie
+ 33 Jahre Gewerkgarantie
+ Architektonische Highlights z.B. Bauhaus Elemente
+ Bau-WC und Entsorgungscontainer inklusive
+ Exklusives Bemusterungszentrum nur für OKAL
+ Endreinigung inklusive in der Ausbaustufe Einzugsfertig
OKAL steht aber nicht nur für Rundumversorgung und Transparenz - vom Erstgespräch bis zum Einzug - sondern auch für Häuser der Premiumklasse: Jede einzelne Immobilie zeichnet sich durch eine geradlinige, zeitgemäße und durchdachte Architektur, durch hohen Wohnkomfort und durch viele Ausstattungsdetails aus.
In jedem unserer Häuser steckt die Erfahrung aus 95 Jahren Pionierarbeit. In vielen Bereichen waren und sind wir Vorreiter, stets visionär und innovativ. Doch bei allem, was wir tun, steht eins immer an oberster Stelle: der Wunsch des Kunden.
-------
Angebot freibleibend, Zwischenverkauf vorbehalten!
Der Angebotspreis inkl. Grundstück zzgl. der üblichen Baunebenkosten / Erdarbeiten / Erschließung.
Kein Energieausweis erforderlich, da es sich um ein projektiertes Angebot handelt.
Die Hausansichten dienen lediglich zur Veranschaulichung und zeigen möglicherweise aufpreispflichtige Sonderausstattungen.
Häuser Kottweiler-Schwanden
Weiterhin können Sie Inserate auf der Seite Kottweiler-Schwanden finden. Rheinland-Pfalz ist hier die Oberkategorie dieses Immobilienexposé's.
Die Angeben des Anbieters lauten OKAL Ansprechpartner Nathan Lezius, in.
Synonyme zur Suche Kottweiler-Schwanden Häuser:
Kottweiler-Schwanden Häuser online, Haus mieten und kaufen Kottweiler-Schwanden, günstige Häuser Kottweiler-Schwanden




