*** Einfamilienhaus der Extraklasse für die ganze Familie *** schlüsselfertig ***
Exposé: *** Einfamilienhaus der Extraklasse für die ganze Familie *** schlüsselfertig ***
PLZ /Ort:
Kaufpreis
Wohnfläche
Zimmer
Grundstücksfläche
Flächen
Wohnfläche:
166,00 m²
Grundstücksfläche:
520,00 m²
Preise
Kaufpreis:
253.000,00 €
Sonstiges
Ihre Objektnr.:
G0420182
Objekttyp:
Einfamilienhaus
Heizungsart:
Fussboden
Boden:
Fliesen
Bad:
Fenster
Zimmer:
5
Schlafzimmer:
3
Badezimmer:
1
Seperate WC:
1
Baujahr:
2018
Energiepass
Ausstattung
Rolladen
Objektbeschreibung
Heinz - von - Heiden Massivhaus
Dipl.-Ing. Th. Bayer
Region Süd
Landkreis Tuttlingen / VS / RW / Singen / KN
Heinz von Heiden steht heute für eines der erfolgreichsten Unternehmen Deutschlands, das sich auf den Bau von massiven Einfamilien-, Doppel- und Reihenhäusern spezialisiert hat. Unser Erfolg: In 85 Jahren haben wir über 46.000 Häuser in Deutschland und der Schweiz gebaut.
Heinz von Heiden sorgt für individuelle Lösungen ganz nach dem Geschmack eines jeden Bauherren. Denn richtig genießen lässt es sich nur in einem Eigenheim, das zu einem passt und das auf ganzer Linie gefällt.
Bauen auch Sie, mit eines der führenden und bonitätsstarken Unternehmen!
HEINZ von HEIDEN, Das ist DEIN Haus.
Lage
Das Grundstück befindet sich Gunningen.
Ausstattung
Einfamilienhaus mit Satteldach - 5 Zimmer
(Auf Wunsch als KFW 55, 40 oder 40+)
- Massive und sichere Bauweise
- Architektenleistung und Statik inklusive
- Bodenplatte (gerne auch mit Keller möglich)
- Eine Vielzahl an weiteren Ausstattungsvariationen und Möglichkeiten
- 5-Sterne Bauherren-Schutzbrief Plus
- … und vieles mehr
- Herausragende Material- und Ausführungsqualität
- Über 85 Jahre Erfahrung im Massivbau
- Mehr als 46.000 gebaute Häuser
- Alle Leistungen aus einer Hand
- Preis- und Bauzeitgarantie
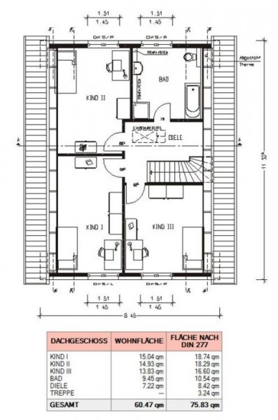
Grundrisse nach Wunsch und Maß
Der angegebene Preis beinhaltet das Haus inklusive Grundstück zzgl. der Erwerbs- u. Baunebenkosten.
Der Bauplatz ist nicht in unserem Eigentum und wird separat über einen Dritten erworben. Unser Angebot ist freibleibend. Der Anbieter des Grundstücks behält sich vor, das Grundstück zwischenzeitlich anderweitig zu reservieren oder zu verkaufen.
Sonstige Angaben
Bei Heinz von Heiden sind Sie mit Ihrem Wunsch richtig.
Wir planen, unterstützen und begleiten Sie zum eigenen Haus, ganz nach Ihren Bedürfnissen. Gemeinsam behalten wir die Kosten im Auge und betreuen Sie sowohl vor als auch während der Bauphase.
Die Abbildungen zeigen Ausstattungsvarianten anhand von Beispielen. Die zahlreichen projektierten Wohnlösungen bilden für viele Bauherren einen ersten Orientierungspunkt und die Grundlage für die optimale Gestaltung, basierend auf Wünsche und Bedürfnisse der Bauherren.
Gern realisieren wir auch Ihr individuelles Haus.
Die damit verbundenen finanziellen Vorteile und alle weiteren Fragen zum Grundstück und Haus erklären wir Ihnen gern bei einem ersten unverbindlichen Gespräch.
Natürlich bauen wir auch auf ein von Ihnen vorhandenes Grundstück.
Egal ob ein Ein-/Zweifamilienhaus, Doppel-/Reihenhaus, Bungalow oder eine Stadtvilla, bei uns erhalten Sie das passende Haus in einer Top-Qualität zum fairen Preis.
K __O__N__T__A__K__T__D__A__T__E__N
B_E_R_A_T_U_N_G_S__-/___U_N_D___V_E_R_K_A_U_F_S_B_Ü_R_O
Herr Thomas Bayer
F 07424-8676711
M 015228982336
78594 Gunningen / LKR Tuttlingen
Mail: thomas.bayer@massiv-bau.de
Häuser Gunningen
HomeBooster hat diese Immobilie unter Gunningen gespeichert. Unter Baden-Württemberg sind weitere relevante Immobilien vorhanden.
Die Angeben des Anbieters lauten MAISTER Immobilien GmbH Ansprechpartner , Jägerstraße 9 in 92729 Weiherhammer.
Synonyme zur Suche Gunningen Häuser:
Gunningen Häuser online, Haus mieten und kaufen Gunningen, günstige Häuser Gunningen







