Eine ganze Etage nur für Sie! DG-Wohnung, 4 Zimmer, Gäste-WC, Balkon, vermietet!
Exposé: Eine ganze Etage nur für Sie! DG-Wohnung, 4 Zimmer, Gäste-WC, Balkon, vermietet!
Strasse:
PLZ /Ort:
Kaufpreis
Wohnfläche
Zimmer
Flächen
Wohnfläche:
97,33 m²
Preise
Kaufpreis:
97.300,00 €
Hausgeld:
456,00 €
Vermittl.-Provision:
3,57 %, mind 2.975 EUR, jew. inkl. MwSt
Sonstiges
Ihre Objektnr.:
LA36-04
Objekttyp:
Etage
Heizungsart:
Zentralheizung
Befeuerung:
Gas
Boden:
Fliesen
Bad:
Wanne
Küche:
EBK
Zimmer:
4
Schlafzimmer:
3
Badezimmer:
1
Baujahr:
1905
vermietet:
1
denkmalgeschuetzt:
1
Energiepass
Art:
Verbrauch
Gültig bis:
2028-09-13
E-Verbrauchskennw.:
116.00
EP inkl. Warmwasser:
ja
Wertklasse:
D
Baujahr:
1999
Jahrgang:
2014
Gebäudeart:
wohn
Ausstattung
Objektbeschreibung
Das viergeschossige Mittelhaus einer Dreiergruppe von Mehrfamilienhäusern wurde 1905 errichtet. Der voll unterkellerte Ziegelmassivbau steht als "zeittypischer, schlichter Putzbau" (Landesamt für Denkmalpflege Sachsen) unter Denkmalschutz.
Im Jahr 1999 erfolgte die Teilung des Hauses in Sondereigentum. Daran schloss sich eine Kernsanierung des gesamten Objektes an.
Das Haus besitzt insgesamt 5 Wohnungen, jeweils eine auf jeder Etage, mit einer Gesamtwohnfläche von ca. 450 m².
Es wird durch eine im Keller befindliche Gas-Zentralheizung mit zentraler Warmwasserbereitung beheizt.
Zum Haus gehört das Grundstück FlSt.-N. 1696i mit einer Fläche von 280 m² lt. GBA. Der nicht bebaute Teil des Grundstückes hinter dem Haus ist befestigt bzw. begrünt.
Lage
Die ca. 90.000 Einwohner zählende und 900-jährige Stadt Zwickau liegt am Nordrand des Erzgebirges. Sie ist die viertgrößte Stadt im Freistaat Sachsen und hat als Oberzentrum einen Einzugsbereich von ca. 480.000 Menschen.
Zwischen den Autobahnen A 4 und A 72 sowie der Schnellstraße B 93 gelegen, ist Zwickau optimal in das Fernstraßennetz integriert und aus allen Richtungen gut erreichbar.
Die Stadt ist vom Automobilbau geprägt. Die Firmen Audi und Horch wurden hier gegründet. Der VEB Sachsenring produzierte 3 Mio. Trabant-PKW. Seit 1990 ist VW mit der Stadt verbunden. In Zwickau fertigt der Konzern ausschließlich Elektro-Fahrzeuge.
Die von einem Grüngürtel umschlossene Innenstadt beherbergt herausragende Bauwerke. In der aufwendig sanierten Altstadt rund um den Dom St. Marien finden Sie zahlreiche Restaurants, Cafés und Geschäfte.
Vielfältige kulturelle Einrichtungen und Veranstaltungen sowie ein breites Spektrum an Ausflugszielen bieten den Bürgern und Gästen umfangreiche Möglichkeiten zur Freizeitgestaltung.
Das Mehrfamilienhaus liegt in der Zwickauer Nordvorstadt. Es befindet sich 2 km vom Zentrum Zwickaus, 1,5 km von der Zentralhaltestelle und 2,5 km vom Hauptbahnhof entfernt. Die Straßenbahn verbindet diese Punkte in einer schnellen Taktung. Zur Haltestelle gelangt man zu Fuß von der Wohnung aus in ca. 4 Minuten.
Die Umgebungsbebauung besteht vorwiegend aus Mehrfamilienhäusern in geschlossener Bauweise, deren Erdgeschossbereiche teilweise geschäftlich genutzt werden. Es handelt sich um eine gute und beliebte Wohnlage.
Einkaufsmöglichkeiten sind ausreichend und in fußläufig erreichbarer Entfernung vorhanden. Zwei Kitas und eine Grundschule sind jeweils ca. 1000 m entfernt, eine Oberschule ca. 400 m. Das Käthe-Kollwitz-Gymnasium ist ca. 300 m entfernt. Im Stadtgebiet befinden sich noch zahlreiche weitere Schulen unterschiedlicher Träger mit verschiedenen Spezialprofilen.
Für die Naherholung sorgen der Schwanenteich mit Bootsvermietung, einige Sportplätze und zahlreiche Grünanlagen. Diverse Kultureinrichtungen wie Museen, Galerien, Theater und Kino ergänzen das Angebot. Derr Ernst-Schneller-Park ist nur wenige Meter entfernt, das August Horch-Museum ca. 600 m. Bis zum Konzert- und Ballhaus "Neue Welt" läuft man eine Viertelstunde.
Ausstattung
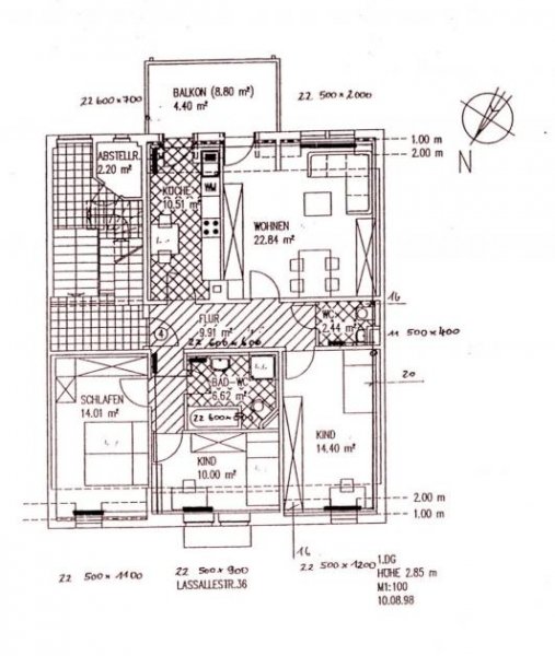
Die lt. Planung ca. 97,33 m² große 4-Raum-Wohnung liegt im Dachgeschoss (DG1 auf Höhe OG3). Sie umfasst:
- Wohnzimmer 22,84 m²,
- Schlafzimmer 14,01 m²,
- Kinderzimmer 1: 14,40 m²,
- Kinderzimmer 2: 10,00 m²,
- Küche 10,51 m²,
- Bad 6,62 m²,
- Gäste-WC 2,44 m²,
- Flur 9,91 m²,
- Abstellraum 1,54 m²,
- Balkon 4,40 m²
(brutto 8,80 m², geht zu 50 % in die Wohnfläche ein).
Alle Angaben sind Planungswerte und als ca.-Angaben zu betrachten.
Alle Räume gehen vom zentral liegenden Flur direkt ab. Auf den Balkon mit Blick auf den Garten hinter dem Haus gelangt man sowohl vom Wohnzimmer als auch von der Küche aus. Der Abstellraum befindet sich im Treppenhaus auf "halber Treppe".
Die Wohnung befindet sich in einem altersbedingt abgewohnten Zustand. Bei einer Neuvermietung ist eine Renovierung erforderlich (Maler- und Fußbodenarbeiten).
Mit Ausnahme von Flur, Bad und Gäste-WC erhalten alle Räume direktes Tageslicht. Glaseinsätze in den Zimmertüren lassen das natürliche Licht auch in den Flur. Das Bad ist mit Wanne, Dusche, WC und Waschtisch ausgestattet. Darüber hinaus steht ein separates Gäste-WC zur Verfügung.
Zur Wohnung gehört der Mieterkeller Nr. 4.
Sonstige Angaben
Die Wohnung ist vermietet. Der aktuelle Mietvertrag läuft seit 2004. Die Kaltmiete beträgt 497 EUR und die Nebenkostenvorauszahlung 362 EUR, die Gesamtmiete somit 859 EUR.
Der Erwerber wird Mitglied einer Wohneigentümergemeinschaft WEG mit einem Miteigentumsanteil von 217,143/1.000. Es ist lt. Wirtschaftsplan 2025 durch den Erwerber ein monatliches Hausgeld in Höhe von 456 EUR zu zahlen. Davon sind bei Vermietung ca. 2/3 als Betriebskosten umlegbar.
Der Energieausweis ist dem Exposé als pdf-Dokument beigefügt.
Bitte nutzen Sie das Kontaktformular, um uns Ihre Fragen bzw. Ihren Besichtigungswunsch mitzuteilen. Wir nehmen schnellstmöglich den Kontakt zu Ihnen auf bzw. senden Ihnen gern ergänzende Unterlagen entsprechend Ihrer Anfrage zu.
Alle Angaben beruhen auf Aussagen der Eigentümer bzw. basieren auf den uns bis dato vorliegenden Unterlagen und erfolgen ohne Gewähr. Irrtum und zwischenzeitlicher Verkauf bleiben vorbehalten. Exposé © 2025, Immobilienbüro Kühn
Wohnungen Zwickau
HomeBooster hat dieses Objekt zum mieten und kaufen unter Zwickau eingetragen. Weitere Objekte sind unter Sachsen auffindbar.
Die Daten zu diesem Anbieter lauten: Immobilienbüro Kühn GmbH & Co. KG Ansprechpartner Wolfgang Kühn, Jahnstraße 17 in 08058 Zwickau.
Synonyme zur Suche Zwickau Wohnungen:
Zwickau günstige Wohnung, Wohnungsanzeigen Zwickau










