Eigentumswohnung in schöner Villa.
Exposé: Eigentumswohnung in schöner Villa.
PLZ /Ort:
Kaufpreis
Wohnfläche
Zimmer
Flächen
Wohnfläche:
140,00 m²
Nutzfläche:
85,00 m²
Preise
Kaufpreis:
295.000,00 €
Hausgeld:
395,00 €
Vermittl.-Provision:
Bei Abschluss eines Kaufvertrages wird eine Vermittlungs-/ Nachweisprovision in Höhe von 5,8 % inklusive 19 % Mehrwertsteuer au
Sonstiges
Ihre Objektnr.:
005a
Zimmer:
3
Schlafzimmer:
1
Badezimmer:
2
Balkon/Terrassen (Anz.):
1
Energiepass
Ausstattung
Objektbeschreibung
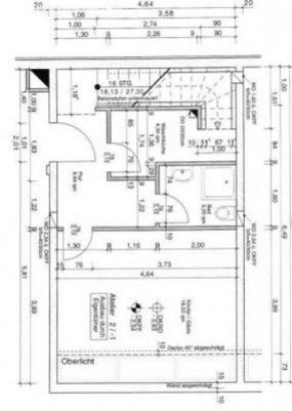
Moderne Atelierwohnung über drei Etagen mit ruhiger Innenhofterrasse. 140 qm Wohnfläche erstrecken sich auf drei Ebenen. Dier Deckenhöhe beträgt im Souterrain ca. 2,65 Meter, im Erdgeschoss ca. 3,15 und im OG ca. 3,00 Meter. Die Wohnung besticht durch die Helligkeit, die durch die großen Fensterfronten gewährleistet ist. Im Erdgeschoss befindet sich die sehr große Wohnküche ( ca. 35 qm ) mit hochwertiger Einbauküche und amerikanischem Kühlschrank. Der Boden ist in terracotta fefliest. Im Souterrainbereich finden wir ein Zimmer ( ca. 18 qm) ein Bad mit Dusche und einen Hauswirtschaftsraum. Von hier gelangen Sie auch zur Tiefgarage. Über eine moderne Stahltreppe mit Buchenstufen gelangen Sie ins Obergeschoss. Hier ist ein großes Wohnzimmer, ein Bad mit Badewanne und ein Schlafzimmer mit Einbauschrank untergebracht.
Lage
Im beliebten Szene-Viertel St. Pauli und nur wenige Fußminuten bis zum Schanzenviertel, befindet sich dieses Architektenhaus. Die Eigentümergemeinschaft besteht aus 21 Einheiten, wobei es sich um 5 Wohnungen, eine Gewerbeeinheit ( Raumausstatter ) und 15 Büros handelt. Der schöne Innenhof wird meist nur von drei Wohnungen genutzt, obwohl es sich um gemeinschaftliches Eigentum handelt. Hier können Sie die Ruhe genießen. Zur Wohnung gehört auch ein Kellerraum und ein Tiefgaragenplatz. Das Wohngeld beträgt 300 Euro warm, plus Wasser und Strom. Frei nach Absprache.
Wohnungen Mettlach
Unter Mettlach findet man weitere relevante Immobilien zur Miete und zum Kauf. Saarland ist die geografische Zuordnung dieses Objektes zum mieten und kaufen.
Die Daten zu diesem Anbieter lauten: Ansprechpartner , strasse in plz ort.
Synonyme zur Suche Mettlach Wohnungen:
Mettlach günstige Wohnung, Wohnungsanzeigen Mettlach









