Doppelhaushälfte in Kisdorf Neubau 2014 Niedrigenergiehaus
Exposé: Doppelhaushälfte in Kisdorf Neubau 2014 Niedrigenergiehaus
PLZ /Ort:
Kaufpreis
Wohnfläche
Zimmer
Grundstücksfläche
Flächen
Wohnfläche:
154,00 m²
Gesamtfläche:
154,00 m²
Grundstücksfläche:
265,00 m²
Preise
Kaufpreis:
335.000,00 €
Vermittl.-Provision:
2,80%
Sonstiges
Ihre Objektnr.:
2014-3
Objekttyp:
Doppelhaushaelfte
Heizungsart:
Fussboden
Befeuerung:
Solar
Boden:
Fliesen
Zustand:
Erstbezug
Alter:
2
Erschliessung:
3
Bad:
Wanne
Zimmer:
5
Schlafzimmer:
4
Badezimmer:
1
Seperate WC:
1
Baujahr:
2014
Energiepass
Ausstattung
Räume veränderbar
Gartennutzung
Kabel/Sat/TV
Objektbeschreibung
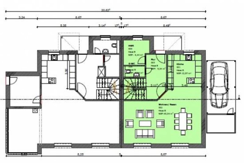
Neubau eines Zweifamilienhauses in Kisdorf \r\nHaustyp: Doppelhaushälfte \r\nKaufpreis: 335.000 € \r\nBaujahr: 2014 \r\nZustand Objekt: Neubau / Niedrigenergiehaus \r\nGrundstücksfläche: ca. 265m² \r\nWohnfläche: ca. 154m² \r\nStellplatz: ja \r\nCarport/Garage: nein \r\nHeizungsart: Zentralheizung/Gasbrennwertkessel/Solar \r\n\r\nObjektbeschreibung: \r\nDas zum Verkauf stehende Zweifamilienhaus wird in Massive Bauweise erstellt. \r\nDiese geplante Doppelhaushälfte mit seiner Gesamtwohnfläche von ca. 154,00 m², kann in Mitte 2014 bezogen werden, daher können Ihre Aufteilungswünsche noch berücksichtigt werden. \r\nDer großzügige Wohnraum lädt zu gemütlichen Abenden mit Freunden ein. Die Zimmer sind gut dimensioniert und lassen sich vorteilhaft möblieren. Über eine weitere Treppe erreichen Sie den Spitzboden, wo Ihnen ein weiteres Zimmer zur Verfügung steht kann.Das Haus besitzt eine hochwertige Ausstattung und sorgt die Fußbodenheizung für eine angenehme, wohltuende Atmosphäre. \r\nZu dem Haus gehört ein Stellplatz neben dem Haus. \r\n
Lage
Lage: \r\nKisdorf ist eine Gemeinde im südlichen Teil des Kreises Segeberg in Schleswig-Holstein. \r\nDie Gemeinde Kisdorf ist ein beliebter Wohnort im südlichen Teil des Kreises Segeberg in Schleswig-Holstein. Der Ort gehört zur Metropolregion Hamburg. Das Haus ist umgeben von Wiesen und Wäldern. Viele ausgedehnte Reitwege, sowie Wander - und Fahrradwege bieten die Möglichkeit zu vielfältigen sportlichen Aktivitäten. \r\nDie Gemeinde Kisdorf verfügt über eine gute Infrastruktur. Eine Grund-und Gemeinschafts-schule sowie ein beliebter Kindergarten befinden sich am Ort. \r\nBesonders bei Berufspendlern nach Hamburg mit einer Fahrzeit von ca.25 Minuten über die A 7 zum Zentrum und zum Flughafen erfreut sich Kisdorf großer Beliebtheit.Das Freizeitangebot reicht von diversen Sportvereinen und einem intakten Gemeindeleben bis hin zum nahegelegenen Golfclub mit sehr schönen Reitanlagen. \r\n\r\nKäuferprovision: 2,90% inkl. Mwst. \r\nbezugsfertig ab: Fertigstellung
Ausstattung
Haustyp: Doppelhaushälfte \r\nKaufpreis: 335.000 € \r\nBaujahr: 2014 \r\nZustand Objekt: Neubau / Niedrigenergiehaus \r\nGrundstücksfläche: ca. 265m² \r\nWohnfläche: ca. 154m² \r\nStellplatz: ja \r\nCarport/Garage: gegen Aufpreis\r\nHeizungsart: Zentralheizung/Gasbrennwertkessel mir Solar \r\n
Sonstige Angaben
MasterBau GmbH \r\nBürgerweide 71 \r\n20535 Hamburg \r\nTel: 040-386 30 934 \r\ne-mail: info@masterbau.de \r\nAlle Angebote sind freibleibend und unverbindlich. Alle Daten beruhen auf Angaben des Eigentümers/Vermieters. hierfür übernehmen wir keinerlei Haftung. Wir behalten uns ausdrücklich vor, Teile der Seiten oder das gesamte Angebot ohne gesonderte Ankündigung zu ändern, zu ergänzen, zu löschen oder die Veröffentlichung temporär oder endgültig einzustellen. \r\n\r\nSonstiges: \r\nBei einer Kontaktaufnahme per Email bitte geben Sie Ihre Name,Telefonummer und Adresse an.\r\nKäuferprovision: 2,80% inkl. Mwst. \r\nbezugsfertig ab: Fertigstellung
Häuser Kisdorf
Weiterhin können Sie Inserate auf der Seite Kisdorf finden. Das Bundesland dieses Onlineinserats ist Schleswig-Holstein.
Die Angeben des Anbieters lauten Ansprechpartner , in.
Synonyme zur Suche Kisdorf Häuser:
Kisdorf Häuser online, Haus mieten und kaufen Kisdorf, günstige Häuser Kisdorf






