Dachwohnung im gemütlichen Altbau
Exposé: Dachwohnung im gemütlichen Altbau
PLZ /Ort:
Kaltmiete
Wohnfläche
Zimmer
Flächen
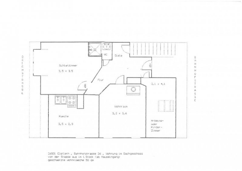
Wohnfläche:
50,00 m²
Dachbodenfläche:
15,00 m²
Preise
Kaltmiete:
245,00 €
Nebenkosten:
40,00 €
Sonstiges
Personen (max.):
3
Zimmer:
3
Baujahr:
1862
Energiepass
E-Verbrauchskennw.:
2018
Ausstattung
Gartennutzung
Objektbeschreibung
Wohnung liegt im Dachgeschoss einer Doppelhaushälfte.
Lage
Am Deich gelegen. Das Stadtzentrum und der Bahnhof sind fußläufig sehr schnell erreichbar.
Ausstattung
Die Etagenheizung ist mit einem Brennwertkessel und eigenem Gaszähler ausgerüstet. So können Sie direkt mit dem Energieversorger abrechnen und Wunschtarife vereinbaren. Darüber hinaus können Sie sich Ihren Energieversorger nach eigenem Ermessen aussuchen !
Sonstige Angaben
ACHTUNG WICHTIG ! Die Wohnung ist nur für fitte, schlanke Mietinteressenten geeignet, die auch einen guten Gleichgewichtssinn haben sollten, also trittsicher und schwindelfrei sind. Möglichst keine Tiere (insbesondere Hunde).
Wohnungen Elsfleth
Die Verlinkung dieses Exposé's ist unter Elsfleth inseriert. Die Immobiliensuche startet meistens bei Mietobjekten und Kaufimmobilien unter Niedersachsen.
Die Daten zu diesem Anbieter lauten: Ansprechpartner Andreas Fehn, in.
Synonyme zur Suche Elsfleth Wohnungen:
Elsfleth günstige Wohnung, Wohnungsanzeigen Elsfleth


