Büro in bester Zentrumslage zu vermieten
Exposé: Büro in bester Zentrumslage zu vermieten
Strasse:
PLZ /Ort:
Kaltmiete
Gesamtfläche
Flächen
Nutzfläche:
67,00 m²
Preise
Kaltmiete:
1.100,00 €
Sonstiges
Ihre Objektnr.:
2015
Objekttyp:
Bueroflaeche
Zimmer:
4
Seperate WC:
1
Energiepass
Ausstattung
Objektbeschreibung
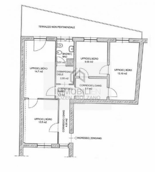
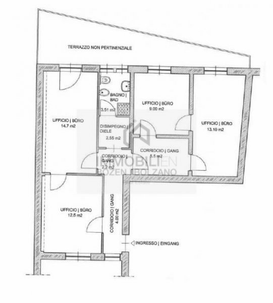
Das zu vermietende Büro befindet sich direkt in der Altstadt von Bozen, nur wenige Fußminuten vom Zugbahnhof entfernt, in einem Gebäude im 1. Stock. Es erstreckt sich auf einer Ebene und hat eine Fläche von ca. 80 m².
Es besteht aus einem Eingangsbereich mit Flur, 4 Büroräumen, Bad und großer Terrasse.
Gewerbe Immobilien
Die Verlinkung dieses Exposé's ist unter inseriert. ist die geografische Zuordnung dieses Objektes zum mieten und kaufen.
Die Daten zu diesem Anbieter lauten: Immobilien Bozen Ansprechpartner Heidi Scheiflinger, in.
Synonyme zur Suche Gewerbe Immobilien:
Immobilien für Unternehmen, Gewerbeimmobilien mieten, Industrie Immobilien









