Büro & flex. Gewerbeflächen z.B. für Praxis, Kanzlei, Ausstellung, Lager, Physio - Langenzenn
Exposé: Büro & flex. Gewerbeflächen z.B. für Praxis, Kanzlei, Ausstellung, Lager, Physio - Langenzenn
Strasse:
PLZ /Ort:
Kaltmiete
Gesamtfläche
Gesamtfläche
Flächen
Nutzfläche:
650,00 m²
Gesamtfläche:
650,00 m²
Preise
Kaltmiete:
8,00 €
Sonstiges
Ihre Objektnr.:
73aOex
Energiepass
Ausstattung
Räume veränderbar
barrierefrei
Objektbeschreibung
Untervermietung von ca. 200 bis 650 m² ebenerdige repräsentative & individuelle Gewerbeflächen, geeignet für die verschiedensten Nutzungsmöglichkeiten wie z.B.:
- Büro & Verwaltung
- Praxis & Kanzlei
- Ausstellung- oder Produktion
- Lager & Storage
- auch Schulung & Training oder ähnliches möglich
Eine Einzelnutzung bzw. Einzelanmietung der Flächen ist bauliche wie vertraglich in den angegebenen Größen problemlos möglich.
Die Hallen sind auch geeignet für z.B. Produkt Promotion´s, Gruppenevents oder Vorführungen.
Sofort verfügbare Flächen z.B.:
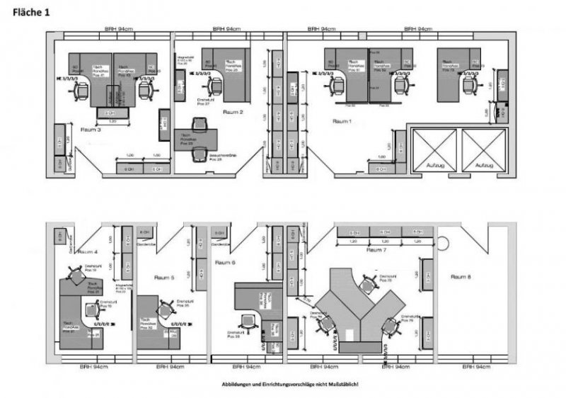
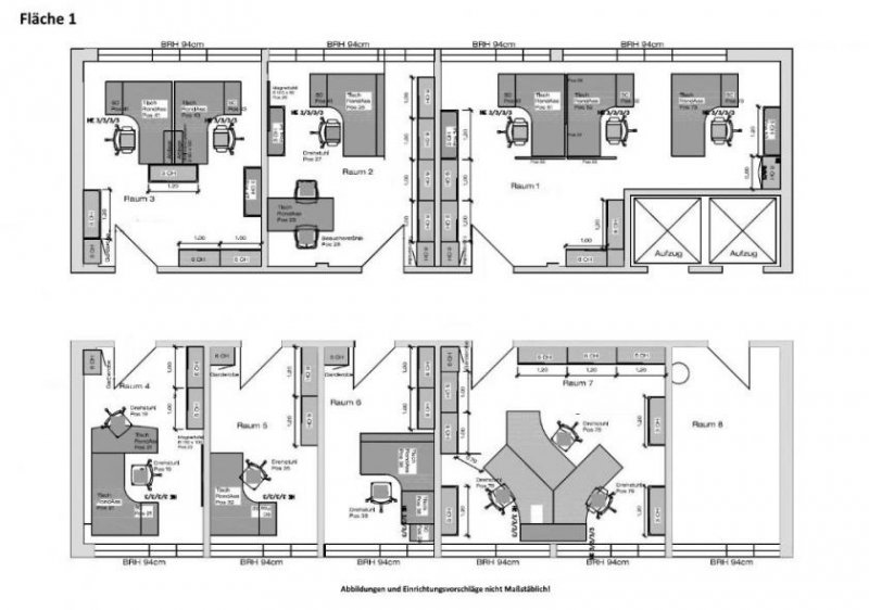
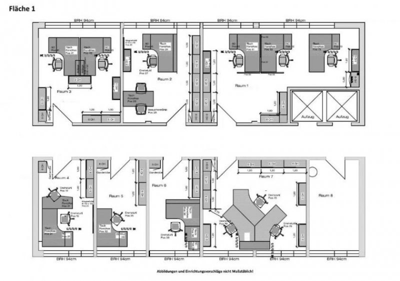
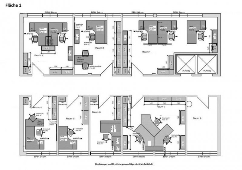
Fläche 1 – ca. 220 m² (Büro-/Verwaltungs-Bereich)
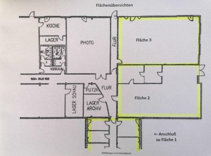
Fläche 2 – ca. 270 m² (Büro-Trainings-/Ausstellungs-Bereich)
Fläche 3 – ca. 200 m² (Ausstellungs-/Produktions-Bereich)
Lage
Sehr zentrale Lage direkt an der Ausfahrt der B8 (N/Fü/NEA) in einem
repräsentativ gepflegtem Businesspark ähnlichem Areal.
Direkt am Eingang zum neuen Gewerbegebiet Langenzenn Süd/Mühlsteig.
Ausstattung
Untervermietung von repräsentativen, funktional & anpassbaren Gewerbe- und Produktionsflächen
* große Tageslichtfronten
* parkähnliche Außenanlagen
* ruhige Lage
* separate Zugangsmöglichkeiten
* ebenerdig/barrierefrei
Sofort verfügbare Flächen:
Fläche 1 – ca. 220 m² (Office-Bereich)
Fläche 2 – ca. 270 m² (Office-/Ausstellungs-Bereich)
Fläche 3 – ca. 200 m² (Office-/Ausstellungs-/Produktion-Bereich)
Eine Anmietung im möblierten/teilmöblierten Zustand ist nach Absprache ebenfalls möglich.
Die Räume sind variabel zu teilen.
- Parkmöglichkeiten vorhanden
- Kundenparkplätze zusätzlich möglich
Mietfläche: ca. 200 bis zu 650 m² (alle Flächen barrierefrei im Erdgeschoß)
Übergabezustand: Büro und Produktionsräume, teils mit Teppich oder Industrieboden, ggf. möbliert
Sonstige Angaben
Bezug: ab sofort/nach Vereinbarung
Impressum siehe www.riess.immo
Individuelle Besichtigungen sind nach Terminvereinbarung jederzeit kurzfristig möglich.
Nutzen Sie zur Kontaktaufnahme das Kontaktformular. Bitte beachten Sie, dass nur ein VOLLSTÄNDIG AUSGEFÜLLTES Kontaktformular mit kompletten Namen, Tel.-Nummer, E-Mail und Anschrift von uns bearbeitet werden kann. Anfragen ohne Telefonnummer können grundsätzlich nicht bearbeitet werden.
Nach Erhalt Ihrer Anfrage, werden wir uns telefonisch mit Ihnen in Verbindung setzen.
Alle Angaben sind ohne Gewähr und beruhen auf Angaben des Eigentümers bzw. Vermieters.
Gewerbe Immobilien Langenzenn
Weitere Inserate zum mieten und kaufen finden sich unter Langenzenn. Am Anfang suchen User zuerst auf der Seite Bayern.
Weitere Immobilien zum mieten und kaufen kommen von Immobilenmakler Ansprechpartner Alexander Rieß, Schnepfenreuther Weg 2 in 90425 Nürnberg.
Synonyme zur Suche Langenzenn Gewerbe Immobilien:
Langenzenn Immobilien für Unternehmen, Gewerbeimmobilien mieten Langenzenn, Industrie Immobilien Langenzenn










