Aufwendig sanierte 3-Zi/K/D/B 111 m² Wintergarten top und ruhig Berlin Kreuzberge
Exposé: Aufwendig sanierte 3-Zi/K/D/B 111 m² Wintergarten top und ruhig Berlin Kreuzberge
PLZ /Ort:
Kaufpreis
Wohnfläche
Zimmer
Flächen
Wohnfläche:
111,00 m²
Nutzfläche:
111,00 m²
Preise
Kaufpreis:
666.000,00 €
Hausgeld:
295,00 €
Vermittl.-Provision:
7,14% inkl. 19% MWSt. vom Käufer bei Notarvertrag
Sonstiges
Ihre Objektnr.:
E209
Objekttyp:
Etage
Heizungsart:
Zentralheizung
Fahrstuhl:
Personen
Befeuerung:
Gas
Boden:
Fliesen
Bad:
Fenster
Küche:
Offene Küche
Zimmer:
3
Schlafzimmer:
2
Badezimmer:
1
Baujahr:
1900
Energiepass
Jahrgang:
ohne
Gebäudeart:
wohn
Ausstattung
Objektbeschreibung
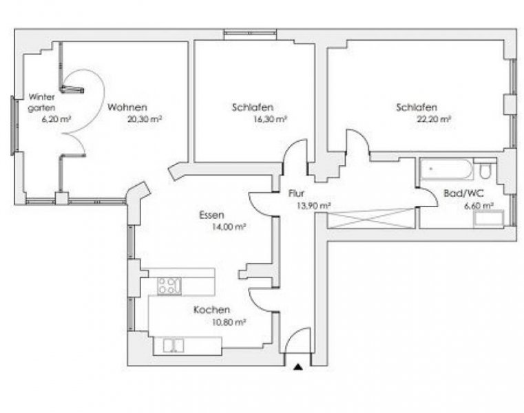
Das 2008 aufwendig und grundlegend sanierte und ansprechende Objekt befindet sich in einem sehr gepflegten Hinterhaus in unmittelbarer Nähe zum Görlitzer Park. Der großzügig und individuell gestaltete Grundriss bietet mit 3 großen Zimmern und einer 24 m² Wohnküche ausreichend Platz.und lädt zum Wohlfühlen ein.
Der ruhige, begrünte Hinterhof verspricht Idylle inmitten der Großstadt. Ein eigener Kellerraum sowie ein gemeinschaftlicher Fahrradkeller stehen Ihnen außerdem zur Verfügung.
Das Objekt verfügt über 111 qm Wohnfläche, welche sich sehr ansprechend auf einer großen Wohn-/ Essküche, einem Schlafzimmer, einem Kinderzimmer, einem Badezimmer und einem Wohnraum mit Wintergarten verteilen. Handarbeit und viel Liebe zum Detail nebst Maßanfertigungen heben die Besonderheit des Objektes hervor.
Eine genaue Aufstellung sämtlicher Sanierungs-und Renovierungsarbeiten sowohl der Wohnung als auch des Hauses, liegen im Detail vor. Zum Objekt gehört ein Kellerraum. Zusätzlich steht den Eigentümern ein gemeinschaftlicher Fahrradkeller zur Verfügung.
Lage
Sehr zentral zwischen Schlesischem Tor und Görlitzer Park. Sämtliche Einkaufsmöglichkeiten des täglichen Bedarfs liegen direkt vor der Haustür. In wenigen Spazierminuten erreicht man den Kanal und ist direkt am Wasser. Weiterhin ist der erholsame und idyllische Treptower Park innerhalb von wenigen Minuten zu erreichen. Bus und U-Bahnanbinung ist hervorragend.
Ausstattung
Eine hochwertige Einbauküche, ein maßangefertigter Wintergarten, sowie ein voll ausgestattetes Bad, sind im Kaufpreis inbegriffen.
Der traumhafte Wintergarten, die großzügige Einbauküche, Vollholz- Einbauschschränke und Lehmputzwand sind nur einige Highlights, die dem
Objekt ihren außergewöhnlichen und sehr ansprechenden Charakter verleihen.
Sonstige Angaben
Im Falle, dass dem Kaufinteressenten eine von uns nachgewiesene Gelegenheit zum Vertragsabschluss bereits bekannt war, muss er uns dies innerhalb von 48 Stunden unter Quellenangabe schriftlich bekanntgeben. Sollte diese Bekanntmachung ausbleiben, so gilt unser Nachweis des Objektes als ursächlich und löst damit automatisch eine Provisionspflicht an uns laut unseren AGB aus. Die Weitergabe der von uns erhaltenen Objektadresse(n) und /oder Daten verpflichtet zum Ersatz der uns entgangenen Provisionen. Siehe auch unsere AGB unter
https://www.blumberg-immobilien.de/de/impressum_0__8_sp8_1.html#agb
Sehr gerne stehen wir Ihnen für weitere Informationen zur Verfügung!
Alle Angaben sind freibleibend, unverbindlich, ohne Gewähr und basieren ausschließlich auf Informationen, die uns vom Eigentümer / Vertreter des Eigentümers mitgeteilt wurden.
Es wird keine Gewähr für Vollständigkeit, Richtigkeit und Aktualität übernommen. Zwischennachweis- / Vermittlung bleibt vorbehalten. Die Weitergabe dieses Exposees an Dritte löst Schadensersatzansprüche unsererseits in Höhe der uns entgangenen Provision aus.
Die illustrierten Grundrisse dienen lediglich der Orientierung und erheben keinen Anspruch auf Richtigkeit und Vollständigkeit. Möbel und Einrichtungsgegenstände sind nur im Kaufpreis enthalten, wenn dies ausdrücklich in unseren Exposees ausgewiesen ist. Bilder sind nur Illustrationen und spiegeln nicht unbedingt die eigentliche Immobilie wider.
Wohnungen Berlin
Weitere Inserate zum mieten und kaufen finden sich unter Berlin. Berlin ist die geografische Zuordnung dieses Objektes zum mieten und kaufen.
Die Daten zu diesem Anbieter lauten: Blumberg Immobilien UG (haftungsbeschränkt) Ansprechpartner Bernie Blumberg, Leopoldstr. 244 in 80807 München.
Synonyme zur Suche Berlin Wohnungen:
Berlin günstige Wohnung, Wohnungsanzeigen Berlin




