Arbeitsplatz im Herzen der Stadt auf 175 m²
Exposé: Arbeitsplatz im Herzen der Stadt auf 175 m²
PLZ /Ort:
Kaltmiete
Gesamtfläche
Flächen
Wohnfläche:
173,50 m²
Preise
Kaltmiete:
1.400,00 €
Nebenkosten:
300,00 €
Vermittl.-Provision:
2 Netto -Monatsmiete(n) 2
Sonstiges
Zimmer:
8
Energiepass
Ausstattung
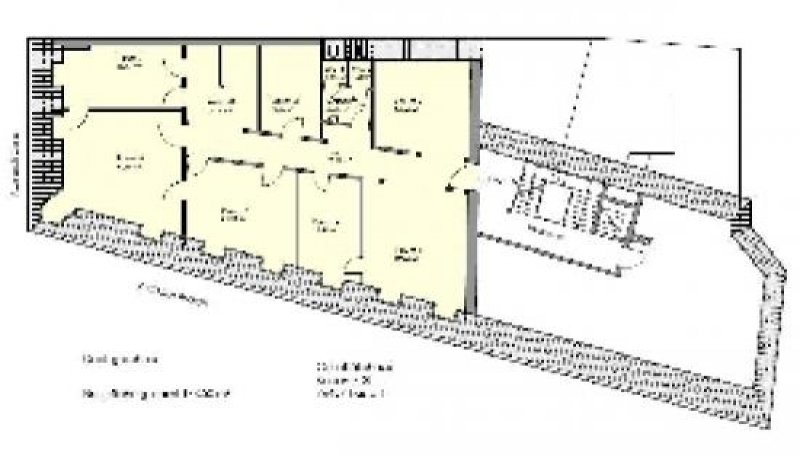
Objektbeschreibung
Das Objekt, in welchem sich die zu vermietenden Büroräume befinden wurde komplett saniert. Es handelt sich hier um 4 separat abgetrennte Räume im 3. Obergeschoss des Geschäftshauses. Die hier angebotenen Räumlichkeiten sind für eine Arzt- Rechtsanwalts- oder Therapiepraxis sehr gut geeignet. Diese sind mit zwei Toiletten und einem Vorraum ausgestattet. Im Moment befindet sich Estrich in den Zimmer, auf Wunsch wird Laminat oder Teppichboden verlegt. Raumaufteilung: Raum 1 ca. 27 m² Raum 2 ca. 17 m² WC 1 ca. 1 m² WC 2 ca. 1 m² Vorraum ca. 4 m² Raum 3 ca. 10 m² Raum 4 ca. 13,5 m² Raum 5 ca. 22 m² Raum 6 ca. 31 m² Raum 7 ca. 16.5 m² Raum 8 ca. 11 m² Flur ca. 20 m² Ich möchte Sie bitten, bei einer Anfrage, Ihre vollständige Adresse anzugeben, sonst können wir Ihnen leider nicht das gewünschte Exposé zukommen lassen, da wir Ihre Daten in unserer EDV einspeisen müssen, zwecks der Nachweisbarkeit. Versand erfolgt vorzugsweise per E-Mail. Ich versichere Ihnen, dass Ihre Daten nicht weitergegeben werden., Aufzug, Fliesen, Hausmeister, komplett renoviert, Zentralheizung, Die Nachweis- und Vermittlungsprovision beträgt für den Mieter 2 Kaltmieten zzgl. MwSt. Allgm. Geschäftsbedingungen: Unsere Angebotstätigkeit läuft auf unbestimmte Zeit und ist freibleibend. Der Empfänger behandelt alle Angebote und Mitteilungen vertraulich. Ist die nachgewiesene Gelegenheit zum Abschluss des Vertrages dem Empfänger bereits bekannt, erklärt er dieses uns innerhalb einer Frist von 5 Tagen und führt den Nachweis, woher seine Kenntnis stammt. Spätere Widersprüche brauchen wir nicht gelten zu lassen. Hinsichtlich des Objektes sind wir auf die Auskünfte der Verkäufer, Vermieter, Verpächter, Bauherren, Bauträger und Behörden angewiesen. Für die Richtigkeit und Vollständigkeit der Angaben kann keine Haftung übernommen werden. Darüber hinaus können wir für die Objekte keine Gewähr übernehmen und für die Bonität unserer Objekteigentümer nicht haften. Die kompletten AGB´s können Sie in unseren Geschäftsräumen einsehen oder unter www.melcher-immobilien.de.... Rastatt ist Große Kreisstadt mit ca. 40.000 Einwohnern. Die gesamte Infrastruktur ist sehr gut. Große Arbeitgeber z.B. Daimler Chrysler, Stierlen Marquet, Pabel-Moewig Verlag und viele mehr sorgen für die niedrigste Arbeitslosenquote in der Rastatter Region bundesweit. Dies führt auch dazu, dass Rastatt und Umgebung zu einer der besten Standorte in Deutschland zählen. Die Wohnqualität ist ausgezeichnet, nicht zu letzt durch die umliegende vielfältige, reizvolle Landschaft mit vielen Naturschönheiten wie dem Schwarzwald und angrenzenden Frankreich.... Die Nachweis- und Vermittlungsprovision beträgt für den Mieter 2 Kaltmieten zzgl. MwSt. Allgm. Geschäftsbedingungen: Unsere Angebotstätigkeit läuft auf unbestimmte Zeit und ist freibleibend. Der Empfänger behandelt alle Angebote und Mitteilungen vertraulich. Ist die nachgewiesene Gelegenheit zum Abschluss des Vertrages dem Empfänger bereits bekannt, erklärt er dieses uns innerhalb einer Frist von 5 Tagen und führt den Nachweis, woher seine Kenntnis stammt. Spätere Widersprüche brauchen wir nicht gelten zu lassen. Hinsichtlich des Objektes sind wir auf die Auskünfte der Verkäufer, Vermieter, Verpächter, Bauherren, Bauträger und Behörden angewiesen. Für die Richtigkeit und Vollständigkeit der Angaben kann keine Haftung übernommen werden. Darüber hinaus können wir für die Objekte keine Gewähr übernehmen und für die Bonität unserer Objekteigentümer nicht haften. Die kompletten AGB´s können Sie in unseren Geschäftsräumen einsehen oder unter www.melcher-immobilien.de.
Gewerbe Immobilien Rastatt
Dieses vorliegende Exposé gehört zur Listeseite Rastatt. Am Anfang suchen User zuerst auf der Seite Baden-Württemberg.
Weitere Immobilien zum mieten und kaufen kommen von Melcher Immobilien Ansprechpartner Sandy Drevs, Poststr. in 76534 Baden-Baden.
Synonyme zur Suche Rastatt Gewerbe Immobilien:
Rastatt Immobilien für Unternehmen, Gewerbeimmobilien mieten Rastatt, Industrie Immobilien Rastatt




