Appartement Ospedaletti
Exposé: Appartement Ospedaletti
Strasse:
PLZ /Ort:
Kaufpreis
Wohnfläche
Zimmer
Flächen
Wohnfläche:
170,00 m²
Preise
Kaufpreis:
750.000,00 €
Vermittl.-Provision:
3 %
Sonstiges
Ihre Objektnr.:
OSP 15
Fahrstuhl:
Personen
Zimmer:
4
Schlafzimmer:
3
Badezimmer:
2
Baujahr:
1960
Energiepass
Ausstattung
Objektbeschreibung
Meerblick: ja
Bautyp: Appartement
Terrasse: ja
Stadt: Ospedaletti
Garten: nein
Baujahr: 1960
Keller: nein
Wohnfläche: 170m2
Garage / Stellplatz: nein
Stockwerk: 3. Etage
Fahrstuhl: ja
Ausrichtung: Süd/Ost
Heizung: autonom
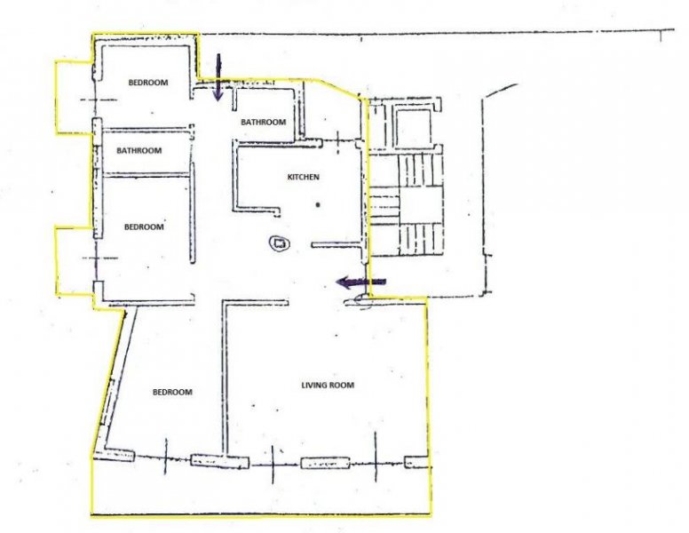
Das Appartement mit sehr schönem Meerblick teilt sich wie folgt auf:
Eingangsbereich, Doppelwohnzimmer mit Terrasse, Küche, 3 Zimmer und 2 Bäder.
Wohnungen
Die Verlinkung dieses Exposé's ist unter inseriert. Unter sind weitere relevante Immobilien vorhanden.
Die Angeben des Anbieters lauten Ansprechpartner , in.
Synonyme zur Suche Wohnungen:
günstige Wohnung, Wohnungsanzeigen










