Ab 01.03.26!!! Singlewohnung in Marienthal Nähe Heinrich-Braun Krankenhaus - ideal für Studenten oder Auszubildende
Exposé: Ab 01.03.26!!! Singlewohnung in Marienthal Nähe Heinrich-Braun Krankenhaus - ideal für Studenten oder Auszubildende
Strasse:
PLZ /Ort:
Kaltmiete
Wohnfläche
Zimmer
Flächen
Wohnfläche:
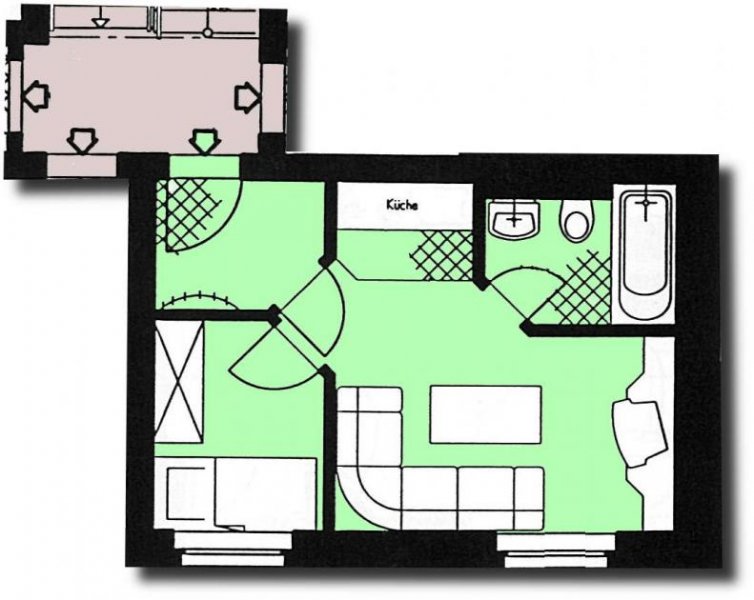
24,35 m²
Preise
Kaltmiete:
171,00 €
Warmmiete:
249,00 €
Nebenkosten:
78,00 €
Kaution:
342
Sonstiges
Ihre Objektnr.:
VP07-10
Heizungsart:
Zentralheizung
Befeuerung:
Gas
Boden:
Fliesen
Zustand:
Teil- / Vollrenovierungsbed.
Bad:
Wanne
Küche:
EBK
Zimmer:
2
Schlafzimmer:
1
Badezimmer:
1
Baujahr:
1929
Energiepass
Art:
Verbrauch
Gültig bis:
2028-09-26
E-Verbrauchskennw.:
102.00
EP inkl. Warmwasser:
ja
Wertklasse:
D
Baujahr:
1999
Jahrgang:
2014
Gebäudeart:
wohn
Ausstattung
Objektbeschreibung
Keine gemütliche Singlewohnung in Marienthal Nähe Heinrich-Braun Krankenhaus - ideal für Studenten oder Auszubildende.
Die Wohnung wird aktuell noch renoviert!!!!
Lage
Die Immobilie befindet sich im westlichen Stadtteil von Zwickau, in Marienthal, einer bevorzugten Wohngegend mit prozentual niedrigem Leerstand. Durch Bus und Straßenbahn besteht eine gute Verkehrsanbindung zum Stadtzentrum und in die Umgebung. Die Bundesautobahnen A 4 und A 72 sowie ein gut ausgebautes System von Fernstraßen stellen günstige Ost-West bzw. Nord-Süd-Verbindungen her. Das Areal Karl-Keil-Straße/Virchowplatz wurde seit 1998 umfangreich saniert.
Ausstattung
Die zur Miete angebotene Wohnung besitzt folgende Ausstattung:
- Flur mit Fliesenboden
- Raumhoch gefliestes, innen liegendes Bad mit Wanne
- Wohnraum mit Laminatboden und kleiner Küchennische
- preiswerte Singleküche zur Übernahme (80,-)
- Kleiner Schlafraum mit Laminatboden
- Mieterkellerabteil
- Waschmaschinenraum im Keller
Sonstige Angaben
Dieses Angebot entspricht noch nicht Ihren Wünschen...?
Besuchen Sie auch unsere Homepage mit vielen weiteren Wohnungsangeboten oder sprechen Sie uns persönlich an. Wir präsentieren Ihnen gern weitere Objekte.
Alle Angaben beruhen auf Aussagen Dritter und erfolgen ohne Gewähr. Exposé © Immobilienbüro Kühn
Wohnungen Zwickau
HomeBooster hat dieses Objekt zum mieten und kaufen unter Zwickau eingetragen. Weitere Objekte sind unter Sachsen auffindbar.
Die Daten zu diesem Anbieter lauten: Immobilienbüro Kühn GmbH & Co. KG Ansprechpartner Wolfgang Kühn, Jahnstraße 17 in 08058 Zwickau.
Synonyme zur Suche Zwickau Wohnungen:
Zwickau günstige Wohnung, Wohnungsanzeigen Zwickau










