4 Raum Wohnung zum Eigennutz auf dem Kaßberg
Exposé: 4 Raum Wohnung zum Eigennutz auf dem Kaßberg
PLZ /Ort:
Kaufpreis
Wohnfläche
Zimmer
Flächen
Wohnfläche:
78,00 m²
Kellerfläche:
20,00 m²
Preise
Kaufpreis:
125.000,00 €
Vermittl.-Provision:
4,76%
Sonstiges
Ihre Objektnr.:
6889
Objekttyp:
Etage
Heizungsart:
Zentralheizung
Befeuerung:
Gas
Zimmer:
4
Baujahr:
1930
vermietet:
1
denkmalgeschuetzt:
1
Energiepass
Wertklasse:
C
Baujahr:
2003
Ausstellungsdatum:
2031-02-17
Ausstattung
Gartennutzung
Objektbeschreibung
Die Wohnung befindet sich im 1.Obergeschoss einem gepflegten Mehrfamilienhaus, Sie besticht mit Ihrer zentrale Lage auf dem Kaßberg, wo sämtliche Einkaufsmöglichkeiten bequem zu Fuß erreichbar sind.
Die Wohnung ist Frei und kann selbst bezogen werden.
Als Alternative kann Sie auch für 468,00 €/mtl. oder etwas mehr vermietet werden.
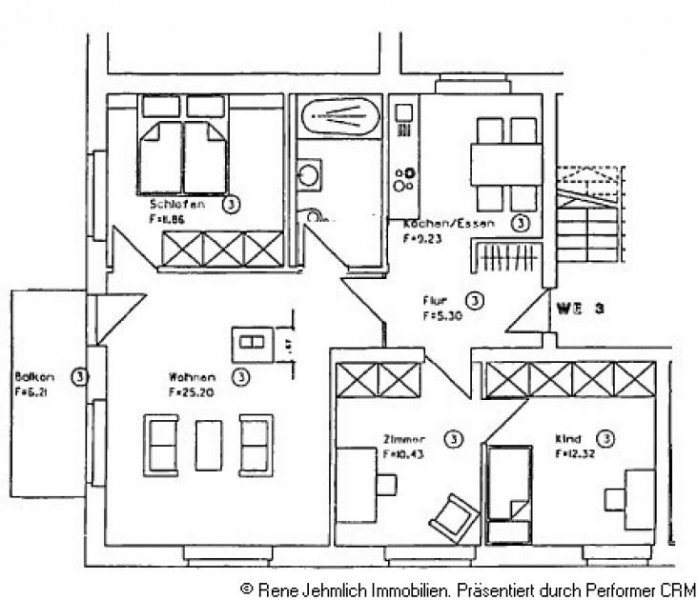
Besonders hervorzuheben ist der durchdachte und attraktive Grundriss der Wohnung.
In der gesamten Wohnung wurden Parkettböden verlegt.
Die offene Küche verfügt über ausreichend Platz für einen Essbereich.
Das Gebäude ist mit einer Zentralheizung ausgestattet und isolierverglaste Fenster sorgen für eine angenehme Temperatur sowie eine gute Energieeffizienz.
Zudem bietet die zentrale Lage auf dem Kaßberg zahlreiche Möglichkeiten zur Entspannung im Freien, wie in den nahegelegenen Parks.
Parkmöglichkeiten sind begrenzt, jedoch stehen in der Umgebung öffentliche Parkplätze zur Verfügung, und es besteht die Möglichkeit, einen privaten Stellplatz anzumieten.
Insgesamt bietet diese charmante Wohnung mit ihrer zentralen Lage, dem durchdachten Grundriss und der guten Ausstattung ein komfortables und praktisches Wohnen auf dem Kaßberg.
Lage
Am Fuße des Erzgebirges, inmitten von Sachsen, befindet sich die Stadt Chemnitz. Sie zählt zu den viertgrößten Städten in Ostdeutschland und gilt als einer der führenden Industrie- und Technologiestandorte in Deutschland. Die Stadt beherbergt etwa 242.000 Einwohner, die dort leben und arbeiten.
Die Lage der Stadt ist sowohl zentral als auch ruhig, und die Infrastruktur ist von hoher Qualität.
Sämtliche Einkaufsmöglichkeiten, Schulen und Arztpraxen sind in nur wenigen Minuten bequem zu Fuß erreichbar.
Ausstattung
- Alle Wohnräume haben Parkett
- Hochwertige Fliesen für Bäder und Küchen
- Bad mit Wanne
- Grüner Garten
- Kellerraum
- Energiekennwert: C
Sonstige Angaben
Baujahr: 1930
Heizungsart: Zentralheizung
Energiekennwert: 77 kWh/(m²*a)
Befeuerung/Energieträger: Gas
Energieausweistyp: Verbrauchsausweis
Energieeffizienzklasse: C
Um eine schnelle und unkomplizierte Terminvereinbarung zu treffen, können Sie mich gern auch werktags unter folgender Rufnummer von 9:00 Uhr bis 18:00 erreichen.
0178 / 24 45 038
Sie können natürlich auch auf unserer Homepage sich über andere Angebote informieren.
http://www.jehmlich-immobilien.de
Alle Angaben nach bestem Wissen.Irrtum Zwischenvermietung und Zwischenverkauf vorbehalten. Die Angebote sind eine Vorinformation, als Rechtsgrundlage gilt allein der unterzeichnete Vertrag. Unsere Angaben beruhen auf Angaben des Eigentümers und Sie sind im Zweifelsfall selbst zu prüfen.
RENE JEHMLICH IMMOBILIEN
Theodor - Lessing Str. 21
09112 Chemnitz
Tel.: +49 (0) 371 / 909 5678
Fax: +49 (0) 371 / 909 5677
Funk: +49 (0) 178 / 24 45 038
Mail: kontakt@jehmlich-immobilien.de
Internet: www.jehmlich-immobilien.de
facebook: www.facebook-immobilien.de
Wohnungen Chemnitz
Unter Chemnitz findet man weitere relevante Immobilien zur Miete und zum Kauf. Der Link zu Immobilien zum mieten und kaufen dieses Bundeslandes findet man unter Sachsen.
Die Daten zu diesem Anbieter lauten: Rene Jehmlich Immobilien Ansprechpartner Rene Jehmlich, Theodor-Lessing Str. 21 in 09112 Chemnitz.
Synonyme zur Suche Chemnitz Wohnungen:
Chemnitz günstige Wohnung, Wohnungsanzeigen Chemnitz









