3-Familienhaus mit Flair in Schötmar!
Exposé: 3-Familienhaus mit Flair in Schötmar!
PLZ /Ort:
Kaufpreis
Wohnfläche
Zimmer
Grundstücksfläche
Flächen
Wohnfläche:
226,00 m²
Nutzfläche:
226,00 m²
Grundstücksfläche:
1.850,00 m²
Preise
Kaufpreis:
230.000,00 €
Vermittl.-Provision:
3,57%
Sonstiges
Ihre Objektnr.:
BSK1253
Heizungsart:
Etagenheizung
Befeuerung:
Gas
Zustand:
gepflegt
Zimmer:
9
Schlafzimmer:
6
Badezimmer:
3
Baujahr:
1949
Energiepass
Ausstattung
Objektbeschreibung
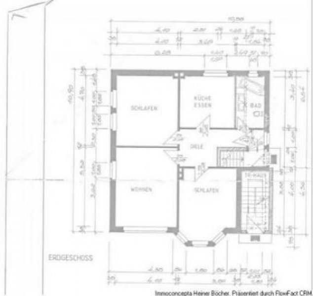
Das Objekt, Bj. 1949, wurde ca. 2001 hinsichtlich der wesentlichen Versorgungsleitung bzw. Fenster renoviert. Die vorhandenen 3 Wohnungen verfügen über Gas - Etagenheizungen und eigene Wasseruhren. Im einzelnen sind vorhanden: DG - Wohnung, 3ZKB, 58 qm, Wohnung 1. OG, 3ZKBB, 82 qm und EG - Wohnung 3ZKB, 84 qm.
Häuser Bad Salzuflen
Weitere Inserate zum mieten und kaufen finden sich unter Bad Salzuflen. Unter Nordrhein-Westfalen sind weitere relevante Immobilien vorhanden.
Die Angeben des Anbieters lauten Immoconcepta Ansprechpartner Heiner Böcher, Osterstr. 37 in 32105 Bad Salzuflen Bad Salzuflen.
Synonyme zur Suche Bad Salzuflen Häuser:
Bad Salzuflen Häuser online, Haus mieten und kaufen Bad Salzuflen, günstige Häuser Bad Salzuflen









