2,5-Zimmer Apartment in München-Nymphenburg / Neuhausen
Exposé: 2,5-Zimmer Apartment in München-Nymphenburg / Neuhausen
PLZ /Ort:
Kaltmiete
Wohnfläche
Zimmer
Flächen
Wohnfläche:
80,00 m²
Preise
Warmmiete:
2.250,00 €
Sonstiges
Ihre Objektnr.:
D-MUC-WHG-M-VA_MR301_132
Heizungsart:
Zentralheizung
Boden:
Parkett
Möblierung:
Teil
Serviceleistungen:
Reinigung
Bad:
Wanne
Zimmer:
3
Energiepass
Ausstattung
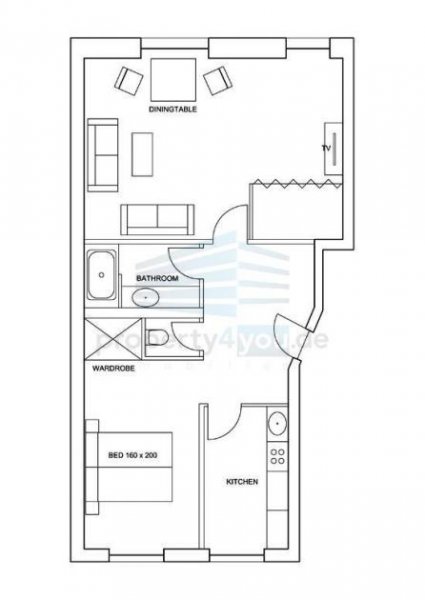
Objektbeschreibung
Ein wunderschöne "First Clas" Wohnung mit inklusiven Reinigungsservice. Wohnküche, separatem Wohnzimmer und separatem Schlafzimmer komplett ausgestattet. Bad mit Badewanne.
Lage
Das Apartment befindet sich im Stadtteil Neuhausen. Entlang der Nymphenburger Straße und rund um das lebhafte Stadtteilzentrum Rotkreuzplatz bestimmen Wohn- und Geschäftshäuser aus der Zeit vor dem Ersten Weltkrieg das Stadtteilbild. Zu Fuss erreichen Sie den Münchener Hauptbahnhof in ca. 20 Minuten. Die nächste Tramhaltestelle Marsstraße ist 6 Gehminuten entfernt und die nächste U-Bahnhaltestelle Mailingerstraße ist 7 Gehminuten entfernt.
Ausstattung
Das Apartment ist komplett eingerichtet. Die Ausstattung umfasst Kochnische, Kaffeemaschine, Geschirr und Besteck für mind. vier Personen, Flachbildschirm-TV-Gerät, HiFi-Anlage, Breitband-Internetzugang (ohne Extragebühren) und Türglocke. Doppelbett, Schrenke, Sofa, Stuhl, Tische usw.
Vorhandene Betten:
Bett 1: 1.8m
Sonstige Angaben
Die wöchentliche Apartmentreinigung und das Wechseln der Bettwäsche sind im Mietpreis inbegriffen. Jeden zweiten Tag werden die Badetücher kontrolliert und Handseife wird nachgefüllt. Den Wasch-Service für private Wäsche wird auf Anfrage für pauschal EUR 250.-/Monat angeboten.
Wohnungen München
Unter München findet man weitere relevante Immobilien zur Miete und zum Kauf. Der Link zu Immobilien zum mieten und kaufen dieses Bundeslandes findet man unter Bayern.
Der Anbieter property4you.de Ansprechpartner Olivera Candiani, Oberanger 6 in 80331 München inserierte oben stehendes Objekt.
Synonyme zur Suche München Wohnungen:
München günstige Wohnung, Wohnungsanzeigen München









