2,5-Zimmer Apartment in München-Nymphenburg / Neuhausen
Exposé: 2,5-Zimmer Apartment in München-Nymphenburg / Neuhausen
PLZ /Ort:
Kaltmiete
Wohnfläche
Zimmer
Flächen
Wohnfläche:
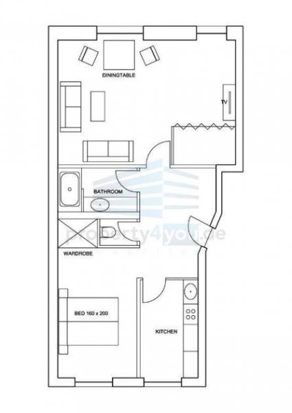
80,00 m²
Preise
Warmmiete:
2.200,00 €
Vermittl.-Provision:
Provision anteilig von einer Monatsmiete inkl. 19% USt. bei Einhaltung der Sondervereinbarung lt. AGB für Mieter Punkt 6: http:
Sonstiges
Ihre Objektnr.:
D-MUC-WHG-M-VA_MR302_133
Heizungsart:
Zentralheizung
Boden:
Parkett
Möblierung:
Teil
Serviceleistungen:
Reinigung
Bad:
Wanne
Zimmer:
3
Energiepass
Ausstattung
Objektbeschreibung
Unser Objekt ID: #133
Das vollständige Exposé unter: http://www.property4you.de/immobilien/objekt/133.html
Eine wunderschöne "First Class" Wohnung mit inklusiven Reinigungsservice. Sie verfügt über eine Wohnküche, ein separates Wohnzimmer und ein separates Schlafzimmer - komplett ausgestattet. Bad mit Badewanne.
Die wöchentliche Apartmentreinigung und das Wechseln der Bettwäsche sind im Mietpreis inbegriffen. Jeden zweiten Tag werden die Badetücher kontrolliert und Handseife wird nachgefüllt. Ein Wasch-Service für private Wäsche wird auf Anfrage für pauschale EUR 250,-/Monat angeboten.
Lage
Das Apartment befindet sich im Stadtteil Neuhausen. Entlang der Nymphenburger Straße und rund um das lebhafte Stadtteilzentrum Rotkreuzplatz bestimmen Wohn- und Geschäftshäuser aus der Zeit vor dem Ersten Weltkrieg das Stadtteilbild. Zu Fuss erreichen Sie den Münchener Hauptbahnhof in ca. 20 Minuten. Die nächste Tramhaltestelle Marsstraße ist 6 Gehminuten entfernt und die nächste U-Bahnhaltestelle Mailingerstraße ist 7 Gehminuten entfernt.
Ausstattung
Das Apartment ist komplett eingerichtet. Die Ausstattung umfasst Kochnische, Kaffeemaschine, Geschirr und Besteck für mind. vier Personen, Flachbildschirm-TV-Gerät, HiFi-Anlage, Breitband-Internetzugang (ohne Extragebühren) und Türglocke. Doppelbett, Schränke, Sofa, Stuhl, Tische usw.
Breite der vorhandenen Betten:
Bett Nr. 1: 1,6m
Bett Nr. 2: 0,8m
Sofabett: 1,4m
Sonstige Angaben
Sie wollen dieses Angebot buchen oder benötigen weitere Informationen? Für eine weitere Bearbeitung benötigen wir den folgenden Vermittlungsauftrag mit ihren Angaben ausgefüllt und unterschrieben inkl. einer Kopie Ihres Ausweises per Fax oder Email zurück.
http://www.property4you.de/kontakt/suchauftrag-mietobjekt.html
Wir werden uns danach umgehend mit Ihnen in Verbindung setzen. Die Provision wird nur bei erfolgreicher Vermittlung fällig!
Wohnungen München
Unter München findet man weitere relevante Immobilien zur Miete und zum Kauf. Der Link zu Immobilien zum mieten und kaufen dieses Bundeslandes findet man unter Bayern.
Der Anbieter property4you.de Ansprechpartner Olivera Candiani, Oberanger 6 in 80331 München inserierte oben stehendes Objekt.
Synonyme zur Suche München Wohnungen:
München günstige Wohnung, Wohnungsanzeigen München









