2 Zimmer Dachgeschoss * Parkett * Loggia * Lift * in Stötteritz *
Exposé: 2 Zimmer Dachgeschoss * Parkett * Loggia * Lift * in Stötteritz *
Strasse:
PLZ /Ort:
Kaltmiete
Wohnfläche
Zimmer
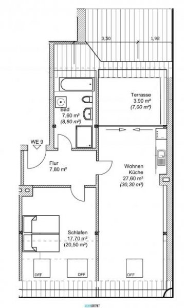
Flächen
Wohnfläche:
64,60 m²
Preise
Kaltmiete:
775,00 €
Warmmiete:
965,00 €
Nebenkosten:
190,00 €
Vermittl.-Provision:
provisionsfrei
Sonstiges
Ihre Objektnr.:
032-fjost16-we09
Objekttyp:
Dachgeschoss
Heizungsart:
Zentralheizung
Fahrstuhl:
Personen
Boden:
Parkett
Möblierung:
Teil
Serviceleistungen:
Reinigung
Zustand:
Teil- / Vollrenoviert
Bad:
Fenster
Zimmer:
2
Energiepass
Ausstattung
Gartennutzung
Kabel/Sat/TV
Objektbeschreibung
Einbauküche kann gegen eine Ablöse vom Vormieter übernommem werden. Näheres bei Besichtigung
Lage
Facettenreicher und idealer Standort zum Wohlfühlen - Die Umgebung des Objektes bietet Ihnen zahlreiche Möglichkeiten, um Ihre Geschäfte des täglichen Bedarfs (Post, Zeitschriftenladen, Bäcker, Apotheke, Einkaufsmarkt, etc.) zu erledigen. Die öffentlichen Verkehrsmittel (Bus & Straßenbahn) sind fußläufig zu erreichen. Die Nähe zu Parks, Restaurants und nicht zuletzt der zügigen Nahverkehrsanbindung in die Leipziger City macht diese Lage vielleicht zu Ihrer neuen Lebensumgebung.
Ausstattung
Die Immobiliendetails auf einen Blick:
- Dachgeschosswohnung
- große Wohnküche
- ruhige Wohnlage
- hochwertiger saniertes Objekt in Leipzig-Stötteritz
- Dachterrasse mit Blick auf das Völkerschlachtdenkmal
- große Fenster / viel Licht in den Wohnräumen
- Lift im Haus
- hochwertige Parkettfußböden
- großformatiges Badfliesen-Design
- Bad mit Badewanne, bodentiefer Dusche mit Echtverglasung, WM-Anschluss, Fenster
- Multimedia-Verkabelung, TV-Anschluss in allen Räumen
Wohnungen Leipzig
Weitere Inserate zum mieten und kaufen finden sich unter Leipzig. Sachsen ist die geografische Zuordnung dieses Objektes zum mieten und kaufen.
Die Daten zu diesem Anbieter lauten: WOHNKONTAKT Unternehmensgruppe Ansprechpartner Silvio Ullrich, Schönbachstraße 81 in 04299 Leipzig.
Synonyme zur Suche Leipzig Wohnungen:
Leipzig günstige Wohnung, Wohnungsanzeigen Leipzig










