2-Raum Wohnung mit TG-Stpl. in ausgezeichneter Lage! Aufzug, 4. OG
Exposé: 2-Raum Wohnung mit TG-Stpl. in ausgezeichneter Lage! Aufzug, 4. OG
Strasse:
PLZ /Ort:
Kaufpreis
Wohnfläche
Zimmer
Flächen
Wohnfläche:
42,90 m²
Preise
Kaufpreis:
30.000,00 €
Hausgeld:
238,00 €
Vermittl.-Provision:
2.975,- EUR inkl. 19 % MwSt.
Sonstiges
Ihre Objektnr.:
PLKö2W13
Heizungsart:
Zentralheizung
Fahrstuhl:
Personen
Befeuerung:
Gas
Bad:
Wanne
Zimmer:
2
Schlafzimmer:
1
Badezimmer:
1
Baujahr:
1994
Energiepass
Art:
Verbrauch
Gültig bis:
2029-01-13
E-Verbrauchskennw.:
59.70
EP inkl. Warmwasser:
ja
Wertklasse:
B
Baujahr:
1994
Jahrgang:
2014
Gebäudeart:
wohn
Ausstattung
Objektbeschreibung
Das Wohn- und Geschäftshaus in der Körnerstraße 2 wurde lt. Energieausweis 1994 erbaut und befindet sich unweit des Plauener Zentrums.
Das Objekt ist voll unterkellert und mit einem Fahrstuhl ausgestattet.
Unter dem Kellergeschoss befindet sich eine Tiefgarage.
Im Kellergeschoss erfolgte eine 2-fach Isolierbeschichtung.
Das Mauerwerk im Erdgeschoss ist gegen aufsteigende Feuchtigkeit mit Mauerwerksfolie abgedichtet.
Im Erdgeschoss befindet sich ein Restaurant, in den übrigen Etagen Wohnungen.
Der Dachstuhl des Hauses ist eine solide Konstruktion aus Nadelholz.
Die Dacheindeckung besteht aus schwarzer Eifelplatte auf Volldachschalung.
Das Objekt hat eine separate Gaskesselanlage zur Beheizung aller Räume. 2019/2020 wurden der Heizkessel und die Heizungspumpe erneuert.
Das zum Haus gehörende Grundstück ist lt. GBA ca. 453 m² groß.
Lage
Die Große Kreisstadt Plauen mit ca. 66.000 Einwohnern ist ein Oberzentrum im Südwesten des Freistaates Sachsen und die Kreisstadt des Vogtlandkreises. Zugleich ist sie die größte Stadt des sächsischen Vogtlandes und fünftgrößte Stadt im Freistaat. Sie liegt verkehrsgünstig an der Nahtstelle zu Bayern, Böhmen und Thüringen, im Schnittpunkt der Autobahnen A9 und A72.
Plauen ist geprägt von einer großen Branchenvielfalt. Es gibt mittelständische Firmen des Maschinen-, Stahl- und Metallbaus, der Elektrotechnik / Elektronik, des Fahrzeugbaus und der Fahrzeugausrüstungen, Druckerzeugnisse, Nahrungs- und Genussmittel sowie die Textilerzeugnisse.
Diese Branchenvielfalt ermöglicht eine große Flexibilität und ist Voraussetzung für eine weitere innovative wirtschaftliche Entwicklung der Stadt.
Die Stadt Plauen ist kulturelles Zentrum des Vogtlandes. Bewohnern und Besuchern der Region steht ein reichhaltiges Angebot an Ausstellungen, Veranstaltungen und Konzerten zur Auswahl.
Regional bedeutsame Märkte und Feste, wie das jährlich im Juni stattfindende Plauener Spitzenfest, der Europäische Bauernmarkt, die Open-Air-Spektakel des Theaters Plauen-Zwickau sowie die Nacht der Museen haben Tradition in Plauen.
Umgeben von Natur-, Landschaftsschutz- und Naherholungsgebieten sowie den Stauseen Pirk und Pöhl bietet Plauen eine malerische Landschaft.
Das Objekt befindet sich nur etwa 300 m vom Stadtkern Plauen entfernt.
Alle Einrichtungen des täglichen Bedarfs befinden sich in unmittelbarer Nähe.
Supermärkte, wie zum Beispiel ein Edeka und ein Denns BioMarkt, sind in nur wenigen Gehminuten (2-3 Minuten) erreichbar.
Der ,,Spielplatz Burgstraße" ist fußläufig nur 1 Minute entfernt.
Auch eine Grundschule, die ,,Erich-Ohser-Grundschule Plauen" (4 Minuten zu Fuß), befindet sich in unmittelbarer Nähe.
Die Haltestelle ,,Dittrichplatz" ist ebenfalls nur 5 Minuten zu Fuß entfernt.
Viele Sehenswürdigkeiten der Stadt sind in kurzer Zeit zu erreichen.
So zum Beispiel das angesagte ,,Malzhaus" (10 Minuten zu Fuß), die Stadt-Galerie mit vielen Möglichkeiten zum Shoppen (9 Minuten zu Fuß), der schöne Marktplatz mit den beeindruckenden Klostertürmen, der Stadtverwaltung und dem Rathaus (8 Minuten zu Fuß).
Als weitere Attraktion gilt der Freizeitpark Syratal mit einer Parkeisenbahn, welche ebenfalls fußläufig nur 12 Minuten entfernt liegt.
Ausstattung
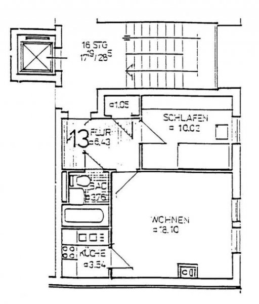
Die 2-Raum Wohnung im 4. Obergeschoss der Immobilie ist lt. Planung ca. 42,90 m² groß und teilt sich wie folgt auf:
- Flur: 6,43 m²,
- Abstellraum: 1,05 m²,
- Schlafzimmer: 10,02 m²,
- Küche: 3,54 m²,
- Wohnzimmer: 18,10 m²
- Bad mit Wanne: 3,76 m²
Alle Angaben sind Planungs- und ca.-Werte.
Abstellraum, Badezimmer, Schlafzimmer und Wohnzimmer sind über den Flur zu erreichen.
Zur Küche gelangt man über das Wohnzimmer.
Das Badezimmer ist innenliegend.
Zur Wohnung Nr. 13 gehört ein Mieterkeller mit der Nr. 13 und ein Tiefgaragenstellplatz mit der Nr. 64 in der Tiefgarage des WGH Neundorfer Straße 62. Dieser besitzt ein eigenes Grundbuchblatt.
Die Tiefgaragen der Wohnhäuser Burgstraße 43/45/47/49, Körnerstraße 2 und Neundorfer Straße 62 bilden eine bauliche Einheit. Dadurch gelangt man vom Haus Körnerstraße 2 unterirdisch direkt und trockenen Fußes zum TG-Stellplatz Nr. 64.
Sonstige Angaben
Zur Wohnung wird ein Tiefgaragenstellplatz (kein Doppelparker) verkauft. Dieser ist in dem im Exposé angegebenen Kaufpreis enthalten.
Es ist angedacht, in den nächsten 3 Jahren die Tiefgarage zu sanieren. Dazu liegt mit einem Gutachten eines Sachverständigen eine erste Kostenschätzung vor. Das Gutachten wird Bestandteil des Kaufvertrages. Die Übernahme der anteiligen Kosten für die Tiefgaragensanierung durch den Erwerber ist im Kaufpreis bereits berücksichtigt.
Der Erwerber wird Mitglied einer Wohneigentümer-Gemeinschaft (WEG). Der Miteigentumsanteil beträgt 332/10.000 für die Wohnung. Es ist durch den Erwerber für die Whg. ein monatliches Hausgeld zu zahlen. Davon sind bei Vermietung ca. 2/3 als Betriebskosten umlegbar. Das aktuelle Hausgeld beträgt lt. Wirtschaftsplan 2025: 217 EUR.
Der Energieausweis ist dem Exposé als pdf-Dokument beigefügt.
Bitte nutzen Sie das Kontaktformular, um uns Ihre Fragen bzw. Ihren Besichtigungswunsch mitzuteilen. Wir nehmen schnellstmöglich den Kontakt zu Ihnen auf bzw. senden Ihnen gern ergänzende Unterlagen entsprechend Ihrer Anfrage zu.
Alle Angaben beruhen auf Aussagen der Eigentümer bzw. basieren auf den uns bis dato vorliegenden Unterlagen und erfolgen ohne Gewähr. Irrtum und zwischenzeitlicher Verkauf bleiben vorbehalten. Exposé © 2025, Immobilienbüro Kühn
Wohnungen Plauen
HomeBooster hat dieses Objekt zum mieten und kaufen unter Plauen eingetragen. Die Immobiliensuche startet meistens bei Mietobjekten und Kaufimmobilien unter Sachsen.
Die Daten zu diesem Anbieter lauten: Immobilienbüro Kühn GmbH & Co. KG Ansprechpartner Wolfgang Kühn, Jahnstraße 17 in 08058 Zwickau.
Synonyme zur Suche Plauen Wohnungen:
Plauen günstige Wohnung, Wohnungsanzeigen Plauen










